2/1, 7 Jedburgh Gardens, North Kelvinside, Glasgow, G20 6BP
Property Description
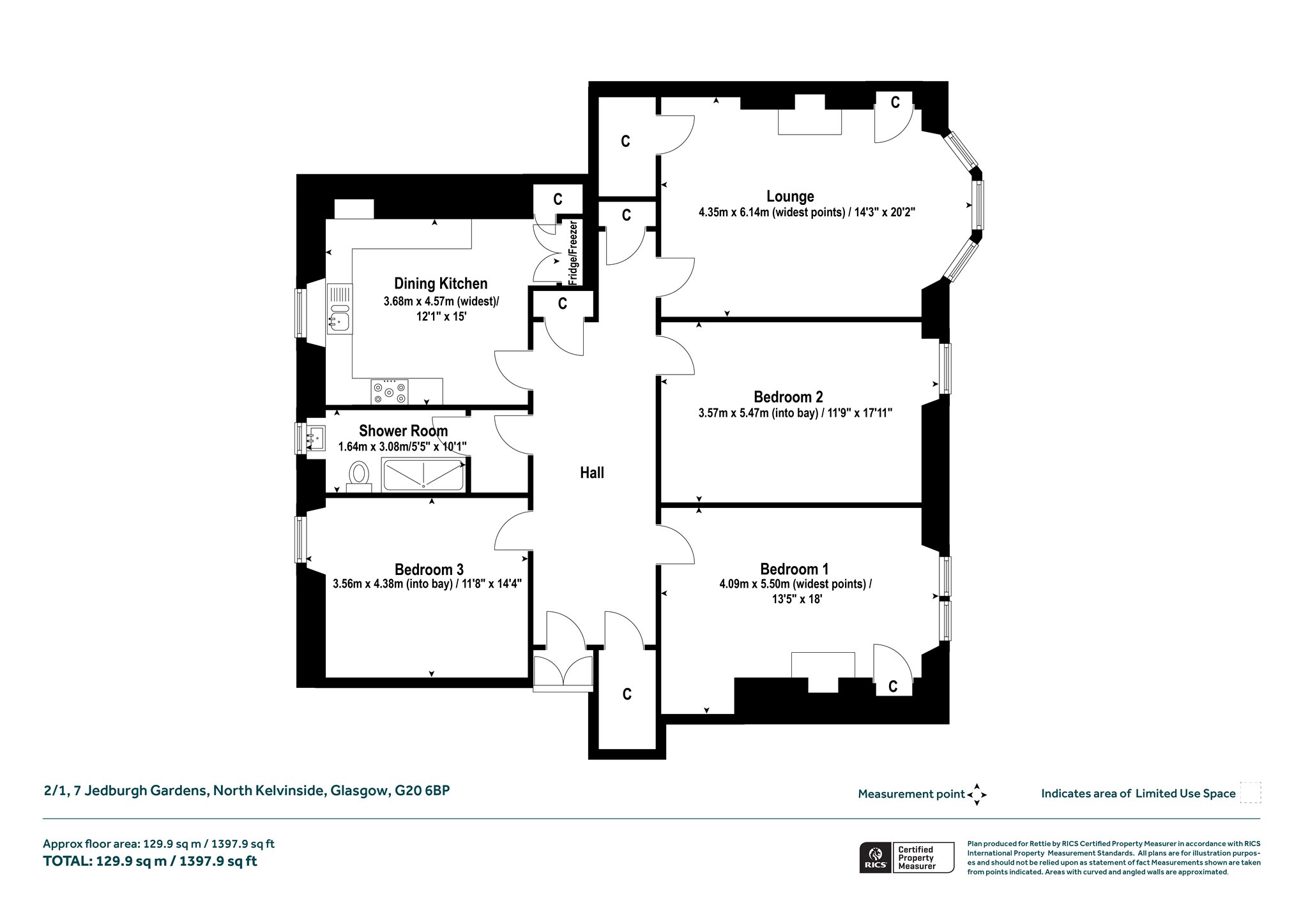
A well-presented three-bedroom second floor flat contained within an elegant red sandstone tenement building on Jedburgh Gardens. This quiet residential no through street is located just off Wilton Street in the highly popular and particularly convenient North Kelvinside district. The accommodation offers excellent flexibility and proportions together with an abundance of natural light. The interior includes a welcoming reception hall, a fabulous front facing bay windowed lounge, three spacious and versatile double bedrooms and a modern three-piece bathroom. We would also highlight the wonderful timber framed sash and case double glazed windows which have been installed throughout the property.
7 Jedburgh Gardens is located a short distance from a fine selection of amenities on Great Western Road, Byres Road, and The University of Glasgow. Kelvinbridge underground is a short walk away for a quick city commute, and it is only one minute’s walk to the river kelvin walkway which connects to the Botanic Gardens and Kelvingrove Park
Accommodation:
- Security entry system
- Communal entrance close
- Storm door entrance vestibule leading into broad and welcoming reception hall with wooden flooring, ceiling cornice and three useful storage cupboards off
- Superb lounge with three section bay window, ceiling cornice, wooden flooring, shelved press and generous storage cupboard off
- Dining kitchen complete with a range of base and wall units, integrated appliances, overhead storage and window to the rear
- Bedroom one with two section window to the front, ceiling cornice, shelved press and focal point fireplace
- Bedroom two with window to the front
- Bedroom three with window to the rear
- Three-piece shower room. Window to the rear
- Gas central heating
- Sash and case double glazed windows
- Shared garden to the rear of the building
- Availability of on street residents’ parking permit
EPC: C
Council Tax: E
Tenure : Freehold
More Details
Situation: Communal Garden
Council Tax Band: E
Tenure: Freehold
Your home may be repossessed if you do not keep up repayments on your mortgage. There may be a fee for mortgage advice. The actual amount you pay will depend upon your circumstances.
Similar Properties
Looking To Sell Or Let?
Rettie is one of the most trusted and well-respected names in property. Our unrivalled market knowledge helps people from around the world buy, sell, let and develop property in Scotland and the North East of England - from city apartments and rural cottages to large townhouses and prime country homes, farms and estates. We deal with some of the most prestigious properties on the market, but provide the same exceptional standards of service and value for money to all our clients.
