Property Description
Enjoying a peaceful yet incredibly convenient West End location, this garden level conversion is exceptionally well placed to take advantage of everything The West End has to offer and has the significant advantage of an allocated parking space.
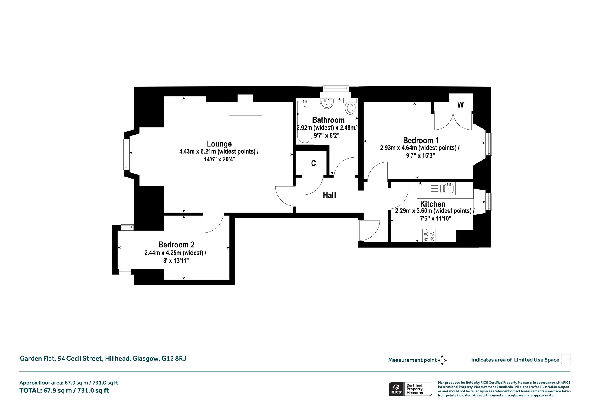
54 Cecil Street is a charming two-bedroom apartment forming part of a handsome Victorian Townhouse and is located in the popular Hillhead district. The internal accommodation enjoys excellent natural light, is well presented throughout and has a comfortable feel with notable highlights including a superb lounge/dining room, a separate kitchen off the reception hall, two bedroom and a three-piece bathroom.
Hillhead is ideally positioned for easy access to inner-city green spaces, including the Botanic Gardens and Kelvingrove Park, both offering extensive parkland to be enjoyed year-round. The West End offers a variety of leisure facilities, including cinema, racquet clubs, the Western Baths, and The Gym Group (on Vinicombe Street). This property is in a permit parking zone (W3), with permits available from the local council.
Accommodation:
- Security entry system
- Communal entrance hall
- Reception hall with useful storage cupboard off
- Superb main lounge/dining room with window to the front
- Separate kitchen complete with a range of base and wall units, appliances and window to the rear
- Bedroom one with fitted wardrobes and window to the rear
- Bedroom two with two windows to the front
- Three-piece bathroom comprising bath, over bath shower, toilet and wash hand basin
- Gas central heating
- Double glazing
- Shared garden to the rear of the building
- Allocated parking space to the rear of the building
- Availability of on street residents’ parking permit
EPC: D
Council Tax: D
Tenure : Freehold
More Details
Situation: Communal Garden
Council Tax Band: D
Tenure: Freehold
Your home may be repossessed if you do not keep up repayments on your mortgage. There may be a fee for mortgage advice. The actual amount you pay will depend upon your circumstances.
Similar Properties
Looking To Sell Or Let?
Rettie is one of the most trusted and well-respected names in property. Our unrivalled market knowledge helps people from around the world buy, sell, let and develop property in Scotland and the North East of England - from city apartments and rural cottages to large townhouses and prime country homes, farms and estates. We deal with some of the most prestigious properties on the market, but provide the same exceptional standards of service and value for money to all our clients.
