7/3, 303 Glasgow Harbour Terraces, Glasgow Harbour, Glasgow, G11 6BQ
Property Description
This particularly stylish and generously proportioned seventh floor flat occupies a prominent position within the landmark Glasgow Harbour development. This particular building was completed by Park Lane in 2006 and is the flagship building of the entire Harbour development. The property benefits from excellent natural light and enjoys exceptional views of The River Clyde and over towards The Transport Museum, The Tall Ship, SSEC, Glasgow’s West End and Glasgow City Centre.
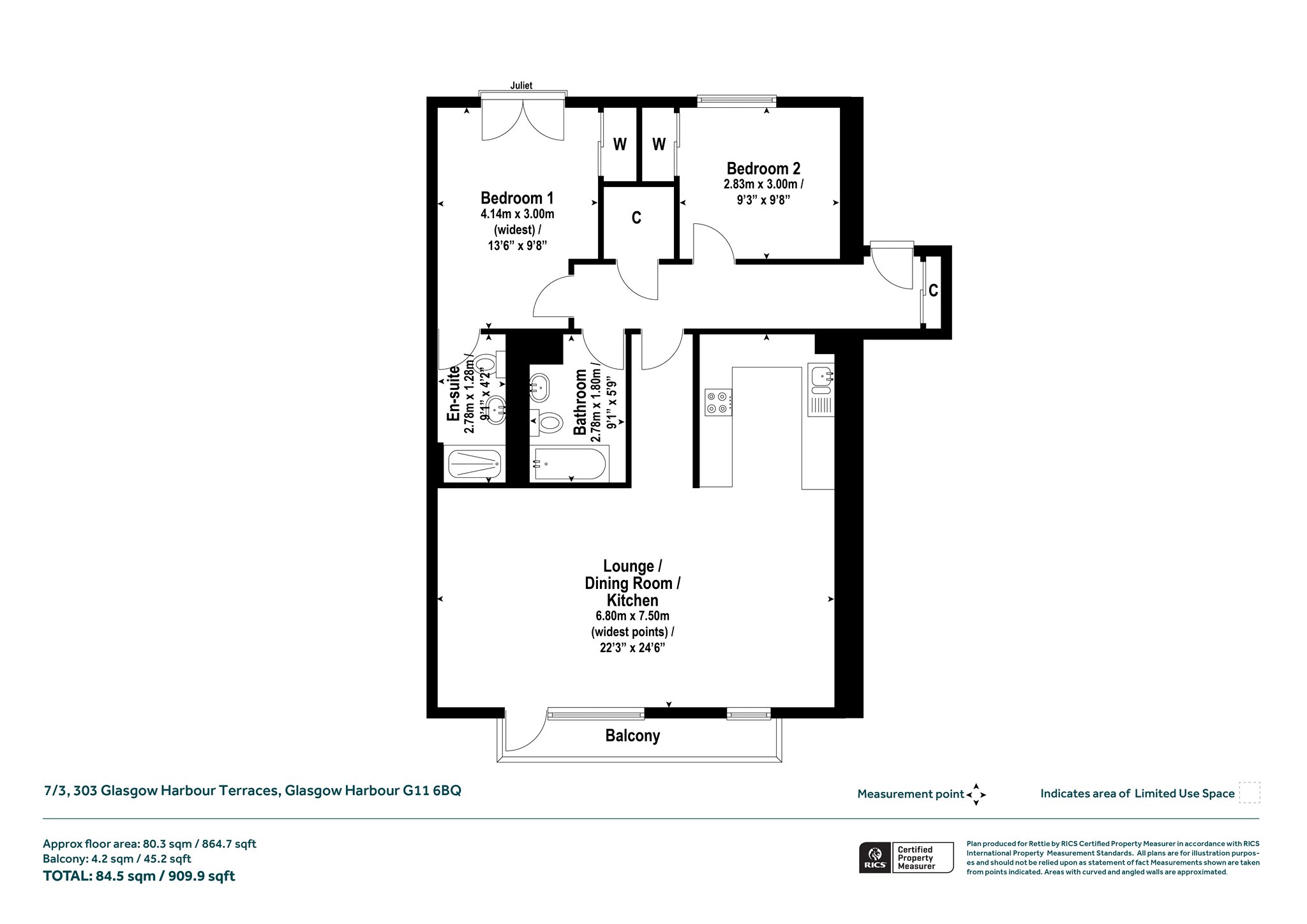
The internal accommodation is immaculately presented throughout, enjoys exceptional natural light and is of comfortable proportions, extending to circa 1000sq ft. The interior includes a superb main lounge/dining room with direct access to a private balcony, an impressive, semi open plan kitchen, two spacious double bedrooms, an en suite shower room and a stylish three-piece bathroom. In addition, there is ample storage off the reception hall and both bedrooms and we would also highlight the significant advantages of an allocated parking space, lift access to each level, a well-maintained communal courtyard to the rear of the building and concierge service.
Accommodation:
- Security entry system
- Well maintained communal entrance hall with lift and stair access to each level including the secure residents’ car park
- Welcoming reception hall with useful storage cupboard off
- Outstanding main lounge/dining room with two large picture windows to the front and sliding door providing access to private balcony
- Impressive, semi open plan kitchen complete with a range of base and wall units and integrated appliances
- Bedroom one with window to the side and fitted wardrobes
- Stylish en suite shower room
- Bedroom two with window to the side and fitted wardrobes
- Contemporary three-piece bathroom comprising bath, over bath shower, toilet and wash hand basin
- Gas central heating
- Double glazing
- Lift access to each level
- Allocated parking space within secure residents’ car park
- Concierge service
- Well maintained shared courtyard to the rear of the building
More Details
EPC: B
Council Tax: F
Tenure: Freehold
Your home may be repossessed if you do not keep up repayments on your mortgage. There may be a fee for mortgage advice. The actual amount you pay will depend upon your circumstances.
Similar Properties
Looking To Sell Or Let?
Rettie is one of the most trusted and well-respected names in property. Our unrivalled market knowledge helps people from around the world buy, sell, let and develop property in Scotland and the North East of England - from city apartments and rural cottages to large townhouses and prime country homes, farms and estates. We deal with some of the most prestigious properties on the market, but provide the same exceptional standards of service and value for money to all our clients.

