2/2, 1063 Sauchiehall Street, Kelvingrove, Glasgow, G3 7UD
Property Description
Three compelling reasons draw your attention to this four-bedroom Kelvingrove property. The first is the generously proportioned accommodation, offering breathtaking and uninterrupted landscape views; the second is its commanding position in a recently restored and refurbished tenement building; and the third is its location.
Boasting spectacular panoramic views over some of the city’s most prized landmarks - the property overlooks The Main Building of the University of Glasgow, Kelvingrove Art Gallery and Museum, Kelvingrove Lawn Bowls and Tennis Centre and Kelvingrove Park.
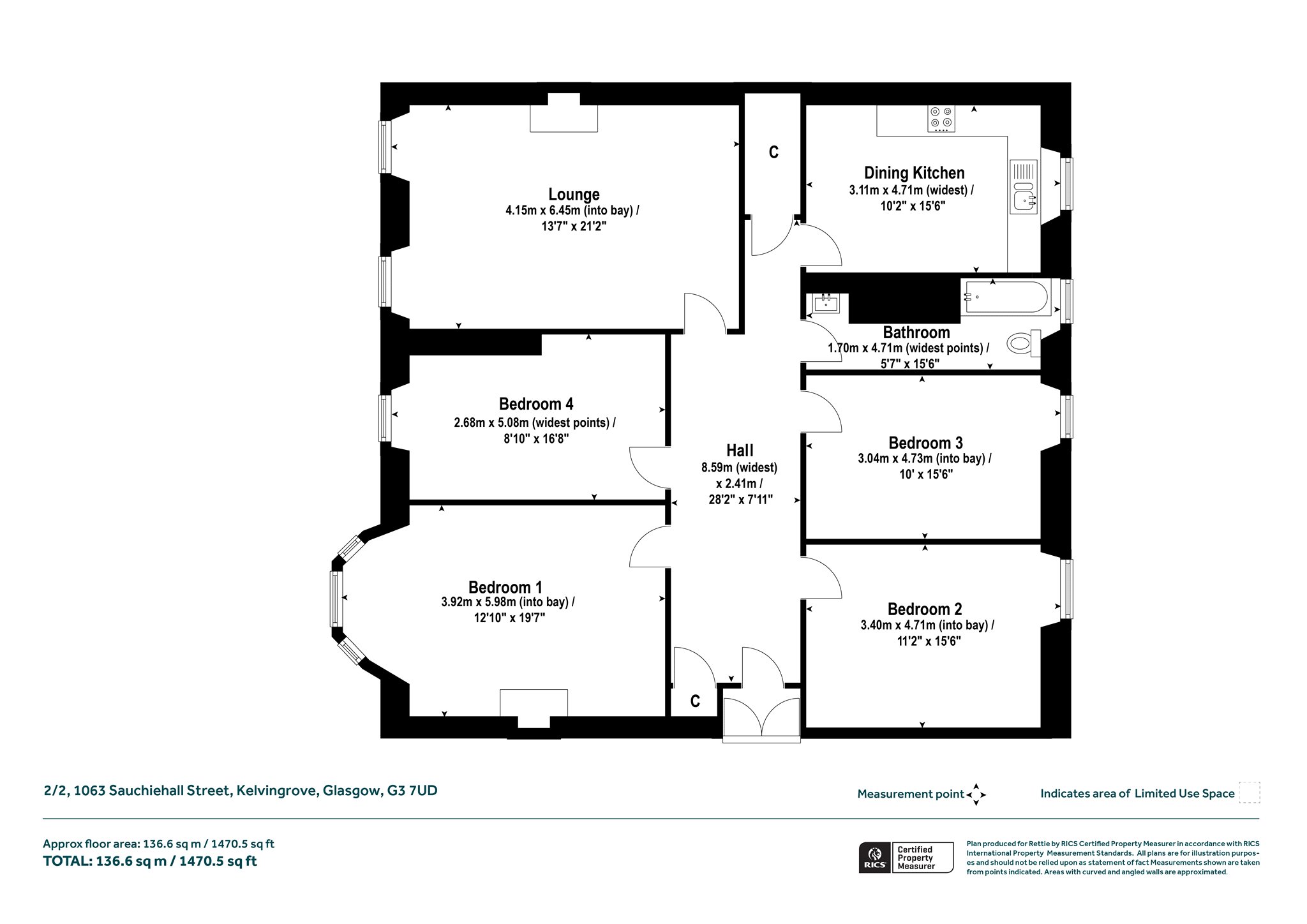
The internal accommodation, benefiting from excellent natural light and spaciousness, is enhanced by expansive views to the front and is well-presented throughout, with a comfortable, laid-back feel. Notable highlights include a superb main lounge, a substantial hallway, a dining kitchen, an impressive bay-windowed principal bedroom, with three further double bedrooms, and a three-piece bathroom.
Additional features include ornate and traditional ceiling roses and cornicing, ample storage accessed via the reception hall, natural wood flooring and focal point fireplaces. The flexible and versatile layout will appeal to a range of discerning buyers. Thoughtful configuration can accommodate options such as a dining room, dining hall, a home office, or a playroom.
Sympathetically restored in partnership between EBS Construction, the Owners within the development, and Glasgow City Council, this four-bedroom property occupies a central and commanding second-floor position within this fully refurbished, blonde sandstone tenement.
The considered refurbishment includes a new slate roof, the restoration and cleaning of all sandstone to the main walls and chimney heads, the installation of cast-iron guttering, and a newly decorated close.
Situated in the Kelvingrove area, 1063 Sauchiehall Street benefits from an excellent location, offering a gateway to the best of what West End living has to offer. Enviable proximity to a selection of shops, cafes, and restaurants means the location offers accessible and quick transport links to the QEU and Gartnavel hospitals, Glasgow Airport, motorway road networks, notable venues, and Glasgow City Centre.
Additionally, it is within easy walking and cycling distance to the University, Kelvingrove Park, and other parts of the West End, with doorstep access to cycling routes, including West City Way and National Cycle Network Route 7, which spans from Central Station, along the Kelvin River, to reach Loch Lomond. Therefore, the property will appeal to buyers seeking a sustainable, urban lifestyle in a small but grand city, close to nature.
Furthermore, the area caters well to both primary and secondary schooling in both the public and private sectors.
Viewing is advised to appreciate the unique quality of this apartment.
Accommodation:
- Security entry system
- Well-maintained communal entrance close
- Storm door entrance vestibule leading to a broad and welcoming reception hall with natural wood flooring, ceiling cornice and two storage cupboards off
- Superb main living room with two windows to the front, ceiling cornice, focal point fireplace and wooden flooring
- Spacious dining kitchen complete with a range of base and wall units, appliances, with a window to the rear
- Bedroom one with a three-section bay window, ornate ceiling rose, cornicing and a focal point fireplace
- Bedroom two with a window to the rear and natural wood flooring
- Bedroom three with a window to the rear
- Bedroom four with a window to the front and wood flooring
- Three-piece bathroom comprising bath, over-bath shower, toilet, and wash-hand basin. Window to the rear
- Gas central heating
- Sash and casement windows
- Shared garden to the rear of the building
- Availability of on-street residents' parking permit
EPC: C
Council Tax: E
Tenure : Freehold
More Details
Situation: Communal Garden
Council Tax Band: E
Tenure: Freehold
Your home may be repossessed if you do not keep up repayments on your mortgage. There may be a fee for mortgage advice. The actual amount you pay will depend upon your circumstances.
Similar Properties
Looking To Sell Or Let?
Rettie is one of the most trusted and well-respected names in property. Our unrivalled market knowledge helps people from around the world buy, sell, let and develop property in Scotland and the North East of England - from city apartments and rural cottages to large townhouses and prime country homes, farms and estates. We deal with some of the most prestigious properties on the market, but provide the same exceptional standards of service and value for money to all our clients.

