Property Description
Set within a quiet residential pocket of Old Drumchapel, this professionally extended three-bedroom semi-detached villa offers an exceptional level of finish both inside and out. With a stylish interior rarely seen in the area and generous garden grounds to the rear, this home provides the perfect balance of modern living and family functionality.
To the front, the property benefits from a neatly paved driveway which comfortably accommodates two family-sized vehicles, in addition to a garage for further parking or storage. The rear garden is a real highlight—completely enclosed with full-height fencing, laid to lawn and offering a safe, level space ideal for children at play or outdoor entertaining.
Internally, the property has undergone a comprehensive programme of renovation and modernisation, elevating it well above the typical standard for the area. From top to bottom, every room reflects a keen attention to detail and a high-end finish, making this one of the finest homes to be brought to market in Old Drumchapel in 2025. The home is in walk-in condition and ideal for buyers looking to settle quickly with no additional work required.
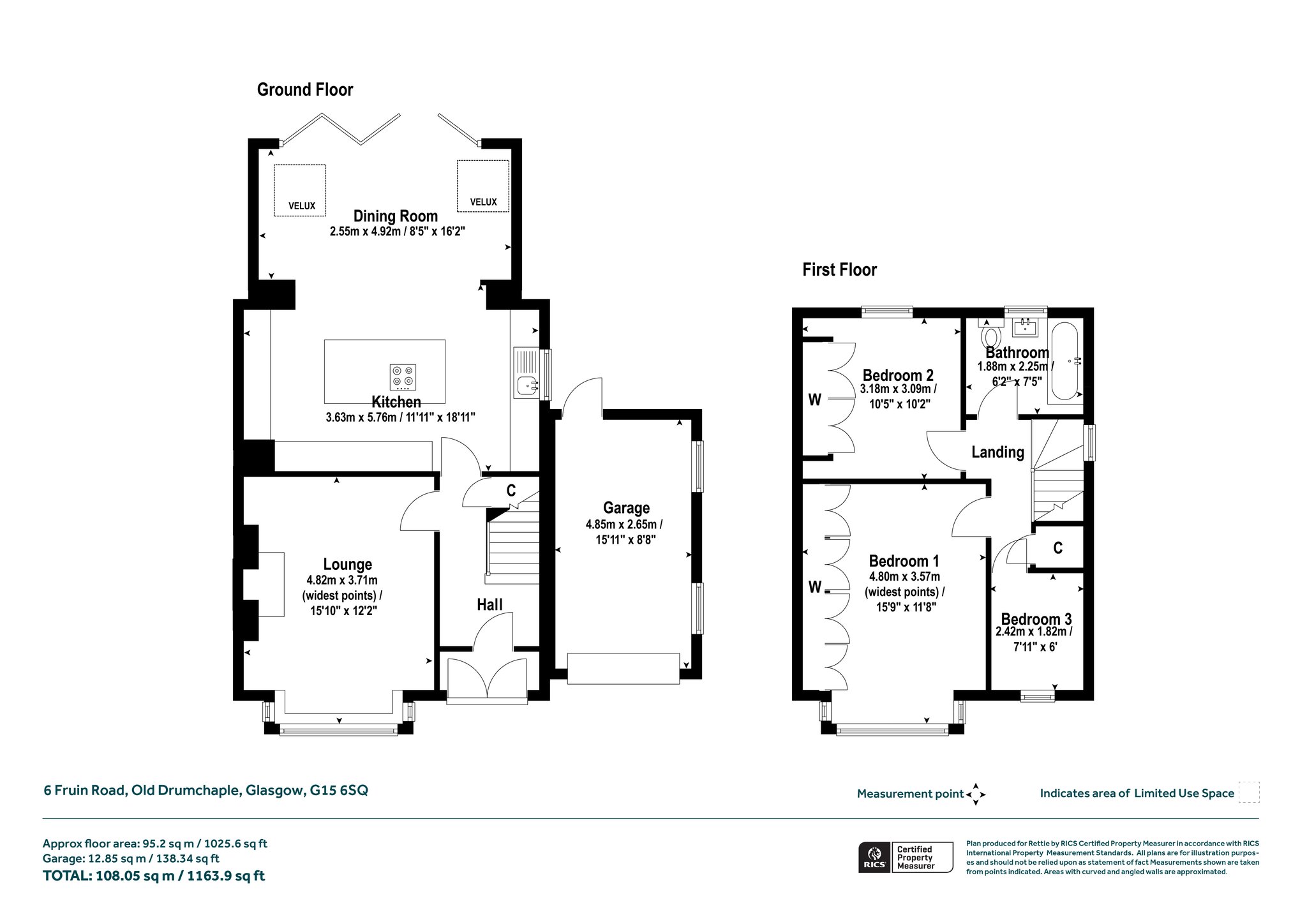
The accommodation comprises: a welcoming storm porch with modern front and inner doors, entrance hallway with contemporary staircase and smart under-stair storage, a front-facing lounge, and an outstanding rear extension that forms a luxurious open-plan dining kitchen and family room. This space features a central island, a full range of integrated appliances, and bi-fold doors that open directly onto the rear garden—perfect for indoor-outdoor living.
Upstairs, the home provides three bedrooms (two doubles and one single) along with a beautifully appointed family bathroom featuring elegant tiling and a white suite.
Attributes
- Professionally extended three-bedroom semi-detached villa
- Extensive modernisation throughout – walk-in condition
- Stylish open-plan dining kitchen/family room with bi-fold doors
- Central island and full suite of integrated appliances
- Beautiful rear garden – level, enclosed and child-friendly
- Paved driveway for two vehicles plus garage
- Contemporary bathroom with elegant tiling
- Quiet residential setting in popular Old Drumchapel
- Ideal for families seeking space and quality
- One of the finest homes available in the area in 2025
EPC: D
Council Tax: E
Tenure : Freehold
More Details
Situation: Private Garden
Council Tax Band: E
Tenure: Freehold
Your home may be repossessed if you do not keep up repayments on your mortgage. There may be a fee for mortgage advice. The actual amount you pay will depend upon your circumstances.
Similar Properties
Looking To Sell Or Let?
Rettie is one of the most trusted and well-respected names in property. Our unrivalled market knowledge helps people from around the world buy, sell, let and develop property in Scotland and the North East of England - from city apartments and rural cottages to large townhouses and prime country homes, farms and estates. We deal with some of the most prestigious properties on the market, but provide the same exceptional standards of service and value for money to all our clients.
