Property Description
Situated in the heart of the desirable Broomhill district, this spacious and naturally bright two-bedroom first floor tenement flat offers a perfect blend of traditional character and comfortable accommodation.
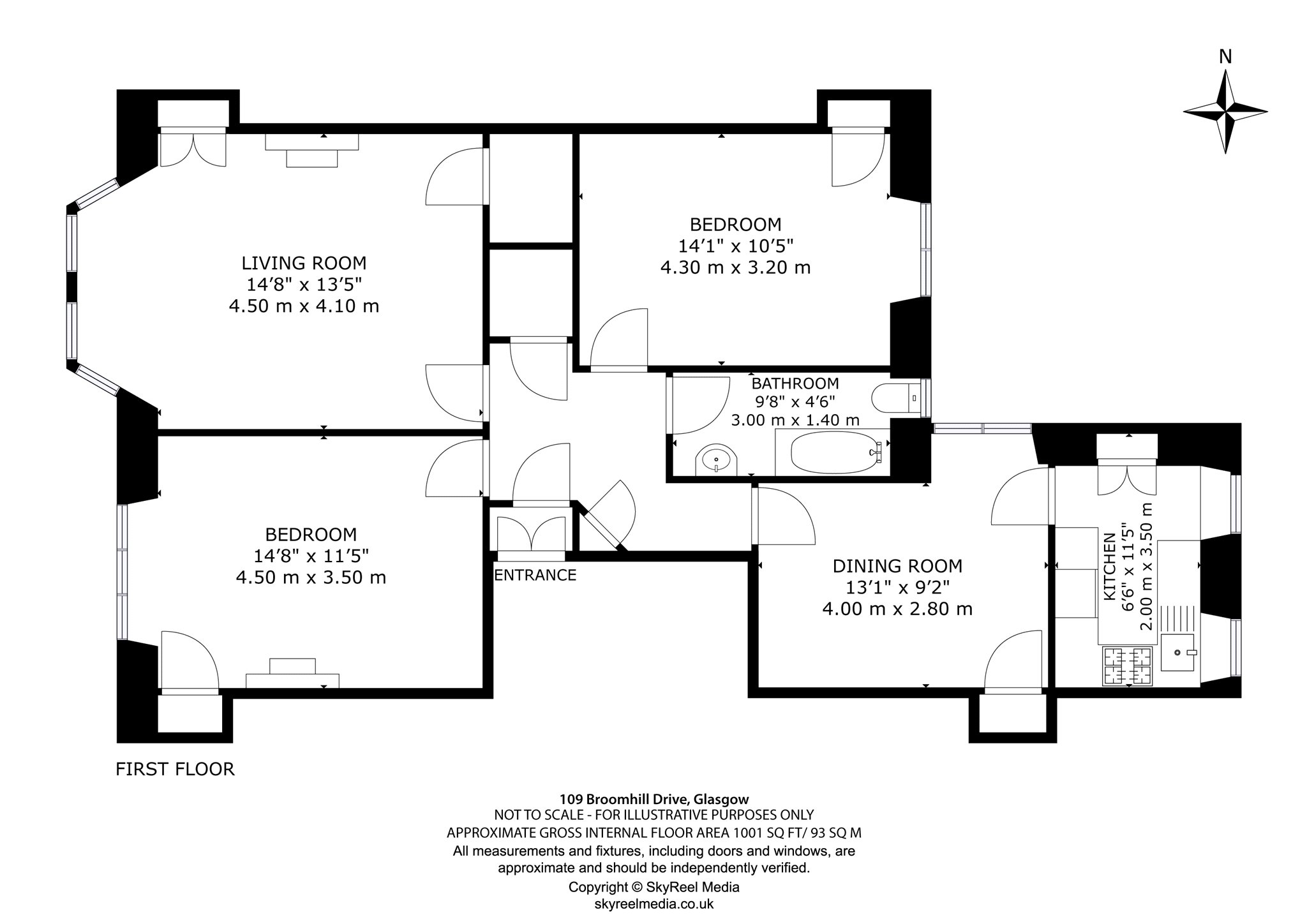
The internal accommodation benefits from excellent natural light and period features and is of generous proportions and includes a welcoming reception hallway leading to a beautifully proportioned bay windowed lounge filled with natural light. A separate formal dining room offers a versatile and adaptable space and leads directly into a well-equipped kitchen. Both bedrooms are generously sized doubles. Completing the property is a modern three-piece bathroom. Additional features include ample storage off the reception hall and lounge, focal point fireplaces in the lounge and both bedrooms and wooden flooring in the reception hall, lounge and dining room. The building has recently had a comprehensive programme of works in the communal areas, including replastering and decorating of the communal close, reslating and waterproofing across the full roof and restoration of chimneys and front and rear gutters.
Broomhill is renowned for its vibrant community feel and excellent selection of amenities. Just a short walk away, Crow Road Retail Park offers a variety of popular stores including M&S Foodhall, Boots, and Costa Coffee. In addition, the property is adjacent to Broomhill Square while the immediate area boasts a great selection of local cafes, independent shops, and restaurants, as well as reputable schools and convenient public transport options via nearby Hyndland and Partick train/subway stations together with easy access to the Clydeside Expressway. Primary and Secondary schooling is excellent with the property being within the catchment area for Broomhill Primary.
Accommodation
- Security entry system
- Communal entrance close
- Storm door entrance vestibule leading into broad and welcoming reception hall with wooden flooring and useful storage cupboard off
- Superb main lounge with four section bay window, focal point fireplace, shelved press, storage cupboard off and wooden flooring
- Formal dining room with two section window to the side, shelved press and wooden flooring
- Separate kitchen off the dining room complete with a range of base and wall units, appliances and two windows to the rear
- Bedroom one with three section window to the front, shelved press and focal point fireplace
- Bedroom two with two section window to the rear, shelved press and focal point fireplace
- Three-piece bathroom comprising bath, over bath shower, toilet and wash hand basin. Window to the rear
- Gas central heating
- Double glazing
- Shared garden to the rear of the building
- Access to beautifully maintained BMC Association triangle gardens – a rare and expansive communal green space offering a peaceful retreat within the city
More Details
EPC: D
Council Tax: E
Tenure: Freehold
Your home may be repossessed if you do not keep up repayments on your mortgage. There may be a fee for mortgage advice. The actual amount you pay will depend upon your circumstances.
Similar Properties
Looking To Sell Or Let?
Rettie is one of the most trusted and well-respected names in property. Our unrivalled market knowledge helps people from around the world buy, sell, let and develop property in Scotland and the North East of England - from city apartments and rural cottages to large townhouses and prime country homes, farms and estates. We deal with some of the most prestigious properties on the market, but provide the same exceptional standards of service and value for money to all our clients.
