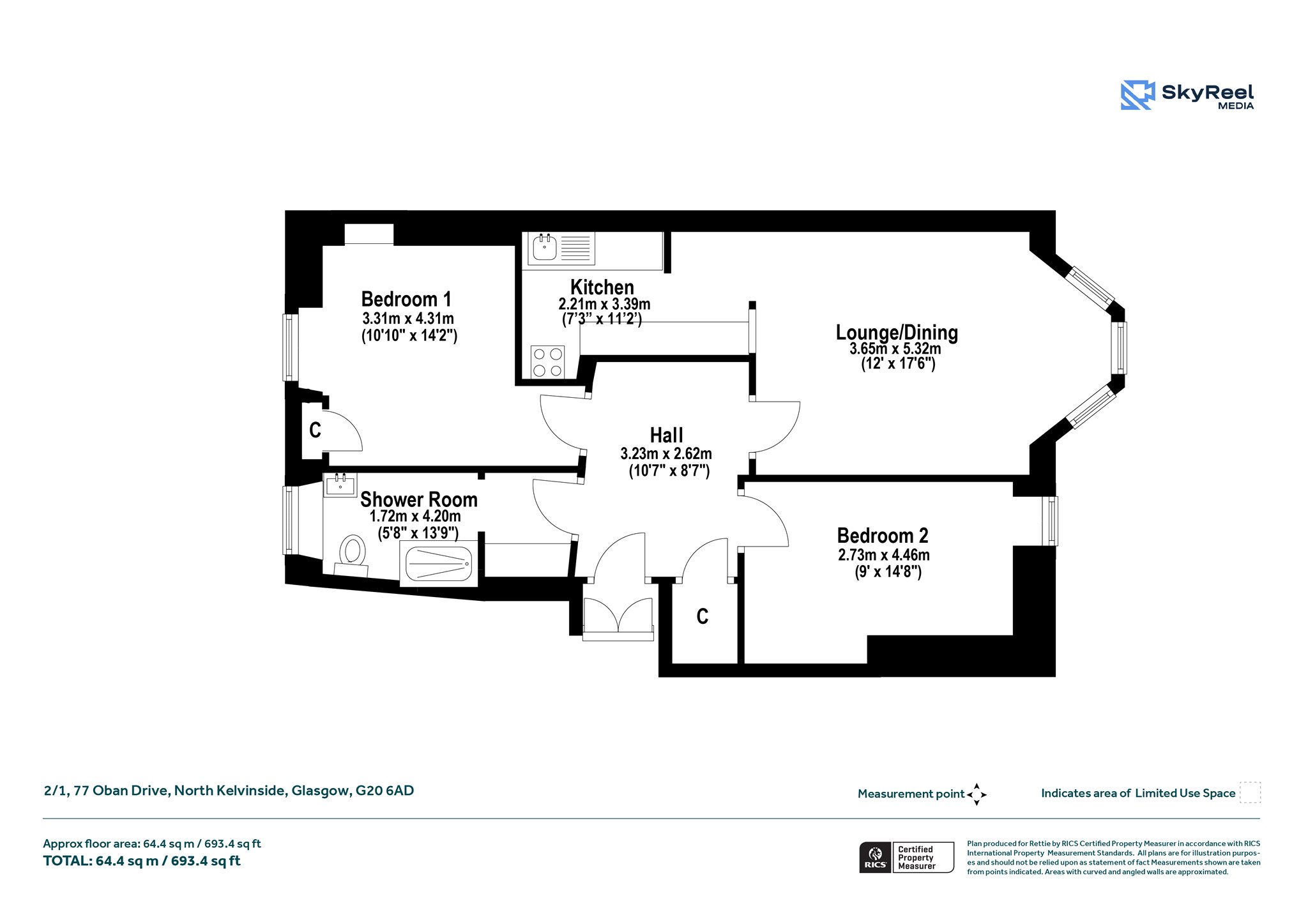
2/1, 77 Oban Drive, North Kelvinside, Glasgow, G20 6AD
Offers Over £175,000
Upper Floor Apartment
2 Bedrooms
1 Bathroom
1 Reception Room
693 sq.ft
Communal Garden
On Street/Permit
Property Description
Located in the highly popular and particularly convenient North Kelvinside district, this second floor flat enjoys excellent natural light together with comfortable proportions. The interior includes a superb bay windowed lounge/dining room, a semi open plan kitchen, two double bedrooms and a three-piece shower room.
Forming part of a traditional blonde sandstone tenement building, 77 Oban Drive occupies a quiet yet convenient West End location and is exceptionally well placed to take advantage of a wide selection of cafés, bars, restaurants, boutique and convenience shopping together with excellent transport links and easy access to The University of Glasgow and The Botanic Gardens.
Accommodation:
- Security entry system
- Communal entrance close
- Storm door entrance vestibule leading into welcoming reception hall with useful storage cupboard off
- Bright and spacious lounge/dining room with three section bay window
- Semi-open plan kitchen
- Bedroom one with window to the rear
- Bedroom two with window to the front
- Three-piece shower room. Window to the rear
- Gas central heating
- Double glazing
- Shared garden to the rear of the building
- Availability of on street residents’ parking permit
More Details
EPC: C
Council Tax: C
Tenure: Freehold
Your home may be repossessed if you do not keep up repayments on your mortgage. There may be a fee for mortgage advice. The actual amount you pay will depend upon your circumstances.
Similar Properties
Looking To Sell Or Let?
Rettie is one of the most trusted and well-respected names in property. Our unrivalled market knowledge helps people from around the world buy, sell, let and develop property in Scotland and the North East of England - from city apartments and rural cottages to large townhouses and prime country homes, farms and estates. We deal with some of the most prestigious properties on the market, but provide the same exceptional standards of service and value for money to all our clients.
