Property Description
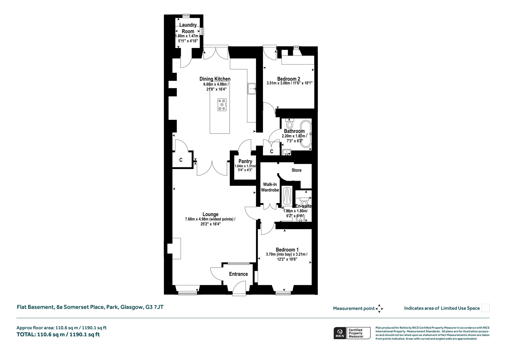
This incredibly charming and rarely available garden flat has the significant advantage of a private, south facing courtyard garden to the front and a further courtyard area to the rear which is accessed directly from the dining kitchen. Access to the front is via the courtyard garden through a main door and the interior extends to an outstanding main lounge/dining room, an amazing dining kitchen, two bedrooms, an en suite shower room and a main bathroom with a freestanding bath.
We would also highlight the useful utility room, the pantry, and the various other areas for storage.
The property was cleverly re-configured in 2017/2018 and the result is an incredibly stylish apartment with rich decoration, wooden floors, and enormous character.
Accommodation:
- Private entrance from Somerset Place via entrance steps which lead down to the private front courtyard/garden space.
- Reception hall with wooden floor and stained/leaded glass window.
- Large, impressive main lounge with wooden floor, focal point fireplace, window to the front, door to inner hall and double doors to dining kitchen.
- Absolutely fabulous, re-fitted dining kitchen with double doors to the back courtyard. Access to pantry, second storage cupboard off, access to utility area, wooden floor, double oven (Neff), integral dishwasher, American style fridge freezer, five ring gas hob, wine fridge, superb central island and feature Belfast style sink.
- Utility area off the kitchen with windows to the rear and side, wall mounted boiler, space for cloaks and washing machine and tumble dryer included, wooden floor.
- Bedroom one off the inner hall with window to the front and wooden floor.
- Walk-in wardrobe/dressing room with further storage off.
- En suite shower room with access to further storage.
- Back hall leading to bathroom and bedroom two (wooden floor).
- Bedroom two with window to rear and glazed door. Wooden floor.
- Charming bathroom which includes a free-standing bath with shower over the bath. Wooden floor.
- Gas central heating.
- Unexpected and secluded rear courtyard accessed from double doors off the dining kitchen. Light from the West.
More Details
EPC: C
Council Tax Band: C
Tenure: Freehold
Your home may be repossessed if you do not keep up repayments on your mortgage. There may be a fee for mortgage advice. The actual amount you pay will depend upon your circumstances.
Similar Properties
Looking To Sell Or Let?
Rettie is one of the most trusted and well-respected names in property. Our unrivalled market knowledge helps people from around the world buy, sell, let and develop property in Scotland and the North East of England - from city apartments and rural cottages to large townhouses and prime country homes, farms and estates. We deal with some of the most prestigious properties on the market, but provide the same exceptional standards of service and value for money to all our clients.
