Property Description
A particularly substantial two-bedroom tenement apartment which benefits from a broad corner position within a handsome blonde sandstone tenement at the corner of Byres Road & Roxburgh Street - minutes’ walk from Glasgow University and surrounded by countless amenities which combine to make Byres Road one of our city's favourite streets.
The home for sale has been maintained to an extremely high standard by the current owners who love the substantial accommodation, superb corner setting and completely central position in a vibrant, amenity rich part of the West End. The property is surrounded by every amenity you could ask for including restaurants, bars, charming coffee shops and there is even a Waitrose supermarket at the top of the street. Just a hundred metres or so along the road is Hillhead underground station and Byres Road is a well-served bus route. Although the most significant selling point is the property's proximity to Glasgow university.
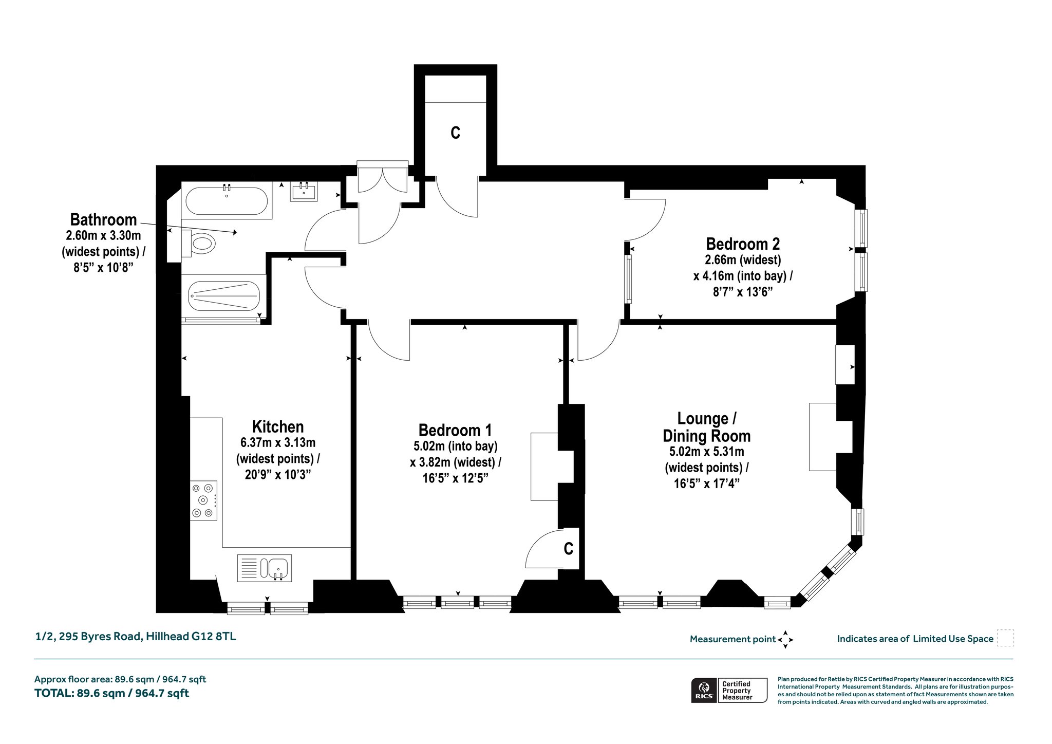
Internally this is a bright & airy two-bedroom home which has lovely traditional features, spacious principal apartments and a high standard of presentation throughout. In brief the accommodation extends to; wide reception hall, corner living room with beautiful window arrangements including a bay window that offers views up Byres Road, two comfortable double bedrooms, a large dining kitchen which is appointed to a high standard featuring in-built appliances and main bathroom with white four piece suite.
attributes;
- Highly central position.
- Amenity rich area.
- Minutes walk from Glasgow uni.
- Surrounded by countless shops, boutiques restaurants and bars.
- Minutes walk from Ashton lane.
- Very handy for public transport links.
- Five minutes from the botanical gardens.
- Conveniently located for gaining rapid access to major road networks.
- Spacious well appointed accommodation.
- Perfect for students.
More Details
EPC: D
Council Tax:
Tenure: Freehold
Your home may be repossessed if you do not keep up repayments on your mortgage. There may be a fee for mortgage advice. The actual amount you pay will depend upon your circumstances.
Similar Properties
Looking To Sell Or Let?
Rettie is one of the most trusted and well-respected names in property. Our unrivalled market knowledge helps people from around the world buy, sell, let and develop property in Scotland and the North East of England - from city apartments and rural cottages to large townhouses and prime country homes, farms and estates. We deal with some of the most prestigious properties on the market, but provide the same exceptional standards of service and value for money to all our clients.
