Offers Over £950,000
Terraced House
4 Bedrooms
3 Bathrooms
3 Reception Rooms
2,518 sq.ft
Private Garden
On Street/Permit
Property Description
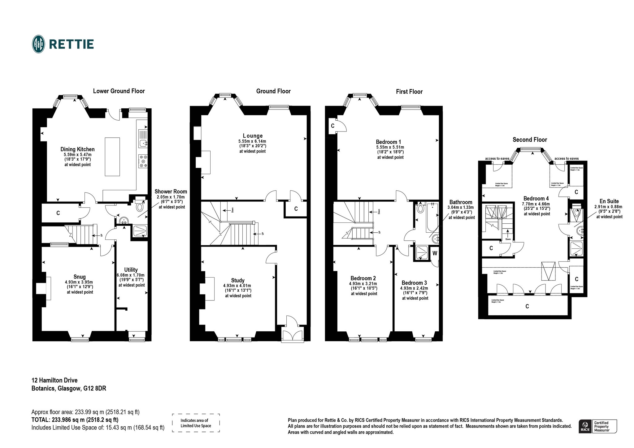
Extending to seven main apartments, this full townhouse was originally over three floors and now includes the attic floor which is an innovative conversion which provides an amazing attic room/bedroom four with dormer window, en suite shower room and excellent eaves storage.
This utterly charming traditional, blonde sandstone terraced house is in a particularly desirable section of Hamilton Drive and forms part of a small row of terraced properties in the heart of the “Botanics” area. Limited in supply this “C” listed home was built circa 1850 by Robert Crawford and backs onto the tree lined River Kelvin therefore having wonderful seasonal views with full screening in the summer and views through the trees in winter to the edge of the river and the walkway.
Number 12 is part of the central section of this part of Hamilton Drive with the benefit of extra windows, width and depth.
Internally the property has incredibly versatile accommodation over the four floors and whilst the rooms are spacious, the house remains easily manageable and comfortable. There are numerous notable features including the quality wooden floors, fireplaces and ornate cornicing and the location is so desirable due to being so close to both Great Western Road and Byres Road. At the far end of Hamilton Drive there is access to the beautiful Botanic Gardens, with lovely walks around the River Kelvin and into Kelvingrove Park.
Accommodation:
Ground Floor
• Front entrance vestibule with double storm doors.
• Welcoming reception hall with wooden flooring and ornate cornicing.
• Family sitting room/study with three windows to the front, wooden flooring, focal point fireplace and ornate cornicing.
• Elegant main lounge with three section bay window to the rear, extra window (also to the rear), wooden flooring, focal point fireplace and corner storage cupboard.
Lower Ground Floor
• Lower hallway with storge off,
• Comfortable TV room/snug with window to the front, focal point fireplace and wooden flooring. Could also be used as bedroom five.
• Downstairs shower room.
• Surprisingly large utility room/store room.
• Fitted dining kitchen with three section window to the rear, door to the garden and an additional window to the rear.
First Floor
• Impressive bedroom number one (principal) which is above the lounge and again has a three section bay window to the rear and an additional window to the rear. Ornate ceiling cornice and restored wood finishes to windows, facings and skirtings.
• Bedroom two with three windows to the front.
• Bedroom three with window to the front.
• Bathroom with four piece suite including a shower cubicle.
Attic Floor
• Contemporary glass sided staircase to the attic conversion.
• Substantial attic/bedroom four with wooden flooring, dormer window to the rear and velux window to the front.
• Attic en suite shower room.
• Excellent eaves storage space.
• Gas central heating.
• Planted garden to the front behind the ornate wrought iron railings.
• Private, enclosed garden to rear with patio/terrace, grass and paved pathway down to the lower patio/terrace.
More Details
EPC: D
Council Tax:
Tenure: Freehold
Your home may be repossessed if you do not keep up repayments on your mortgage. There may be a fee for mortgage advice. The actual amount you pay will depend upon your circumstances.
Similar Properties
Looking To Sell Or Let?
Rettie is one of the most trusted and well-respected names in property. Our unrivalled market knowledge helps people from around the world buy, sell, let and develop property in Scotland and the North East of England - from city apartments and rural cottages to large townhouses and prime country homes, farms and estates. We deal with some of the most prestigious properties on the market, but provide the same exceptional standards of service and value for money to all our clients.
