Flat 8, Norval Court, 12 Norval Street, Partick, Glasgow, G11 7RX
Property Description
A freshly presented two bedroom apartment, offering move-in ready accommodation in the peaceful Norval Court development in Partick.
The property enjoys a gorgeous approach via Norval Court’s signature “Atrium” hallway; a bright and airy communal space that adds character, draws natural light into the heart of the building, and compliments the apartment’s exacting interior standard.
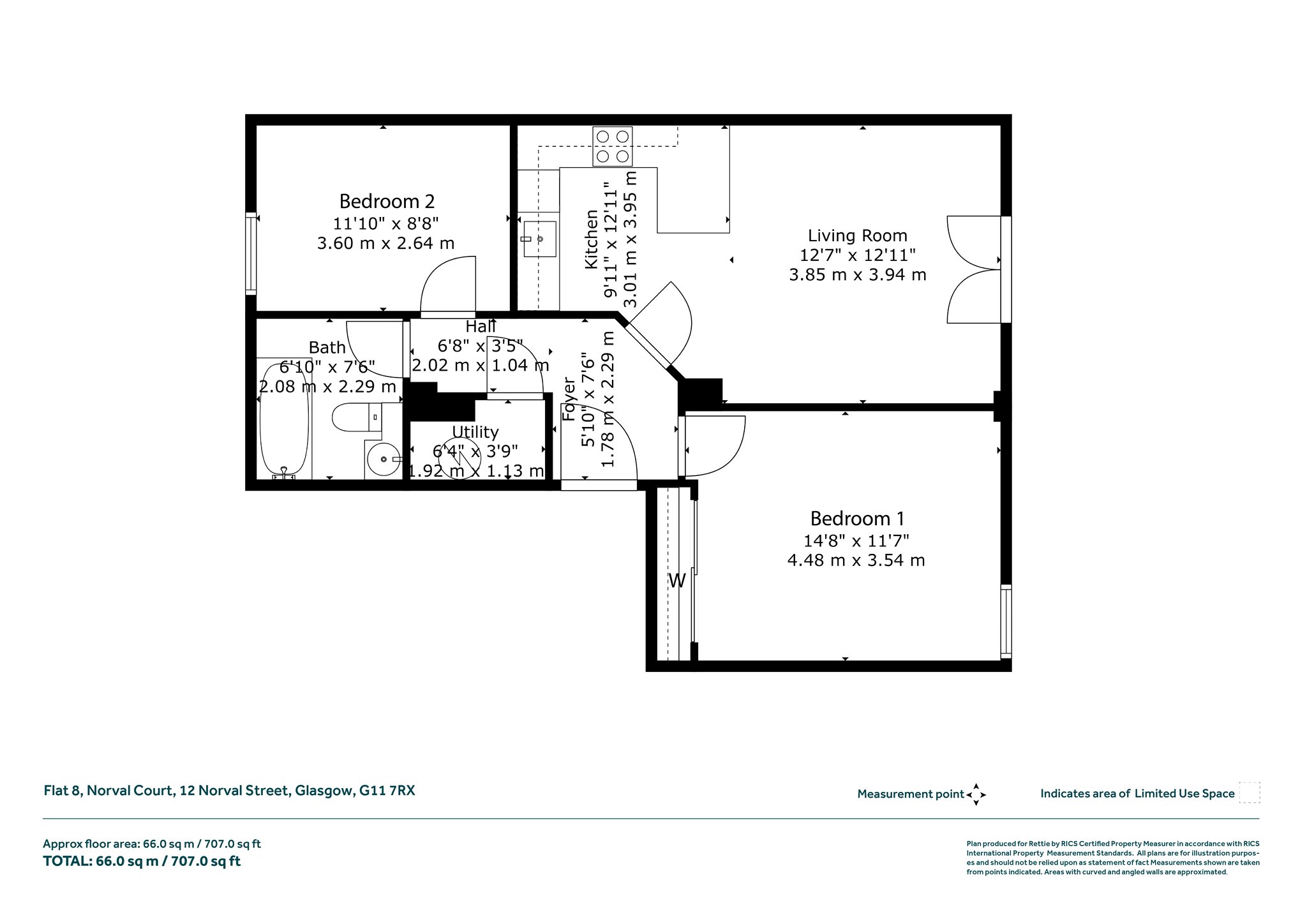
The broad lounge enjoys a southward aspect from a brilliant Juliet balcony, ensuring sunlight throughout the day. This space is open to a modern fitted kitchen, designed with sleek white gloss cabinetry, contrasting grey worktops, a metallic splashback, and a breakfast bar, perfect for casual dining or entertaining.
Both bedrooms are well proportioned double rooms, each freshly decorated and newly carpeted. The principal (main) bedroom benefits from a built-in mirrored wardrobe while the second bedroom offers flexibility as a guest room, home office, or additional living space. The bathroom has also been fully modernised with a tasteful tiled finish and features a white three-piece suite with an electric shower over the bath.
Attention should be drawn to the newly installed electric heating, new immersion water heating system, fresh décor, new flooring throughout, and a combination of double and triple glazed windows enhancing comfort and creating a sense of serenity. Norval Court also has secure entry and lift access to all floors.
This superb property will appeal to a wide range of buyers, from professionals, discerning buy-to-let investors, first-time purchasers and those seeking a move-in-ready home in a prime West End location. Discreetly situated moments from Dumbarton Road, Crow Road, and beyond, Norval Court has easy access to the area’s variety of shops, cafés, restaurants; and excellent transport links including Partick Station, the Clydeside Expressway, and the Clyde Tunnel.
Accommodation
- Secure entry system.
- Attractive communal atrium and stairwell.
- Elevator access to all levels.
- Reception hall with useful storage cupboard and adjustable railed spotlighting.
- Bright lounge/dining room with south facing Juliet balcony.
- Contemporary open-plan kitchen with electric oven, hob, extractor, free standing washing machine, and fridge.
- Principal double bedroom with triple glazed window to the rear and built-in mirrored wardrobe.
- Second double bedroom with window to the Atrium.
- Modern bathroom with white suite and electric shower over bath.
- Electric heating.
- On-street parking.
More Details
EPC: C
Council Tax: D
Tenure: Freehold
Your home may be repossessed if you do not keep up repayments on your mortgage. There may be a fee for mortgage advice. The actual amount you pay will depend upon your circumstances.
Similar Properties
Looking To Sell Or Let?
Rettie is one of the most trusted and well-respected names in property. Our unrivalled market knowledge helps people from around the world buy, sell, let and develop property in Scotland and the North East of England - from city apartments and rural cottages to large townhouses and prime country homes, farms and estates. We deal with some of the most prestigious properties on the market, but provide the same exceptional standards of service and value for money to all our clients.
