Property Description
Benefitting from an extremely convenient situation in the West End conservation area of Broomhill, this attractive two bedroom apartment offers bright, comfortable living space within minutes walk of numerous local amenities and has the added advantage of access to a beautiful resident's green to the rear.
The home for sale is held within a well-maintained red sandstone tenement on Crow Road, adjacent to Broomhill Cross. Immediately surrounding the property you will find a wonderful collection of cafes, restaurants, coffee shops and boutiques on Crow Road, which combine to offer a charming local high street – perfect for mid-week coffees or long, lazy lunches over the weekend. This position is very handy for anyone who requires quick regular access to major road networks, being within minutes drive of the Clydeside Expressway & Clyde Tunnel, which lead quickly to the M8 and M74 motorway networks – also within easy walking distance of Hyndland Station. Broomhill has become hugely popular with healthcare professionals who work at the QEUH and 267 Crow Road is within easy commuting distance for those who prefer to leave the car and cycle or walk to work at the hospital. Broomhill is also within cycling distance of Byres Road & Glasgow University and as such this area is just as popular with students who are attending this renowned institution.
Access to the home for sale is via secure entrance door with buzzer system, which gives access to a very neat communal hall and stairway complete with traditional tiling and dark hardwood balustrades that edge the staircases that lead to upper levels. To the rear of the building there is a pleasant resident’s garden area which is laid to lawn and has purpose-built refuse stores. As shown in the attached photographs and HD video there is also a broad expanse of resident's garden with lawn, paved patio area for bbqs and little ones to play in - all surround by beautiful matures trees amongst which colourful bunting is draped.
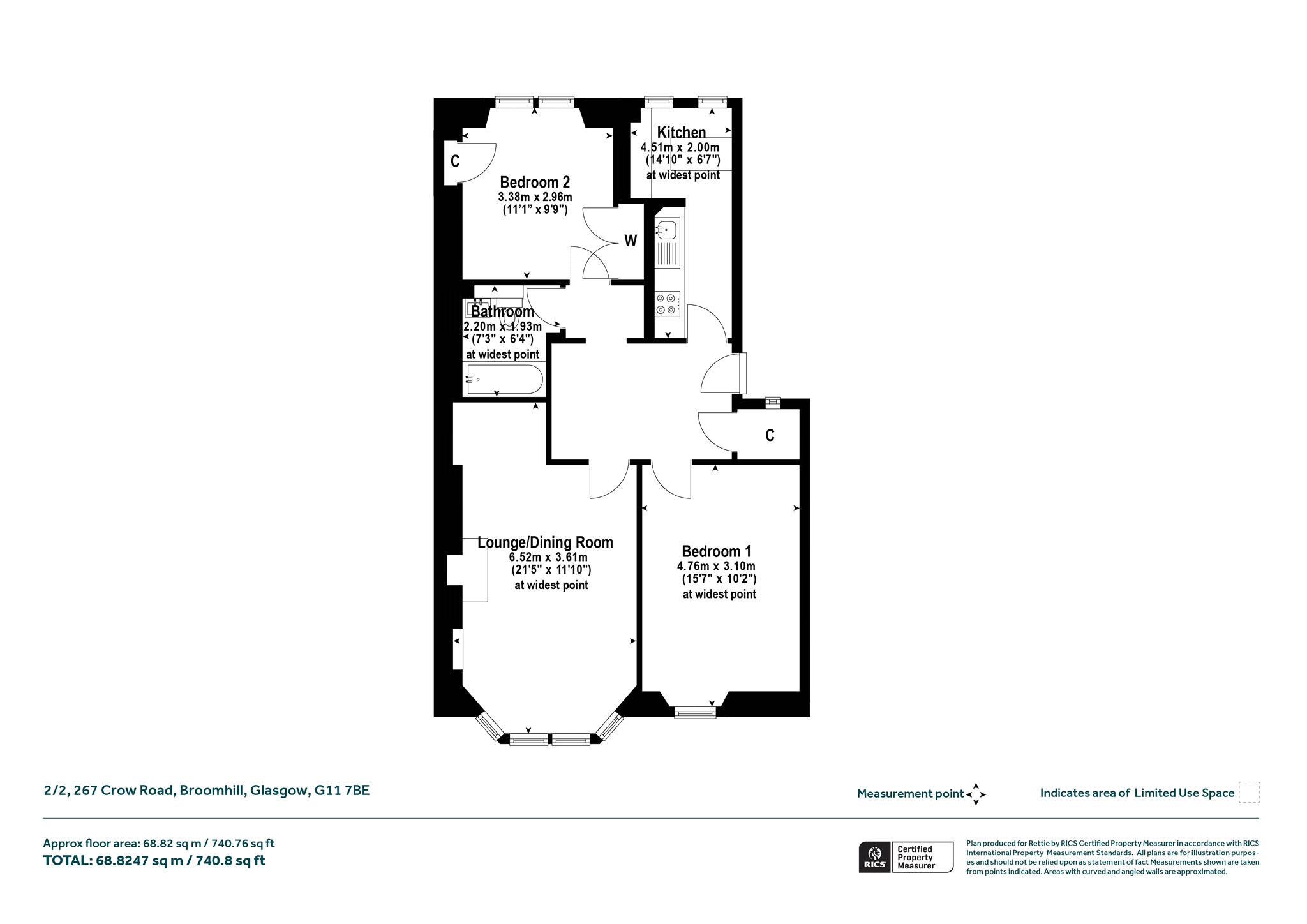
Internally this is an attractive, well put together apartment which has been carefully maintained by the current owners to a high standard. As such the property is ready to be moved into and enjoyed immediately. In brief the accommodation extends to; entrance hall with cupboard, bay window living room which retains a recess where a piano is located but this could also make a brilliant dedicated work from home space too, there are two comfortable double bedrooms of which the prinicpal is of very comfortable proportions, there is a galley style breakfasting kitchen complete with full complement of fitted appliances and a great selection of wall and base level storage units. The bathroom is bright and well-presented with a combination of white gloss and stone effect tiling, white three-piece suite and shower over bath.
The property has double glazed windows and a gas-fired central heating system.
Attributes
- Prime Location: Situated in the highly desirable West End district of Thornwood, close to Broomhill Cross and Crow Road.
- Excellent Local Amenities: Surrounded by cafes, restaurants, coffee shops, and boutiques – ideal for a vibrant lifestyle.
- Outstanding Transport Links:
o Minutes from the Clydeside Expressway, Clyde Tunnel, M8 & M74.
o Walking distance to Hyndland Station.
• Appeals to Key Demographics:
o Popular with healthcare professionals due to proximity to Queen Elizabeth University Hospital.
o Within cycling distance of Byres Road and Glasgow University – attractive to students.
• Well-Maintained Building:
o Attractive red sandstone tenement with secure entry system.
o Clean, traditional communal areas with original features.
• Private Outdoor Space:
o Access to beautiful rear residents’ garden with lawn, patio, mature trees, and play area.
• Move-In Ready Interior:
o Bright, comfortable living spaces maintained to a high standard.
o Bay window living room with flexible recess (ideal home office or music space).
o Two spacious double bedrooms, especially large principal bedroom.
o Modern galley-style breakfasting kitchen with full appliance set and ample storage.
o Bright bathroom with stylish tiling and shower over bath.
More Details
EPC: C
Council Tax: D
Tenure: Freehold
Your home may be repossessed if you do not keep up repayments on your mortgage. There may be a fee for mortgage advice. The actual amount you pay will depend upon your circumstances.
Similar Properties
Looking To Sell Or Let?
Rettie is one of the most trusted and well-respected names in property. Our unrivalled market knowledge helps people from around the world buy, sell, let and develop property in Scotland and the North East of England - from city apartments and rural cottages to large townhouses and prime country homes, farms and estates. We deal with some of the most prestigious properties on the market, but provide the same exceptional standards of service and value for money to all our clients.
