2/1, 38 Oban Drive, North Kelvinside, Glasgow, G20 6LR
Property Description
38 Oban Drive is a stylish and modern second floor flat situated in the highly sought-after North Kelvinside district, offering an ideal blend of contemporary living and proximity to some of Glasgow's most desirable amenities. Located just a short stroll from the iconic Botanic Gardens, this property enjoys a prime position near Queen Margaret Drive, a vibrant street lined with an array of local cafes, boutiques, and essential services. The lively atmosphere of the area is perfect for those who appreciate both convenience and a sense of community.
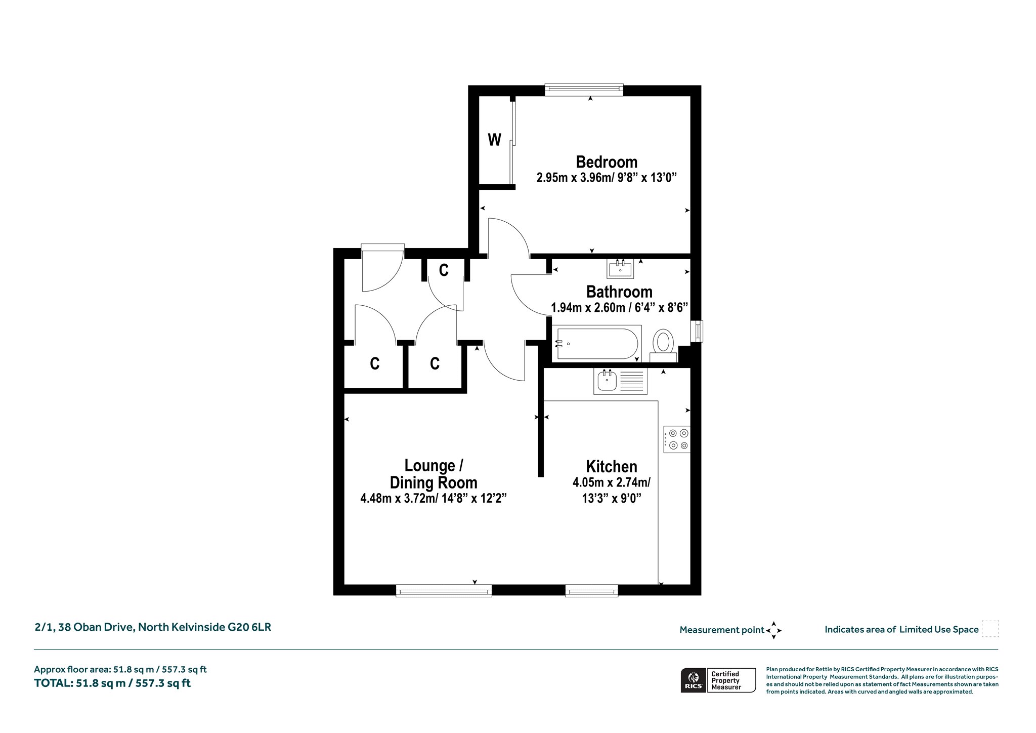
The accommodation itself is well-proportioned, featuring a superb living room with an open-plan kitchen, making it ideal for entertaining or enjoying quiet evenings at home. The flat includes a spacious double bedroom complete with ample storage and a bright three-piece bathroom. Modern finishes and thoughtful design create a welcoming and comfortable living space.
One of the standout features of this property is the allocated parking space, a significant advantage in this part of the city. Additionally, the building offers a communal outside drying green, enhancing the practicality of the accommodation.
Byres Road, one of Glasgow’s most vibrant streets, is just a short walk away, providing access to a wide range of shops, restaurants, and entertainment options. The University of Glasgow is also nearby, making this an ideal location for students and professionals alike. Overall, 38 Oban Drive combines modern living with the charm of North Kelvinside, offering a fantastic opportunity to enjoy the best of Glasgow’s West End.
More Details
EPC: B
Council Tax: C
Tenure: Freehold
Your home may be repossessed if you do not keep up repayments on your mortgage. There may be a fee for mortgage advice. The actual amount you pay will depend upon your circumstances.
Similar Properties
Looking To Sell Or Let?
Rettie is one of the most trusted and well-respected names in property. Our unrivalled market knowledge helps people from around the world buy, sell, let and develop property in Scotland and the North East of England - from city apartments and rural cottages to large townhouses and prime country homes, farms and estates. We deal with some of the most prestigious properties on the market, but provide the same exceptional standards of service and value for money to all our clients.
