Property Description
Tucked away in a quiet, leafy corner of a peaceful cul-de-sac, this well-appointed two-bedroom semi-detached villa enjoys an attractive setting within the popular Glasgow suburb of Old Drumchapel. Offering generous parking, an integral garage, and a beautifully kept garden, the property has been carefully maintained by the current owners and is presented in walk-in condition — ideal for a wide range of buyers.
The location offers a superb balance of tranquillity and convenience. A broad selection of amenities can be found in the surrounding area, including schools, shops, supermarkets, leisure facilities, and parkland. Old Drumchapel is particularly popular with those who commute throughout West Central Scotland by car, thanks to its easy access to Great Western Road, which connects quickly to the M8 and M74 motorway networks. Travelling westward, the A82 leads directly to Loch Lomond and beyond, while Glasgow Airport is reachable in around 20 minutes.
Externally, the property is fronted by a large paved driveway capable of accommodating three mid-sized cars or two larger vehicles, leading to the integral garage with up-and-over door — an ideal space for storing tools, bicycles, garden furniture, or even a motorcycle or fair-weather car. To the rear, the enclosed garden has been tastefully landscaped for ease of maintenance, featuring timber decking, slabbed pathways, mature planting, and a neat lawn — all screened by tall conifers for privacy.
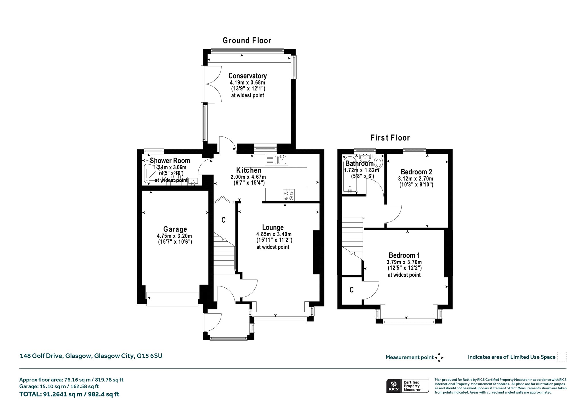
Internally, this bright and inviting home offers accommodation over two levels. On the ground floor, the layout comprises: entrance vestibule with staircase to the upper level; front-facing living room with a wood-burning stove; broad galley-style kitchen with a range of wall and base units plus a full complement of fitted appliances; conservatory to the rear with French doors opening directly to the garden — creating a charming additional sitting or dining space with leafy views; and a tiled shower room with white suite. Upstairs, there are two comfortable double bedrooms, the principal benefiting from in-built wardrobe storage, along with a main bathroom featuring a white suite and shower over bath.
Attributes
- Peaceful cul-de-sac location in popular Old Drumchapel
- Well-presented two-bedroom semi-detached villa
- Large paved driveway for up to three cars
- Integral garage with up-and-over door
- Enclosed rear garden with decking, lawn, and mature planting
- Front-facing living room with wood-burning stove
- Broad galley-style kitchen with fitted appliances
- Bright conservatory with French doors to garden
- Ground floor shower room and upper floor main bathroom
- Two double bedrooms, principal with in-built wardrobes
- Easy access to Great Western Road, motorway network, and A82 to Loch Lomond
- Around 20 minutes to Glasgow Airport
- Just around the corner from the nearest bus stop and approximately 10 minutes to Drumchapel Train Station.
More Details
EPC: D
Council Tax: D
Tenure: Freehold
Your home may be repossessed if you do not keep up repayments on your mortgage. There may be a fee for mortgage advice. The actual amount you pay will depend upon your circumstances.
Similar Properties
Looking To Sell Or Let?
Rettie is one of the most trusted and well-respected names in property. Our unrivalled market knowledge helps people from around the world buy, sell, let and develop property in Scotland and the North East of England - from city apartments and rural cottages to large townhouses and prime country homes, farms and estates. We deal with some of the most prestigious properties on the market, but provide the same exceptional standards of service and value for money to all our clients.
