1/2, 18 Melrose Gardens, North Kelvinside, Glasgow, G20 6RA
Property Description
Occupying a preferred first floor position within an elegant red sandstone tenement, this exceptional one-bedroom apartment seamlessly blends traditional charm with modern sophistication. Located in the popular North Kelvinside area this immediately impressive property offers stylish, spacious living in the heart of Glasgow’s vibrant West End.
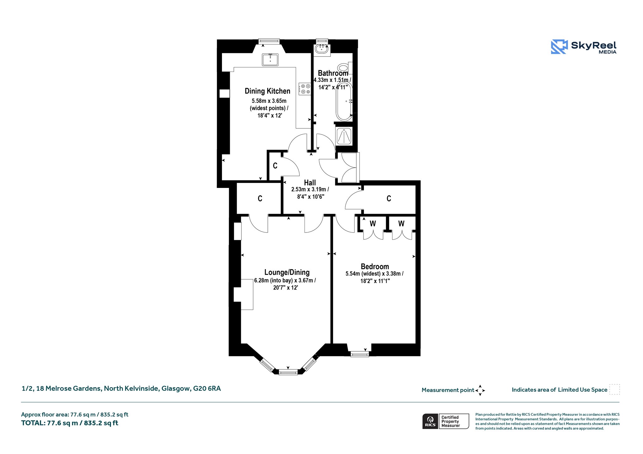
Internally, the accommodation is beautifully presented throughout and has been comprehensively upgraded to an exacting standard with notable highlights including a superb bay windowed lounge, a stylish dining kitchen, a spacious double bedroom and a contemporary four-piece bathroom. Additional features include useful storage off the reception hall and lounge, fitted wardrobes in the bedroom, ceiling cornice in the lounge and sanded/varnished flooring in the reception hall, lounge and kitchen.
Melrose Gardens is a quiet, tree-lined address in the heart of North Kelvinside, just moments from the bustling cafés, independent shops, and popular restaurants of Great Western Road and Byres Road. The area is also within easy reach of the Botanic Gardens, Kelvingrove Park, and the University of Glasgow. Excellent public transport links – including nearby subway stations and frequent bus services – provide quick access to the city centre and beyond. For commuters, the M8 motorway network is easily accessible.
Accommodation:
- Security entry system
- Communal entrance close
- Welcoming reception hall with sanded/vanished flooring and useful storage cupboard off
- Fabulous lounge with three section bay window, focal point fireplace, sanded/varnished flooring and storage cupboard/study off
- Stunning dining kitchen complete with generous storage, appliances (newly installed/unused), sanded/varnished flooring recess/study area and window to the rear
- Bedroom with window to the front, Millers woollen carpet and fitted wardrobes
- Stylish four-piece bathroom comprising bath, separate shower enclosure, toilet and wash hand basin. Window to the rear
- Gas central heating
- Sash and case windows
- Farrow and Ball paintwork throughout
- Well maintained shared garden to the rear of the building (shared with each close on the street)
- Availability of on street residents’ parking permit
More Details
EPC: C
Council Tax: C
Tenure: Freehold
Your home may be repossessed if you do not keep up repayments on your mortgage. There may be a fee for mortgage advice. The actual amount you pay will depend upon your circumstances.
Similar Properties
Looking To Sell Or Let?
Rettie is one of the most trusted and well-respected names in property. Our unrivalled market knowledge helps people from around the world buy, sell, let and develop property in Scotland and the North East of England - from city apartments and rural cottages to large townhouses and prime country homes, farms and estates. We deal with some of the most prestigious properties on the market, but provide the same exceptional standards of service and value for money to all our clients.
