0/2, 22 Kennoway Drive, Thornwood, Glasgow, G11 7TZ
Offers Over £139,000
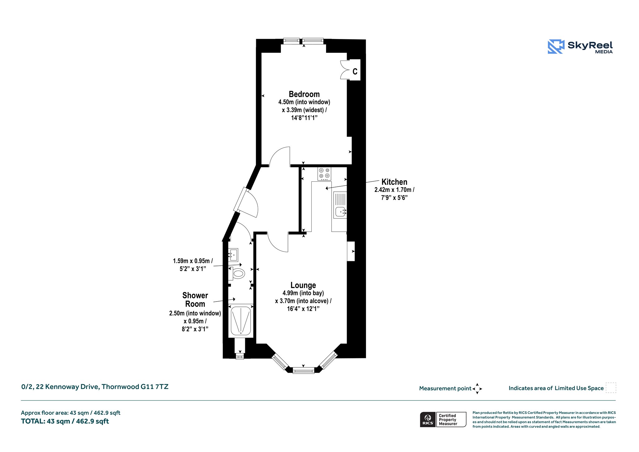
Ground Floor Apartment
1 Bedroom
1 Bathroom
1 Reception Room
463 sq.ft
Communal Garden
On Street/Permit
Property Description
This exceptional one-bedroom flat occupies an elevated ground floor position within a traditional red sandstone tenement building and is located in the highly popular and convenient Thornwood district. 22 Kennoway Drive is exceptionally well placed to take advantage of an enviable selection of amenities on Dumbarton Road and Crow Road including Crow Road Retail Park. In addition, there is easy access to excellent transport links, The University of Glasgow, Kelvingrove Park and The Botanic Gardens.
The internal accommodation has been comprehensively upgraded and finished to an exacting standard, benefits from excellent natural light due to its south facing frontage and has a comfortable feel. Notable highlights include a superb bay windowed lounge/dining room, a stunning open plan kitchen, a generously proportioned double bedroom and a stylish three-piece shower room.
Accommodation:
- Security entry system
- Communal entrance close
- Welcoming reception hall with sanded/varnished flooring
- Impressive lounge/dining room with three bay window, focal point fireplace and ceiling cornice
- Impressive open plan kitchen complete with a range of base and wall units and integrated appliances
- Generous double bedroom with two section window to the rear
- Stylish three-piece shower room. Window to the front
- Gas central heating
- Double glazing
- Private front garden
- Shared garden to the rear of the building
More Details
EPC: D
Council Tax: B
Tenure: Freehold
Your home may be repossessed if you do not keep up repayments on your mortgage. There may be a fee for mortgage advice. The actual amount you pay will depend upon your circumstances.
Similar Properties
Looking To Sell Or Let?
Rettie is one of the most trusted and well-respected names in property. Our unrivalled market knowledge helps people from around the world buy, sell, let and develop property in Scotland and the North East of England - from city apartments and rural cottages to large townhouses and prime country homes, farms and estates. We deal with some of the most prestigious properties on the market, but provide the same exceptional standards of service and value for money to all our clients.
