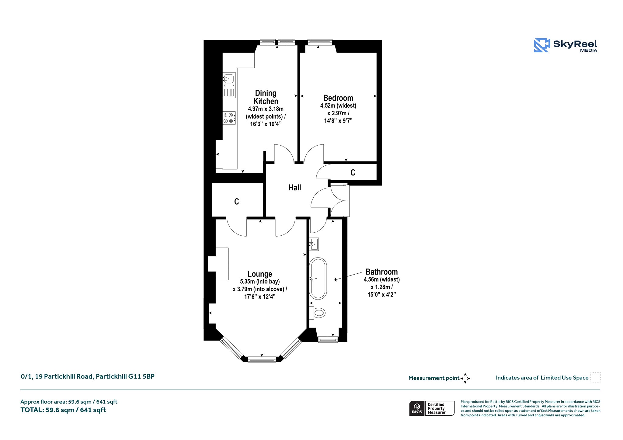
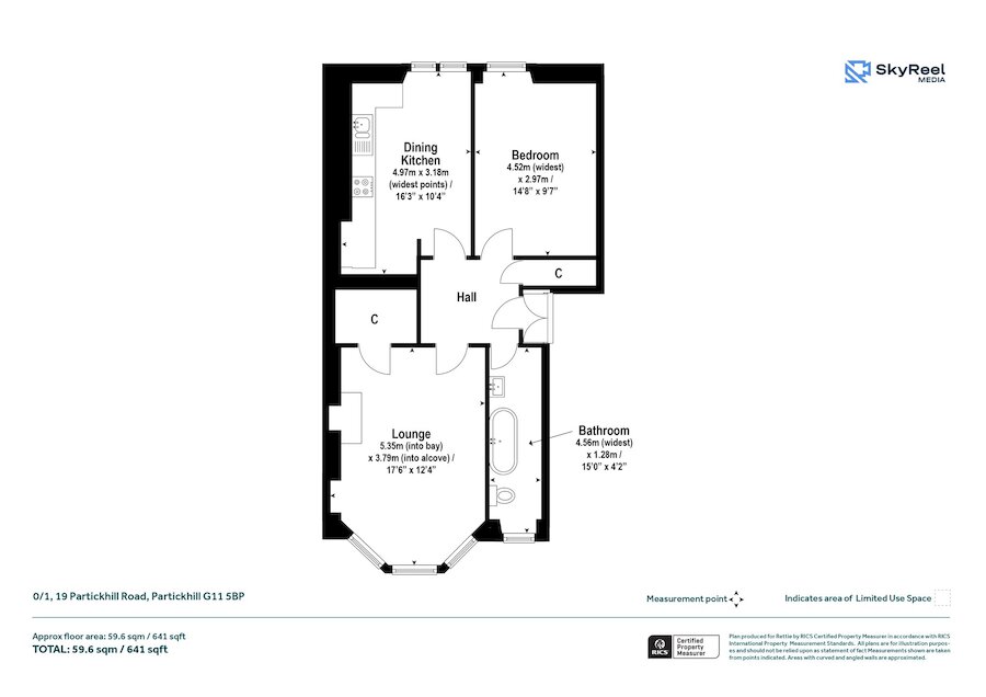
0/1, 19 Partickhill Road, Partickhill, Glasgow, G11 5BP
Property Description
Occupying an elevated ground floor position within an elegant red sandstone tenement, this appealing one bedroom apartment combines traditional character with modern comfort in one of Glasgow’s most sought-after West End locations.
The accommodation benefits from excellent natural light, has a comfortable feel and is beautifully presented throughout. The interior includes superb bay-windowed lounge, a separate dining kitchen, a spacious double bedroom, and a delightful three-piece bathroom. Externally there is a well-tended shared garden to the rear of the building and the added bonus of a private garden to the front.
19 Partickhill Road is exceptionally well placed to enjoy the vibrant atmosphere and amenities of the West End. Nearby Byres Road and Hyndland Road offer an outstanding selection of independent shops, cafés, bars, and restaurants. The area is also well served by excellent transport links, with Partick and Hyndland railway stations and frequent bus services providing easy access to Glasgow City Centre and beyond. Beautiful green spaces such as the Botanic Gardens and Kelvingrove Park are within walking distance, offering ideal spots for relaxation and leisure.
Accommodation:
- Security entry system
- Communal entrance close
- Storm door entrance vestibule leading to broad and welcoming reception hall with wooden flooring and useful storage cupboard off
- Superb lounge with three section bay window, ceiling cornice, focal point fireplace, shelved press and storage cupboard off
- Dining kitchen complete with a range of base and wall units, appliances, wooden flooring and two section window to the rear
- Generous double bedroom with window to the rear
- Stylish three-piece bathroom comprising bath, over bath shower, toilet and wash hand basin. Window to the front
- Gas central heating
- Sash and case windows
- Well presented shared garden to the rear of the building
- Private garden to the front
- Availability of on street residents’ parking permit
More Details
Situation: Communal Garden
Council Tax Band: D
Tenure: Freehold
Your home may be repossessed if you do not keep up repayments on your mortgage.
There may be a fee for mortgage advice. The actual amount you pay will depend upon your circumstances. The fee is up to 1% but a typical fee is 0.3% of the amount borrowed.
Similar Properties
Looking To Sell Or Let?
Rettie is one of the most trusted and well-respected names in property. Our unrivalled market knowledge helps people from around the world buy, sell, let and develop property in Scotland and the North East of England - from city apartments and rural cottages to large townhouses and prime country homes, farms and estates. We deal with some of the most prestigious properties on the market, but provide the same exceptional standards of service and value for money to all our clients.
