Flat 2/2, 141 Deanston Drive, Shawlands, Glasgow, G41 3LP
Property Description
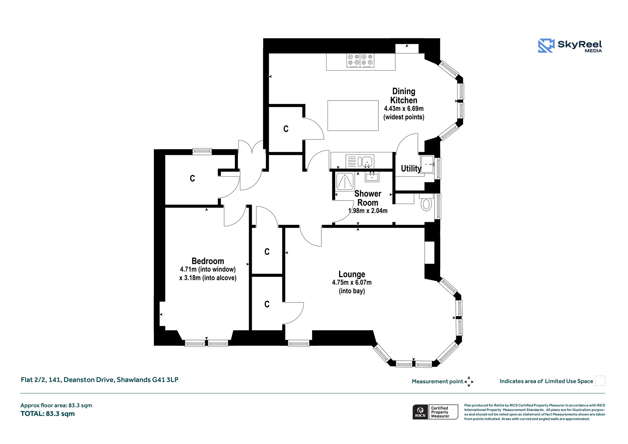
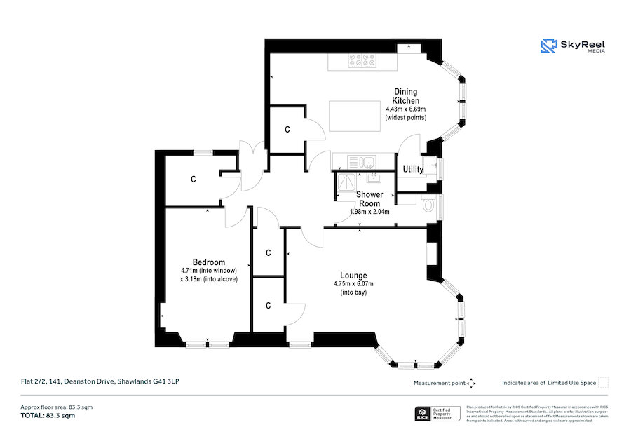
Deanston Drive is a truly superb one bedroomed, second floor flat. This flat truly has it all; large corner lounge with bay window, a dining sized kitchen (with a bay window), utility space, an abundance of storage cupboards. Early viewing for this wonderful flat is highly recommended.
This apartment has enjoyed extensive upgrading and hence is presented to the market in true walk-in style condition, tastefully decorated in modern neutral tones throughout.
This red sandstone building is entered via secure door entry system into a well-kept communal close (complete with original tiling) and stairwell.
The accommodation of the flat itself comprises: large welcoming reception hallway with excellent storage off. The beautifully presented lounge with corner bay window formation (complete with snug seating) provides exceptional views along Deanston Drive and Strathyre Street. The stunning dining sized kitchen features a range of wall and floor mounted units, a breakfasting bar, with ample space for dining table and chairs in the bay window: a great entertainment space. There is a large utility cupboard conveniently placed off kitchen. A generously sized double bedroom is set to the rear of the flat and completing the overall accommodation is a modern, tiled shower room with white three piece suite.
The property benefits from double glazing, gas central heating and fresh and tasteful decoration throughout. It offers a seamless blend of period features.
Shawlands is considered by many to be the "brunch capital of Glasgow. While the brunch spots are excellent and numerous, there are also a wide range of other amenities including restaurants, bars, parks and much more. This flat is perfectly situated to enjoy everything that Shawlands has to offer, including Queens Park at the end of the street as well as excellent transport links with Pollokshaws East and Crossmyloof a short walk away.
More Details
Situation: Communal Garden
Council Tax Band: C
Tenure: Freehold
Your home may be repossessed if you do not keep up repayments on your mortgage. There may be a fee for mortgage advice. The actual amount you pay will depend upon your circumstances.
Similar Properties
Looking To Sell Or Let?
Rettie is one of the most trusted and well-respected names in property. Our unrivalled market knowledge helps people from around the world buy, sell, let and develop property in Scotland and the North East of England - from city apartments and rural cottages to large townhouses and prime country homes, farms and estates. We deal with some of the most prestigious properties on the market, but provide the same exceptional standards of service and value for money to all our clients.
