Offers Over £189,000
Upper Floor Apartment
1 Bedroom
1 Bathroom
1 Reception Room
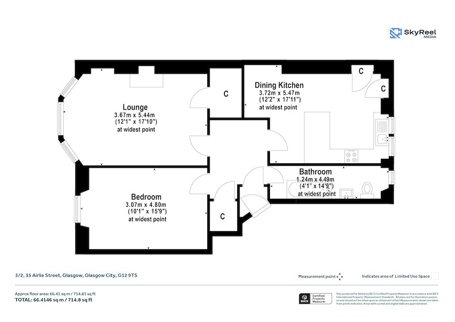
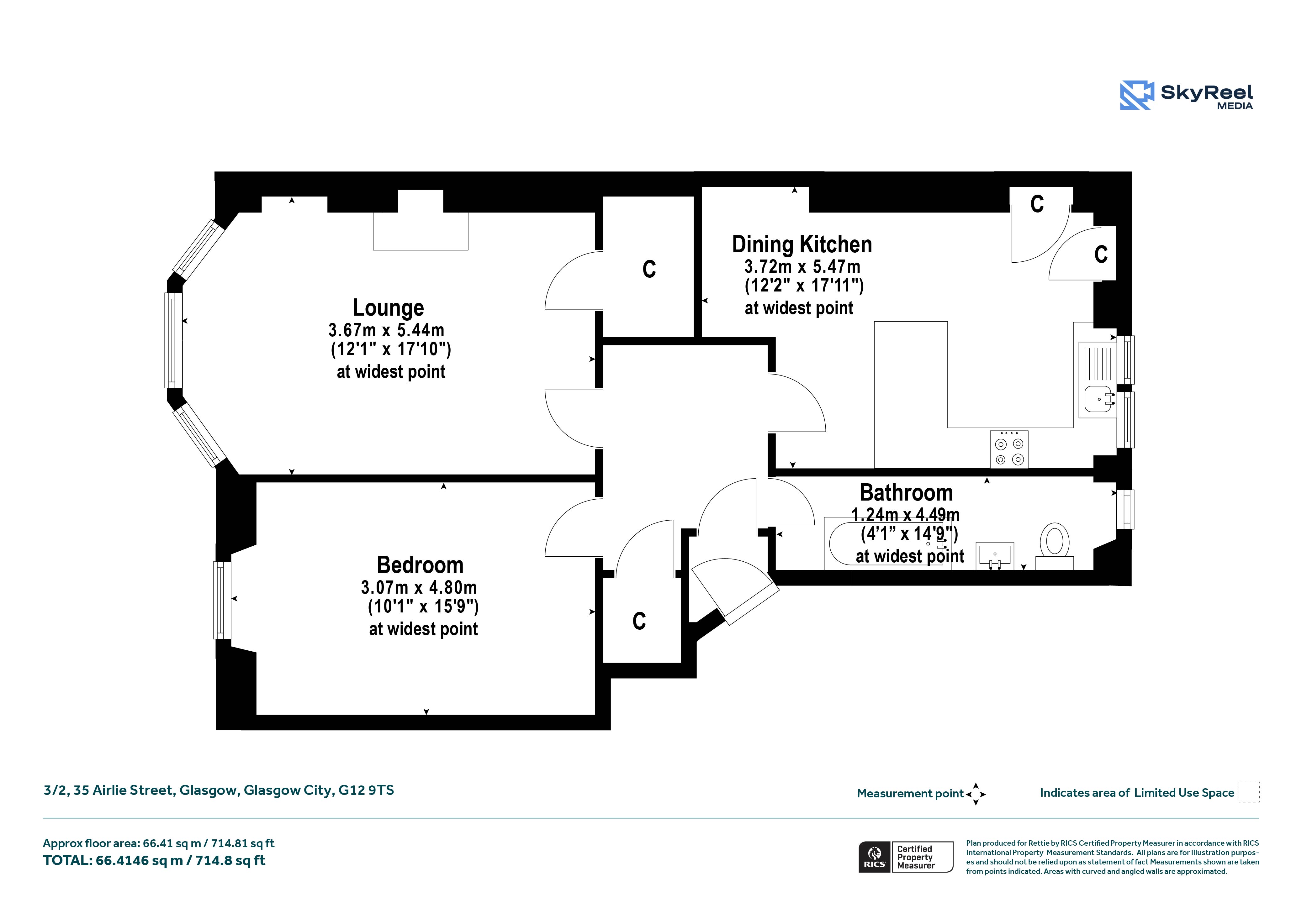
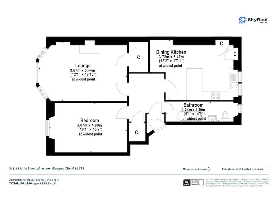
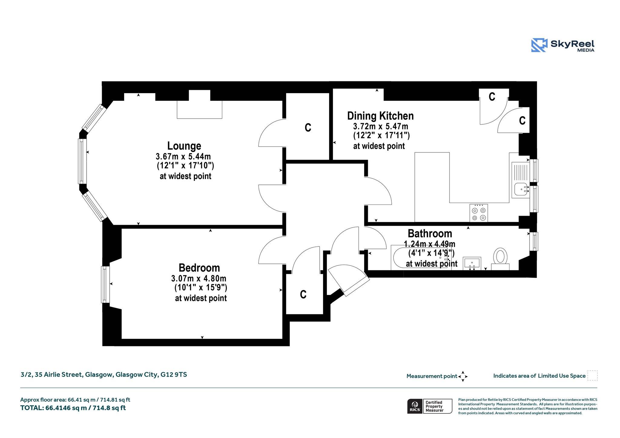
715 sq.ft
Communal Garden
On Street/Permit
Property Description
Enjoying a bright open outlook from the third floor position within a traditional red sandstone tenement, this one bedroom apartment will provide comfortable accommodation in a highly desirable district, with the exciting benefit of a rear dining kitchen.
The accommodation is naturally bright, well proportioned and nicely presented throughout with the notable highlights being a fabulous bay-windowed lounge and kitchen with ample room for dining or the ability to house a fully dedicated “work from home” setup. The property is comprised of a generous double bedroom, a three piece bathroom and an invaluable cupboard off the reception hall, in addition to another sizable storage cupboard accessed from the lounge.
Located in the sought after Hyndland area, 35 Airlie Street enjoys a prime position close to an enviable selection of amenities. A superb selection of cafés, bars, and restaurants can be found nearby on Hyndland Road, Byres Road, and Dumbarton Road, alongside independent shops, supermarkets, and boutiques. Excellent public transport links are available via Hyndland and Partick train stations and numerous bus routes, while the Clyde Tunnel and M8 motorway network are easily accessible for those commuting by car. The property is also well placed for the University of Glasgow, Botanic Gardens, and Kelvingrove Park, offering green open spaces and cultural attractions right on the doorstep.
Accommodation:
- Security entry system.
- Communal entrance close.
- Storm door entrance vestibule.
- Welcoming reception hall with useful storage cupboard off.
- Superb lounge with three section bay window and focal timber mantelpiece.
- Contemporary dining kitchen complete with a range of base units, electrical oven and hob, two windows to the rear, and dining recess.
- Generous double bedroom with window to the front.
- Stylish three-piece bathroom, with electric shower over bath.
- Gas central heating.
- Double glazing.
- Shared garden to the rear of the building.
- Availability of on street residents’ parking permit.
More Details
EPC: C
Council Tax: D
Tenure: Freehold
Your home may be repossessed if you do not keep up repayments on your mortgage. There may be a fee for mortgage advice. The actual amount you pay will depend upon your circumstances.
Similar Properties
Looking To Sell Or Let?
Rettie is one of the most trusted and well-respected names in property. Our unrivalled market knowledge helps people from around the world buy, sell, let and develop property in Scotland and the North East of England - from city apartments and rural cottages to large townhouses and prime country homes, farms and estates. We deal with some of the most prestigious properties on the market, but provide the same exceptional standards of service and value for money to all our clients.














































