Flat 17, Norval Court, 12 Norval Street, Partick, Glasgow, G11 7RX
Property Description
A bright modern two bedroom apartment that occupies a second floor position of the quiet yet popular Norval Court development in the heart of Partick. This beautifully presented property also showcases the building’s impressive central atrium foyer, and enjoys a calm setting with all the attractions of the West End close at hand, with lift access to each level.
The property has been carefully refurbished, with a well considered open plan layout, and excellent natural light from a Juliet balcony in the main living area. The fitted kitchen features sleek white gloss units, contrasting grey worktops, a metallic splashback, and a breakfast bar that is ideal for relaxed meals or informal entertaining.
There are two well proportioned double bedrooms. The main bedroom features a fitted mirrored wardrobe, while the second bedroom offers flexible use as a guest room, study. The modern bathroom has been refitted in a clean tiled finish and includes a white three piece suite with an electric shower over the bath.
Further notable features include modern electric heating and new flooring throughout. The building provides secure entry, lift access to all levels, and Norval Court’s distinctive internal atrium, a bright communal space that adds both light and character to the development.
This appealing home will suit a wide range of buyers, from first time purchasers to investors and those seeking a comfortable property that is easy to maintain and ready to move into. Ideally positioned for the many amenities of Partick and the wider West End, Norval Street is just moments from Dumbarton Road, Crow Road, and Byres Road, with excellent transport links nearby including Partick Station, the Clydeside Expressway, and the Clyde Tunnel.
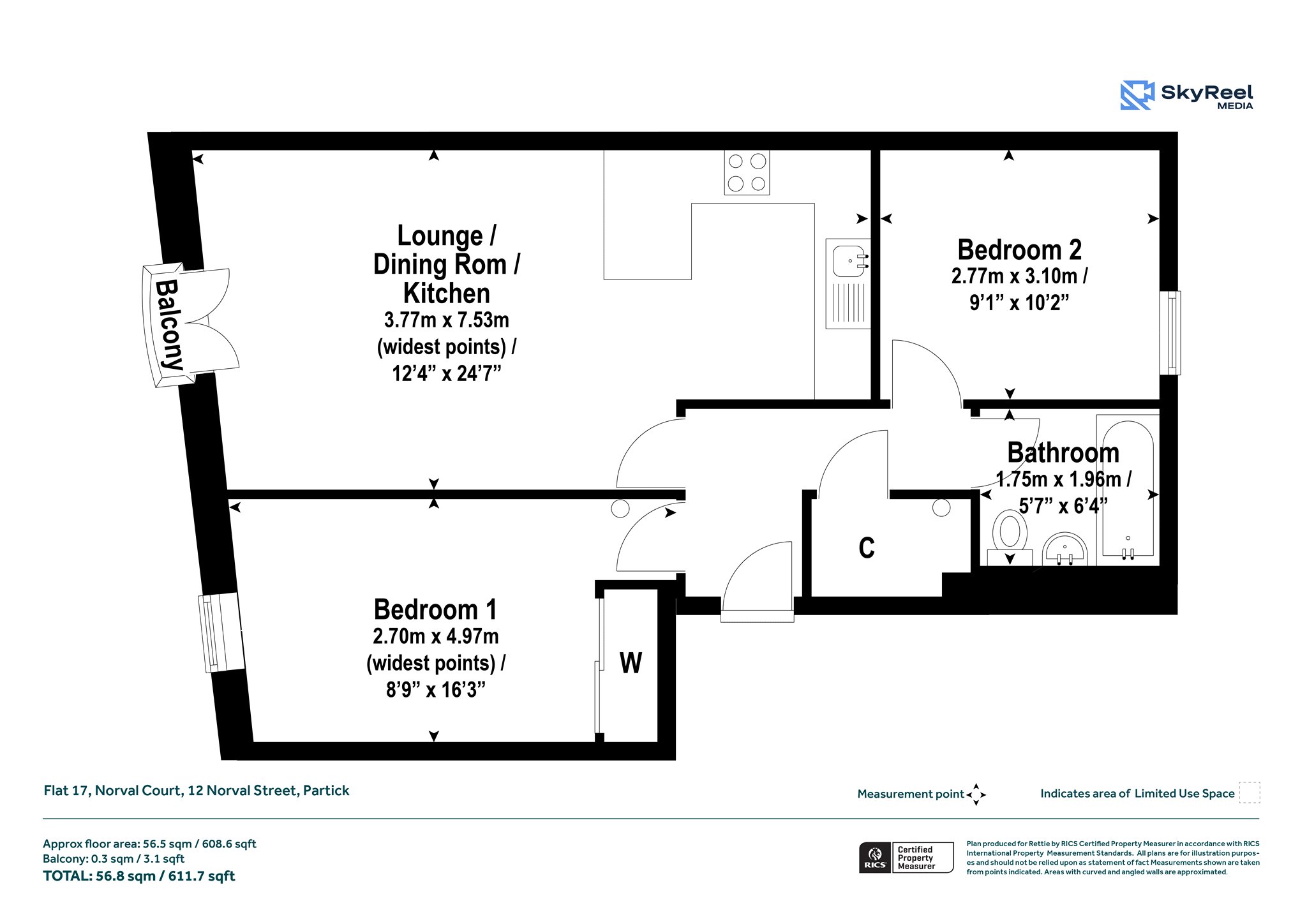
Accommodation
- Secure door entry system.
- Well maintained communal atrium and stairwell.
- Elevator to all levels.
- Reception hall with useful storage cupboard off.
- Lounge and dining room with a Juliet balcony granting a bright outlook.
- Contemporary open plan kitchen with oven, hob, extractor, freestanding washing machine, fridge and breakfast bar.
- Principal bedroom with fitted mirrored wardrobe and window to the front.
- Bedroom two has been newly carpeted, with a window to the Atrium.
- Modern bathroom with white suite and electric shower over bath.
- Electric heating.
- On street parking.
More Details
EPC: C
Council Tax: D
Tenure: Freehold
Your home may be repossessed if you do not keep up repayments on your mortgage.
There may be a fee for mortgage advice. The actual amount you pay will depend upon your circumstances. The fee is up to 1% but a typical fee is 0.3% of the amount borrowed.
Similar Properties
Looking To Sell Or Let?
Rettie is one of the most trusted and well-respected names in property. Our unrivalled market knowledge helps people from around the world buy, sell, let and develop property in Scotland and the North East of England - from city apartments and rural cottages to large townhouses and prime country homes, farms and estates. We deal with some of the most prestigious properties on the market, but provide the same exceptional standards of service and value for money to all our clients.
