Pedmyre House, Pedmyre Lane, Carmunnock, Glasgow, G76 9EL
Property Description
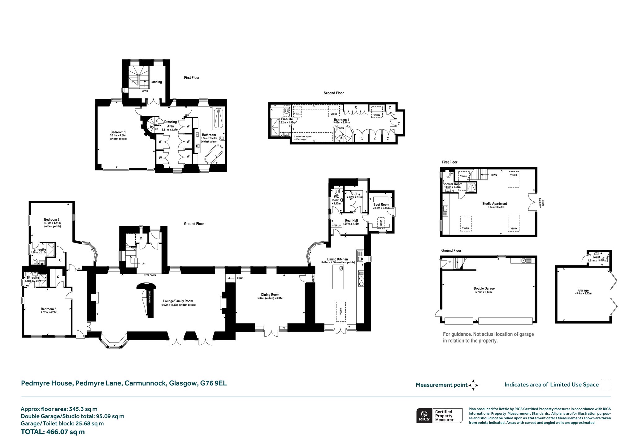
Occupying a commanding position within the historic conservation village of Carmunnock, Pedmyre House is a distinguished and substantial detached residence offering over 5,000 sq ft of thoughtfully designed accommodation, including a self-contained studio apartment, double garage, and a separate garage block.
Dating from the 19th century, this outstanding home blends traditional period character with a modern and contemporary interior. The result is a seamless fusion of timeless elegance and everyday practicality—perfectly suited to modern family life, multi-generational living, entertaining, or working from home. The property sits within generous landscaped gardens, providing a secluded, semi-rural feel just a short drive from Glasgow’s Southside and city centre.
Accommodation
Ground Floor - Entrance vestibule leading into a welcoming central hallway, large family room with feature bay window and fireplace, open-plan to a bright sitting room, forming a striking dual-aspect space, elegant dining room with French doors to the garden—ideal for formal entertaining, contemporary dining kitchen with central island, integrated appliances, and generous casual dining area complete with Rear hall providing access to the utility room, boot room, and WC, bedroom 2 with modern en-suite shower room, bedroom 3, also with a private en-suite, ideal for guest use, a study, or media room, there is additional cloakroom storage and internal garden access.
First Floor - Exceptional principal bedroom suite with dual-aspect windows, bespoke dressing area with twin walk-in wardrobes, luxury bathroom featuring a freestanding bath and walk-in shower, additional landing space, ideal as a reading nook or display area.
Second Floor (Attic) - Bright and private Bedroom 4, complete with en-suite shower room and excellent storage, could be used as a perfect teen suite, guest room or private workspace.
Outbuildings & Additional Accommodation - Detached double garage with self-contained studio apartment above the garage, with open-plan lounge/bedroom, kitchenette, and shower room—ideal for extended family, au pair, home business or rental use
Additional garage block (6.06m x 4.79m) with separate toilet—ideal for workshop use, extra storage, or conversion (subject to planning) with views onto the pond area.
Nestled on the southern fringe of Glasgow, Carmunnock is a hidden gem: a conservation village that offers the perfect balance of rural peace and urban convenience.
Steeped in history and surrounded by open countryside, Carmunnock is known for its traditional stone cottages, winding lanes, and strong sense of community. Residents enjoy tranquil walks in Cathkin Braes Country Park, village events, and access to local amenities including a tearoom, village shop, and the well-regarded Carmunnock Primary School.
At its heart lies the 18th-century Carmunnock Parish Church, with regular community gatherings, farmers’ markets, and seasonal events reinforcing the village's welcoming atmosphere.
Despite its idyllic setting, Carmunnock is just minutes from Glasgow’s Southside and well connected via excellent road links and nearby rail services. Top-performing schools, shops, restaurants, and cultural venues are all easily accessible.
EPC: D
Freehold
More Details
Situation: Private Garden
Council Tax Band: F
Tenure: Contact Branch
Your home may be repossessed if you do not keep up repayments on your mortgage. There may be a fee for mortgage advice. The actual amount you pay will depend upon your circumstances.
Similar Properties
Looking To Sell Or Let?
Rettie is one of the most trusted and well-respected names in property. Our unrivalled market knowledge helps people from around the world buy, sell, let and develop property in Scotland and the North East of England - from city apartments and rural cottages to large townhouses and prime country homes, farms and estates. We deal with some of the most prestigious properties on the market, but provide the same exceptional standards of service and value for money to all our clients.
