1 Caol Court, Thorntonhall, Glasgow, South Lanarkshire, G74 5DB
Offers Over £795,000
Detached House
6 Bedrooms
5 Bathrooms
3 Reception Rooms
Private Garden
Double Garage
Property Description
1 Caol Court, Thorntonhall, Glasgow, G74 5DB
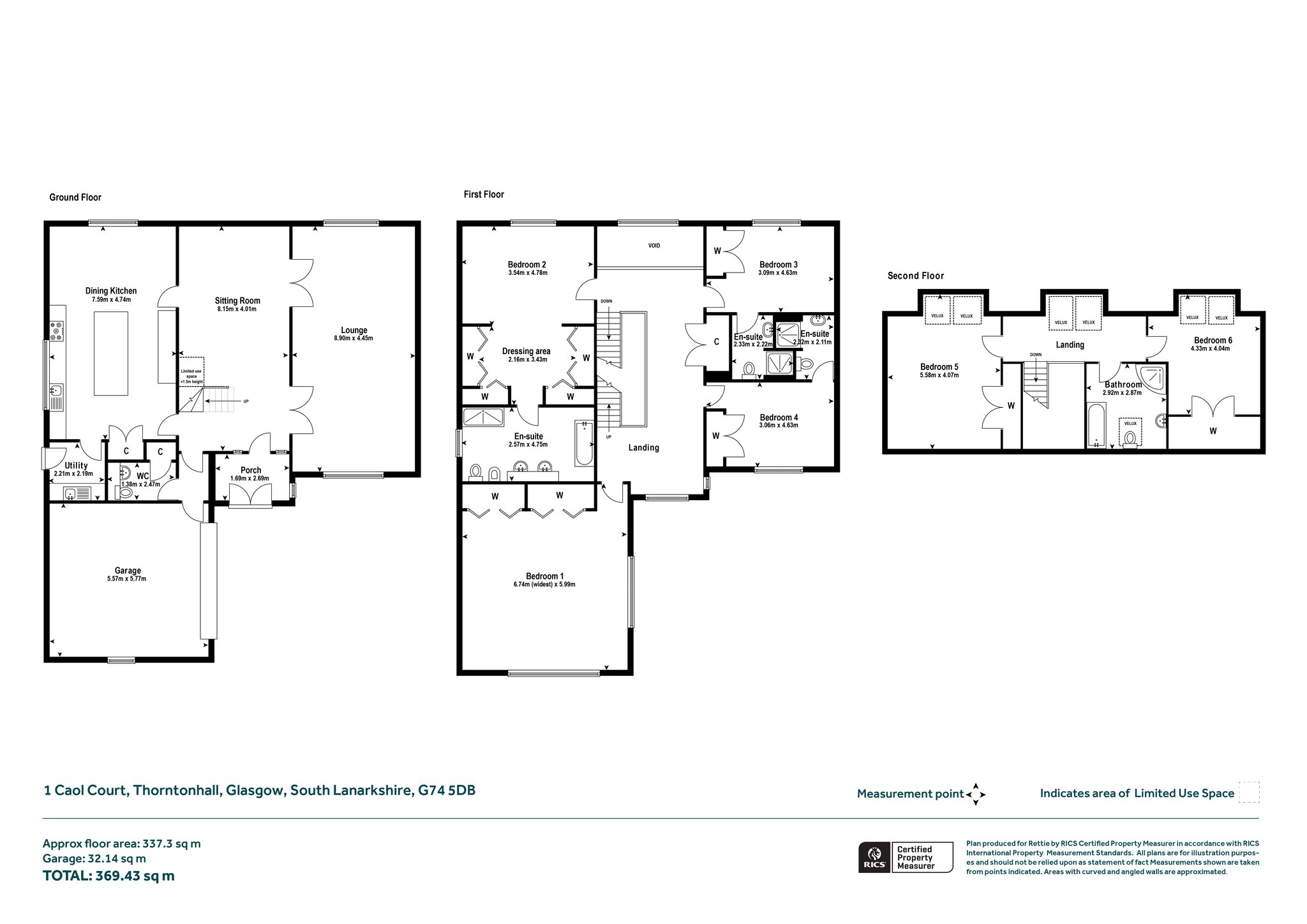
Occupying a generous plot in the prestigious and highly sought-after village of Thorntonhall, this substantial detached villa over three levels offers an exceptional level of family accommodation. Built by renowned developers CALA Homes in 2006, the property exudes quality and space throughout, with a thoughtfully designed layout ideal for modern family living.
Upon arrival, a welcoming entrance porch leads into a spacious vestibule and central hallway, setting the tone for the well-balanced accommodation that follows. The ground floor features a generous formal lounge with dual aspect windows and French doors that open onto the garden, allowing for an abundance of natural light. Adjacent to the lounge is a comfortable sitting room, providing a more informal living space or a potential family/media room.
To the rear of the property lies the heart of the home – an impressive open-plan dining kitchen. Fitted with high-quality units, integrated appliances, and a central island, the kitchen offers ample space for both everyday dining and entertaining, with direct access to the garden. A separate utility room provides additional storage and laundry space, and leads conveniently into the integral double garage. Completing the ground floor is a cloakroom with a WC, positioned just off the hallway.
The first floor offers four generously proportioned bedrooms. The principal bedroom suite is particularly impressive, featuring a large bedroom area, a dedicated dressing room lined with fitted wardrobes, and a luxurious en-suite bathroom with both bath and separate shower. Two further bedrooms also benefit from private en-suite shower rooms, while the fourth bedroom, also a comfortable double, has access to a well-positioned hallway cupboard and is ideal as a guest room or home office.
The attic level further enhances the versatility of the home, offering two additional double bedrooms, both with storage and full of character thanks to the dormer and Velux-style windows. A well-appointed family bathroom on this floor serves both rooms, and a generous landing provides further storage space and access to the eaves.
In total, the property offers approximately 369.43 sq m of floor space, including a 32.14 sq m double garage, providing ample room for a growing family or those simply seeking a spacious and flexible home in a premium location.
Thorntonhall is widely regarded as one of Glasgow’s most desirable residential suburbs, offering a peaceful semi-rural setting with excellent commuter links to the city centre and beyond. With its high-quality build, expansive layout, and sought-after location, 1 Caol Court represents a rare opportunity to acquire a truly exceptional family home.
Freehold
More Details
Situation: Private Garden
Council Tax Band: H
Tenure: Freehold
Your home may be repossessed if you do not keep up repayments on your mortgage. There may be a fee for mortgage advice. The actual amount you pay will depend upon your circumstances.
Similar Properties
Looking To Sell Or Let?
Rettie is one of the most trusted and well-respected names in property. Our unrivalled market knowledge helps people from around the world buy, sell, let and develop property in Scotland and the North East of England - from city apartments and rural cottages to large townhouses and prime country homes, farms and estates. We deal with some of the most prestigious properties on the market, but provide the same exceptional standards of service and value for money to all our clients.
