Quarry Cottage, 30C Polnoon Street, Eaglesham, East Renfrewshire, G76 0BG
Offers Over £415,000
Terraced House
3 Bedrooms
2 Bathrooms
2 Reception Rooms
Private Garden
Property Description
Located in the heart of Eaglesham, this wonderful family home offers flexible accommodation throughout. It is conveniently close to local amenities within the village and falls within an excellent school catchment area.
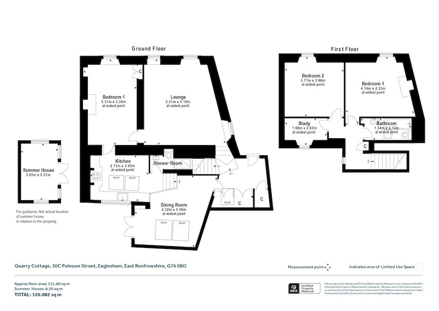
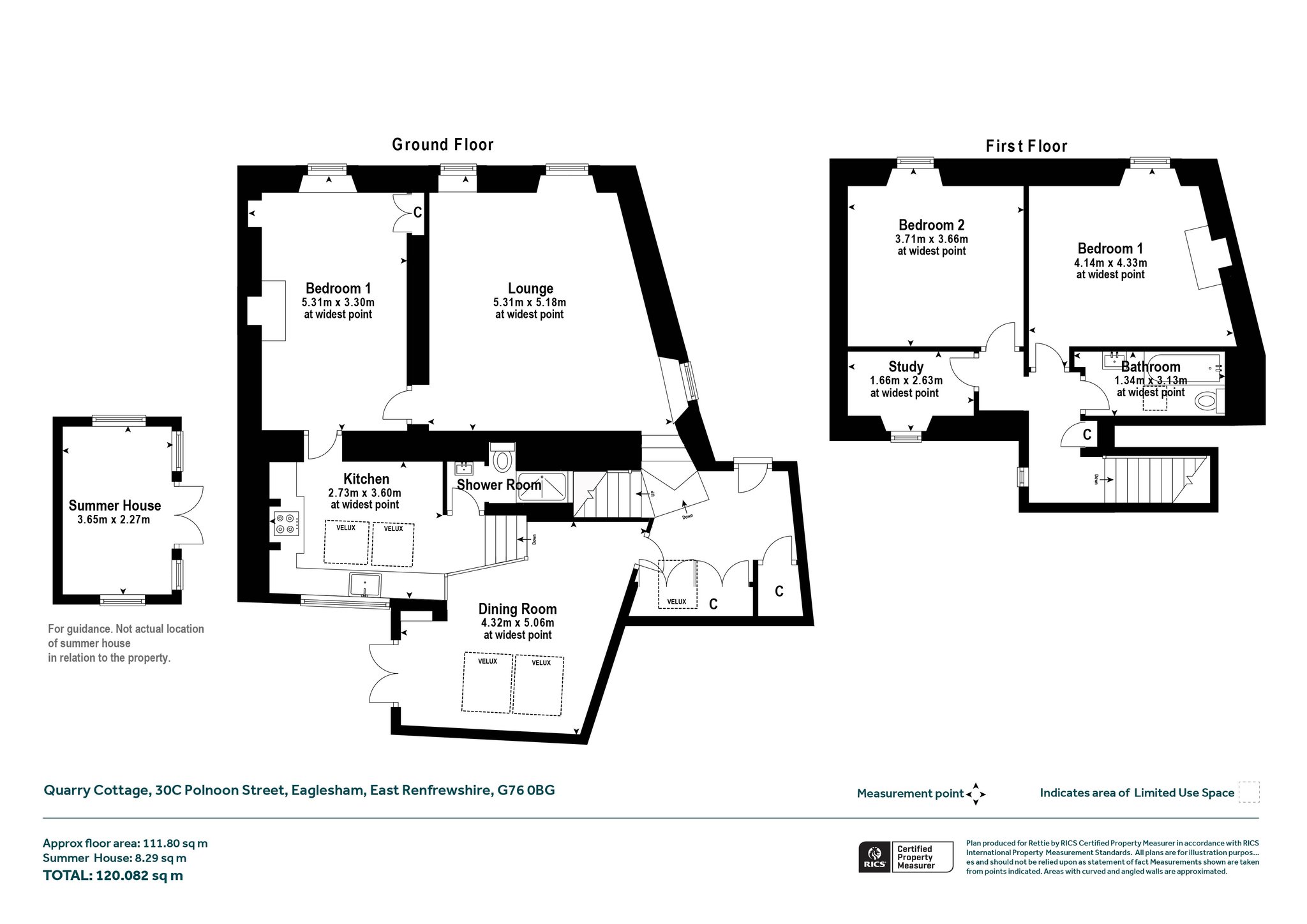
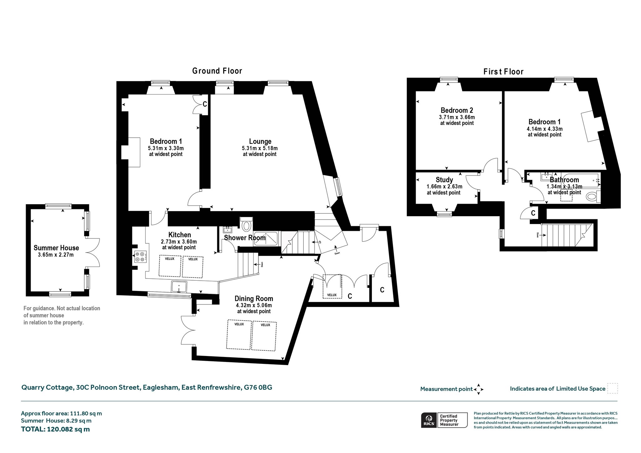
The accommodation is spread over two levels. On the ground floor, the entrance hallway provides ample storage and leads into a spacious lounge with beautiful views over The Orry. Adjacent to the lounge is a versatile family room, which can also serve as an additional public room and connects seamlessly to the kitchen. The well-appointed kitchen features a range of wall-mounted and floor-standing units, complemented by stylish worktop surfaces and integrated detailing. A bright and airy dining room, with French doors opening onto a private patio area, provides the perfect space for entertaining. A shower room completes the lower level.
On the first floor, the upper landing leads to two well proportioned double bedrooms, both offering open views to the front of the home. Additionally, there is a home office or study, ideal for remote work or additional storage. The family bathroom, featuring a shower over the bath, completes the internal layout.
Further benefits of this fantastic home include gas central heating and double glazing. A particular highlight is the private rear garden, accessed via a lane, offering ample space for outdoor entertaining, storage facilities, and a versatile garden room that can be used for leisure or additional storage. On-street parking is also available at the front of the property
Eaglesham is a picturesque conservation village, celebrated for its 18th-century planning and architecture, and was designated Scotland’s first outstanding conservation area in 1960. The village provides a selection of local shops, hotel, bars, restaurants, and a popular primary school. It is also within the catchment area for some of Scotland’s top-performing schools, including some of the country's most prestigious independent schools. The surrounding countryside offers tranquil country lanes, fishing, and several well-regarded golf courses, including the nearby Bonnyton Golf Club. There are regular bus services to the city center, and local train stations at Busby and Clarkston provide easy access to Glasgow. Both Glasgow and Prestwick Airports are within easy reach.
EPC: D
Council Tax: G
Freehold
More Details
Situation: Private Garden
Council Tax Band: G
Tenure: Contact Branch
Your home may be repossessed if you do not keep up repayments on your mortgage. There may be a fee for mortgage advice. The actual amount you pay will depend upon your circumstances.
Similar Properties
Looking To Sell Or Let?
Rettie is one of the most trusted and well-respected names in property. Our unrivalled market knowledge helps people from around the world buy, sell, let and develop property in Scotland and the North East of England - from city apartments and rural cottages to large townhouses and prime country homes, farms and estates. We deal with some of the most prestigious properties on the market, but provide the same exceptional standards of service and value for money to all our clients.
