5 Deramore Avenue, Giffnock, Glasgow, East Renfrewshire, G46 6SL
Property Description
A truly outstanding detached residence set within one of Whitecraigs’ most desirable addresses, directly opposite the prestigious Whitecraigs Golf Club.
This exceptional home has been meticulously maintained and thoughtfully upgraded, offering a generous and versatile layout perfectly suited to modern family living.
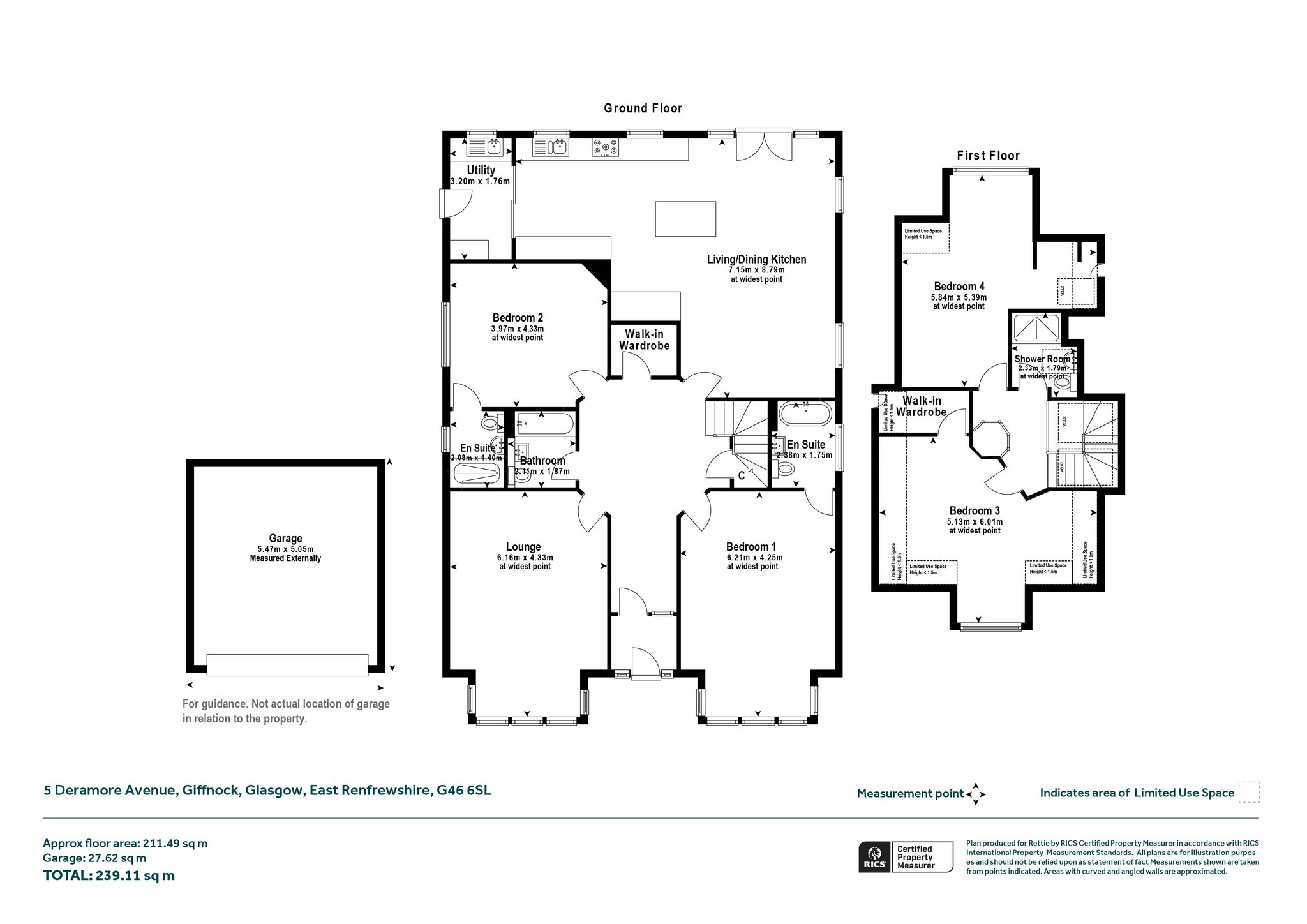
The ground floor opens with a welcoming entrance vestibule, leading into a striking octagonal reception hallway that serves as the central hub of the home, providing access to all main apartments and the staircase to the upper level. To the front, the formal lounge is a beautifully presented room with a bay window and an elegant fireplace—an ideal space for relaxing or entertaining.
One of the standout features of this home is the expansive open-plan kitchen, dining, and family area—a bright and spacious setting designed with both everyday living and entertaining in mind. The contemporary kitchen is equipped with an excellent range of wall and base units, complementary worktops, a central breakfasting island, and direct access to the rear garden and patio.
Also on the ground level is a separate utility room for added convenience. The principal bedroom is a luxurious suite, complete with bay window, free standing wardrobe, and a stylish en-suite bathroom. A second well-proportioned double bedroom also benefits from its own en-suite shower room, while a beautifully appointed family bathroom serves the remainder of the floor. A large walk-in storage room completes the lower level.
Upstairs, a bright landing flooded with natural light via a Velux window and glass balustrade leads to two further double bedrooms, and has access to WC, sink and shower - ideal for guests or older children.
Additional benefits include gas central heating, double glazing, and generous off-street parking to both the front and side of the property.
The private garden grounds are a particular highlight, featuring a mix of level lawn, paved patio areas, and mature, well-stocked borders that provide year-round colour and a peaceful outdoor space.
Whitecraigs remains one of East Renfrewshire’s most sought-after suburbs, offering quick access to Glasgow City Centre via the M77, M8, and local rail links. Nearby areas such as Newton Mearns and Giffnock offer a full range of amenities including supermarkets, independent shops, cafés, restaurants, and healthcare facilities.
Leisure options abound, with Whitecraigs and Cathcart Golf Clubs, Whitecraigs Tennis Club, David Lloyd and Parklands Country Clubs, and the beautiful Rouken Glen Park all within easy reach. Families are particularly drawn to the area for its excellent schooling, with the property falling within the catchment for highly regarded East Renfrewshire primary and secondary schools, along with convenient access to private schools throughout Glasgow.
We are obliged to record that within the last two years a minor dispute arose with the neighbours who own 4 Deramore Avenue (which abuts part of the no 5 property) when the dividing fence had to be partially replaced. There was a disagreement about the exact placement of the fence in relation to the boundary, and this was dealt with informally between the respective parties/owners in the course of 2024. The owners of 4 Deramore have indicated that they reserve their position on any final formal resolution of the placement of the fence in future. (The neighbour has seen and approved this note)
Freehold
Council Tax: G
EPC: D
More Details
Situation: Private Garden
Council Tax Band: G
Tenure: Freehold
Your home may be repossessed if you do not keep up repayments on your mortgage. There may be a fee for mortgage advice. The actual amount you pay will depend upon your circumstances.
Similar Properties
Looking To Sell Or Let?
Rettie is one of the most trusted and well-respected names in property. Our unrivalled market knowledge helps people from around the world buy, sell, let and develop property in Scotland and the North East of England - from city apartments and rural cottages to large townhouses and prime country homes, farms and estates. We deal with some of the most prestigious properties on the market, but provide the same exceptional standards of service and value for money to all our clients.
