25 Orchy Gardens, Clarkston, Glasgow, East Renfrewshire, G76 8NB

Clarkston, Glasgow, East Renfrewshire, G76 8NB
Under Offer
Pin View on map

Offers Over £210,000

House

Terraced House

Bed

2 Bedrooms

Bathroom

1 Bathroom

Reception

2 Reception Rooms

Tree

Private Garden

Parking

Off Street Parking

Telephone

Property Description

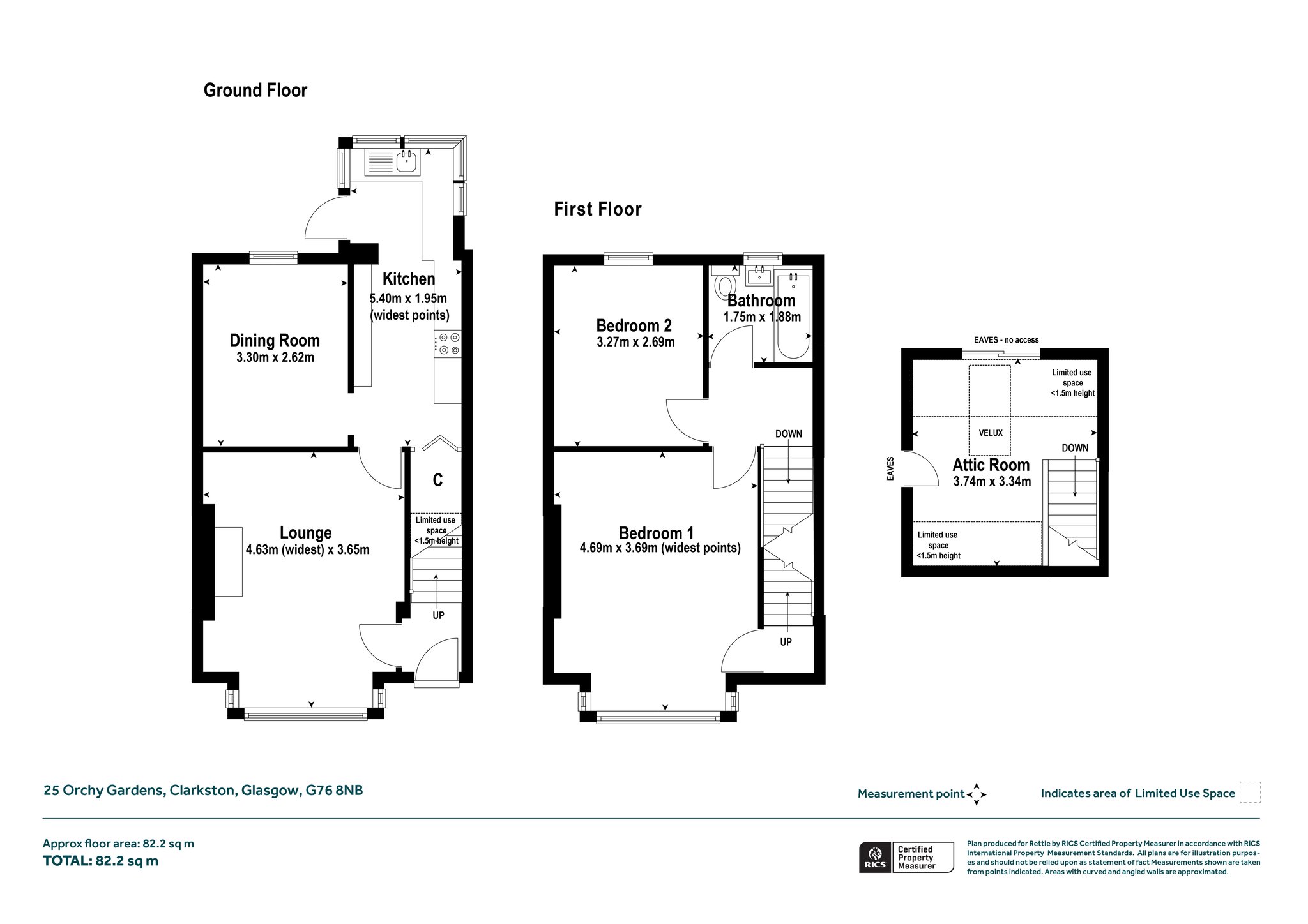
Located in the heart of the ever-popular Clarkston area, this well-presented two-bedroom mid-terraced home offers an excellent opportunity for first-time buyers, young families, or downsizers. Situated within the highly regarded East Renfrewshire school catchment, the property enjoys a quiet residential setting while remaining close to all local amenities, public transport links, and highly rated schools.

The ground floor comprises a bright lounge that flows through to a separate dining room, creating an ideal space for both everyday living and entertaining. To the rear, the kitchen is well-equipped with ample storage and worktop space, and provides direct access to the private rear garden.

Upstairs, there are two double bedrooms, bedroom one benefitting from a bay window formation. A contemporary family bathroom is also located on the first floor and is fitted with a  three-piece suite.

The property further benefits from gas central heating, double glazing and a floor attic room. Externally, the home benefits from off-street parking to the front and a well-maintained garden to the rear.

Stamperland and Clarkston are acknowledged for its standard of local amenities and provides a selection of local shops, supermarkets, restaurants, regular bus and rail services to Glasgow City Centre, banks, library and health care facilities and is conveniently located for access to Clarkston Toll shops and amenities, The Avenue Shopping Centre and Greenlaw Village Retail Park in Newton Mearns. In addition, this property sits within the catchment area for the highly reputable Primary and Secondary schools, including Williamwood and St Ninian's High Schools.

Freehold
EPC: C
Council Tax: D

More Details

Situation: Private Garden
Council Tax Band: D
Tenure: Freehold

Contact Us

Sophie Boyd

Sophie Boyd

Sales & Compliance Administrator
Roland Brownlee

Roland Brownlee

Mortgage & Protection Advisor
Mortgage Calculator
Monthly payments
Please set an interest rate.

Your home may be repossessed if you do not keep up repayments on your mortgage. There may be a fee for mortgage advice. The actual amount you pay will depend upon your circumstances.

Tax Calculator
LBTT calculator for properties purchased in Scotland. Stamp Duty calculator for properties purchased in England.
Land & buildings transaction tax (LBTT)
= £0
New build house with stone and timber cladding

Looking To Sell Or Let?

Rettie is one of the most trusted and well-respected names in property. Our unrivalled market knowledge helps people from around the world buy, sell, let and develop property in Scotland and the North East of England - from city apartments and rural cottages to large townhouses and prime country homes, farms and estates. We deal with some of the most prestigious properties on the market, but provide the same exceptional standards of service and value for money to all our clients.