Lainshaw House, 5 Montgomerie Drive, Stewarton, Kilmarnock, East Ayrshire, KA3 3AP

Stewarton, Kilmarnock, East Ayrshire, KA3 3AP
Pin View on map

Offers Over £299,000

House

Ground Floor Apartment

Bed

2 Bedrooms

Bathroom

3 Bathrooms

Reception

2 Reception Rooms

Tree

Private Garden

Parking

Off Street Parking

Telephone

Property Description

A hugely impressive garden apartment situated within the historic Lainshaw House, the converted mansion house within Lainshaw Estate, with this particular conversion offering masses of tastefully presented and on-the level accommodation.

This handsome, converted mansion house comprises only eight apartments with especially beautiful and well-maintained formal garden grounds which all owners within the estate can use and enjoy

This is one of only two of the apartments with direct access to a private garden.

The property is beautifully presented throughout with an extremely luxurious feel and genuinely of a size and style seldom available within the open market.

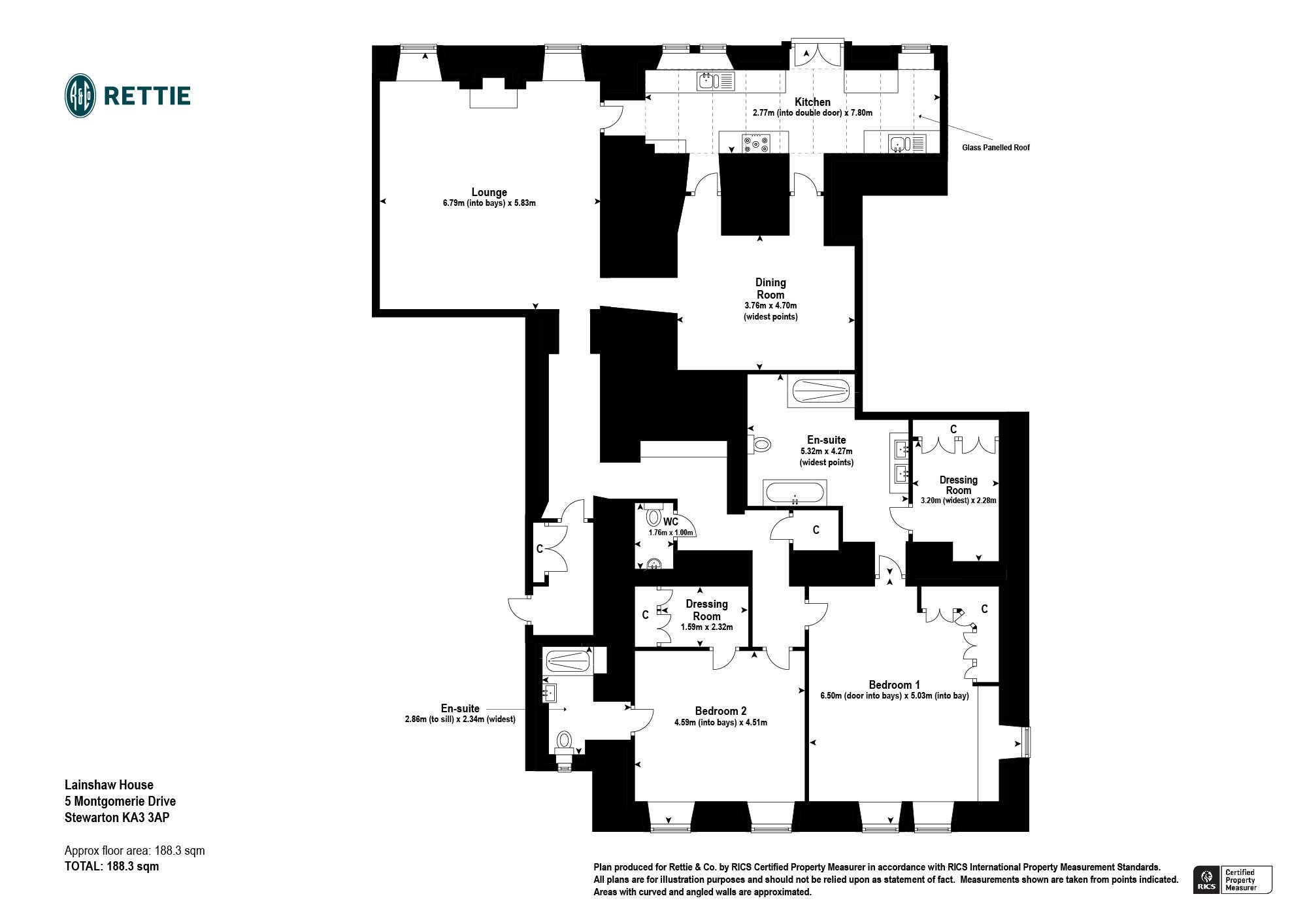
In terms of accommodation, the property is entered through a resident’s secure door entry system into a grand communal reception hallway with staircase and lift. (Note should be taken that No. 5 is not required to contribute to the maintenance of the lift).

There is a private lobby area with electrical cupboard, and on entry through the front door you continue into a welcoming reception hallway.

There is a beautiful lounge, square in shape, with a large gas fire as the focal point with an ornate oak surround. The lounge provides access to both the kitchen and formal dining room, which in turn also gives access to the kitchen. The stylish fully fitted kitchen features a pleasing selection of wall and floor mounted units with integrated appliances. The kitchen has French doors that provide views of and access into the private garden and patio.

The remaining accommodation includes an inner hall and guest cloakroom/WC.

There are two generously sized double bedrooms, both of which have en suite facilities and dressing rooms, the principal is especially impressive with vast en-suite bathroom.

The high specification finish includes double glazed sash and case windows and gas central heating with beautiful decoration and quality floor coverings throughout.

Lainshaw House or, as it was formerly called, Langschaw, has its origins in a former Scottish Keep dating back to the 13th Century. It has been extended several times and occupies a prominent position overlooking Annick Water southwest of Stewarton. Lainshaw and associated lands were originally the gift of King James II of Scotland and passed through many notable owners. William Cunninghame (a Glasgow tobacco baron) acquired the property through inheritance in 1799. He re-modelled the property extensively and took up residence in 1804. On his death in 1849 it remained within the family, until being sold to Ayr County Council in 1954 for a retirement home. The house was vacated in 1993 and lay empty until redeveloped into 8 apartments in 2007/8. It remains surrounded by ancient woodland and paths used by many locals.

Lainshaw House has remained continually popular to a great variety of buyers types. Internal viewing is essential to appreciate fully the beauty of this conversion and also Lainshaw Estate and the surrounding area.

EPC C
Council Tax E
Freehold

More Details

Situation: Private Garden
Council Tax Band: F
Tenure: Contact Branch

Request More Details

Alison Anderson

Alison Anderson

Associate Director
Roland Brownlee

Roland Brownlee

Mortgage & Protection Advisor
Mortgage Calculator
Monthly payments
Please set an interest rate.

Your home may be repossessed if you do not keep up repayments on your mortgage. There may be a fee for mortgage advice. The actual amount you pay will depend upon your circumstances.

Tax Calculator
LBTT calculator for properties purchased in Scotland. Stamp Duty calculator for properties purchased in England.
Land & buildings transaction tax (LBTT)
= £0
New build house with stone and timber cladding

Looking To Sell Or Let?

Rettie is one of the most trusted and well-respected names in property. Our unrivalled market knowledge helps people from around the world buy, sell, let and develop property in Scotland and the North East of England - from city apartments and rural cottages to large townhouses and prime country homes, farms and estates. We deal with some of the most prestigious properties on the market, but provide the same exceptional standards of service and value for money to all our clients.