45 Tulip Drive, Newton Mearns, Glasgow, East Renfrewshire, G77 6FT
Property Description
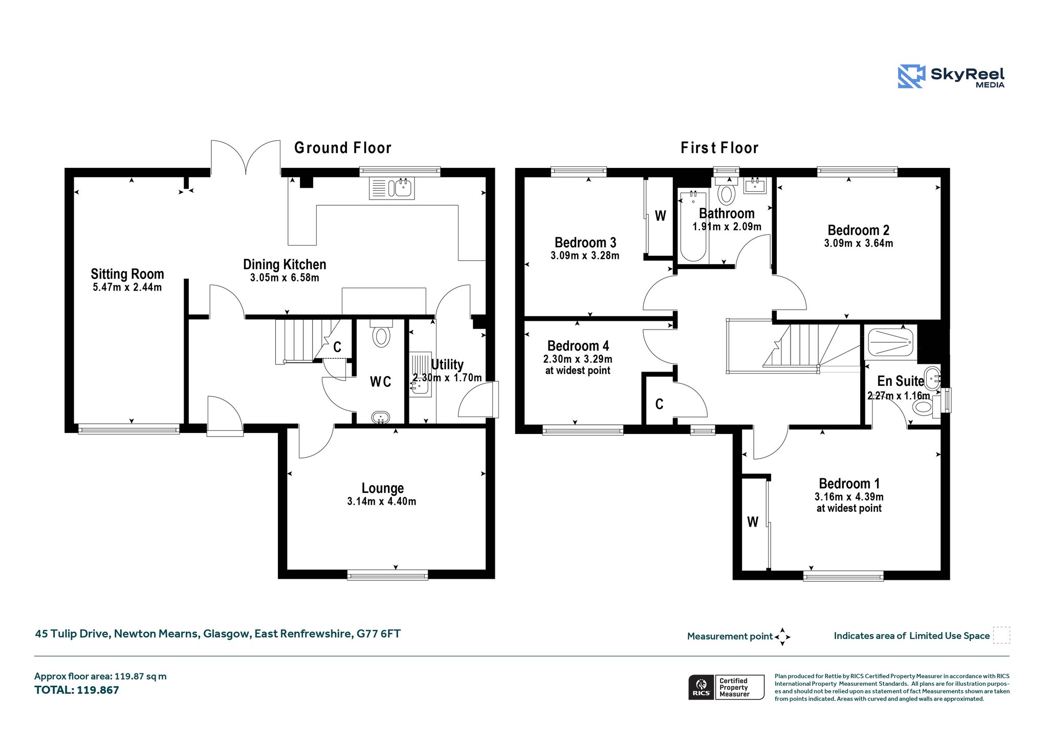
This beautifully presented four-bedroom family home is located in a popular and highly sought-after area. Carefully maintained by the current owners, it offers flexible accommodation across two levels, ideal for modern family living.
The ground floor features a welcoming entrance hall with a staircase to the first floor and a guest WC. A bright sitting room overlooks the front of the property, while the modern dining kitchen is fitted with a range of wall-mounted and floor-standing units, complemented by work surfaces and French doors opening onto the rear patio and garden. The family room, formerly the integral garage, provides additional living space, and a separate utility room offers convenient side access.
On the first floor, a light-filled gallery landing leads to well-proportioned accommodation, including a storage cupboard. The principal bedroom benefits from fitted wardrobes and a stylish en-suite shower room, while the third bedroom also features fitted wardrobes. The second bedroom offers flexibility of use but does not include fitted storage. A fourth bedroom and a contemporary family bathroom complete the layout.
Additional highlights include gas central heating, double glazing, and well-maintained, colourful gardens. The enclosed rear garden with a terrace is perfect for entertaining, and a driveway provides ample off-street parking.
Newton Mearns is located approximately 9 miles from Glasgow City Centre. Commuter routes are served by the M77, M8 and Glasgow Southern Orbital motorways. Patterton Train Station is a short distance away. Newton Mearns is recognised for its standard of local amenities, providing an array of healthcare centres, banks and libraries and a broad range of supermarkets, boutique shops and restaurants, including The Avenue Shopping Centre and Greenlaw Retail Park which includes Waitrose, Tesco Metro, Aldi and a range of bars and restaurants and take aways. Daisy Place will allow access to some of Scotland's highest attaining primary and secondary schools, including Eastwood High and St. Ninian's High Schools.
Freehold
EPC B
Council Tax F
More Details
Situation: Private Garden
Council Tax Band: F
Tenure: Freehold
Your home may be repossessed if you do not keep up repayments on your mortgage. There may be a fee for mortgage advice. The actual amount you pay will depend upon your circumstances.
Similar Properties
Looking To Sell Or Let?
Rettie is one of the most trusted and well-respected names in property. Our unrivalled market knowledge helps people from around the world buy, sell, let and develop property in Scotland and the North East of England - from city apartments and rural cottages to large townhouses and prime country homes, farms and estates. We deal with some of the most prestigious properties on the market, but provide the same exceptional standards of service and value for money to all our clients.
