77 Lady Nancy Crescent, Blantyre, Glasgow, South Lanarkshire, G72 9BD
Property Description
Fixed Price £360,000 Home Report £380,000
Lady Nancy Crescent, a beautifully presented four-bedroom detached home located in the highly desirable area of High Blantyre, Glasgow. Nestled in a peaceful, family-friendly crescent, this modern property offers a convenient location ideal for families .
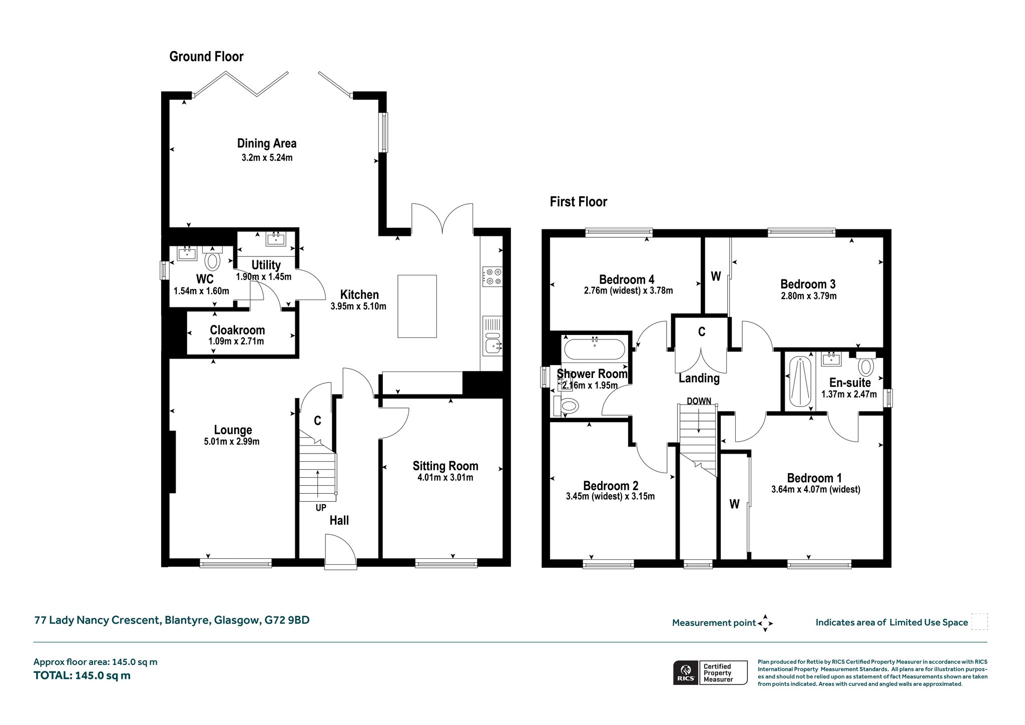
On the ground floor, the property opens into a bright and welcoming hallway that leads to a lounge, perfect for relaxing or entertaining. A second reception room offers versatile use as a sitting room or playroom To the rear, the heart of the home is a stunning open-plan kitchen and dining area with French doors that open onto the garden, creating a seamless transition between indoor and outdoor living. The ground floor also benefits from a practical utility room, cloakroom, and a separate WC.
Upstairs, the home features four well-sized bedrooms, including a principal bedroom with built-in storage and a private en-suite. The remaining bedrooms are served by a contemporary family bathroom. Cleverly designed storage spaces, including built-in wardrobes and landing cupboards.
Further features include gas central heating and double glazing. Gardens to the front and rear, with the rear featuring a decked terrace and lawn area.
High Blantyre is a popular residential area known for its strong sense of community, great schooling options, and plentiful green spaces. The area is well-served by a range of shops, supermarkets, cafés, and other everyday conveniences. For commuters, High Blantyre offers superb transport connections. Easy access to the M74 and A725 ensures smooth travel to Glasgow city centre, Hamilton, and beyond. Blantyre train station provides regular rail services to Glasgow and surrounding towns, while several local bus routes enhance connectivity throughout the region.
Freehold
EPC: B
Council Tax: G
More Details
Situation: Private Garden
Council Tax Band: G
Tenure: Contact Branch
Your home may be repossessed if you do not keep up repayments on your mortgage. There may be a fee for mortgage advice. The actual amount you pay will depend upon your circumstances.
Similar Properties
Looking To Sell Or Let?
Rettie is one of the most trusted and well-respected names in property. Our unrivalled market knowledge helps people from around the world buy, sell, let and develop property in Scotland and the North East of England - from city apartments and rural cottages to large townhouses and prime country homes, farms and estates. We deal with some of the most prestigious properties on the market, but provide the same exceptional standards of service and value for money to all our clients.
