52 Meadow Rise, Newton Mearns, Glasgow, East Renfrewshire, G77 6SE

Newton Mearns, Glasgow, East Renfrewshire, G77 6SE
Under Offer
Pin View on map

Offers Over £350,000

House

Detached House

Bed

4 Bedrooms

Bathroom

2 Bathrooms

Reception

2 Reception Rooms

Tree

Private Garden

Telephone

Property Description

Tucked away in a tranquil cul-de-sac, this beautifully presented detached four bedroom home offers an outstanding opportunity for families seeking space, style, and superb connectivity. Situated within the highly sought-after East Renfrewshire school catchment area, the property enjoys close proximity to excellent local amenities and transport links.

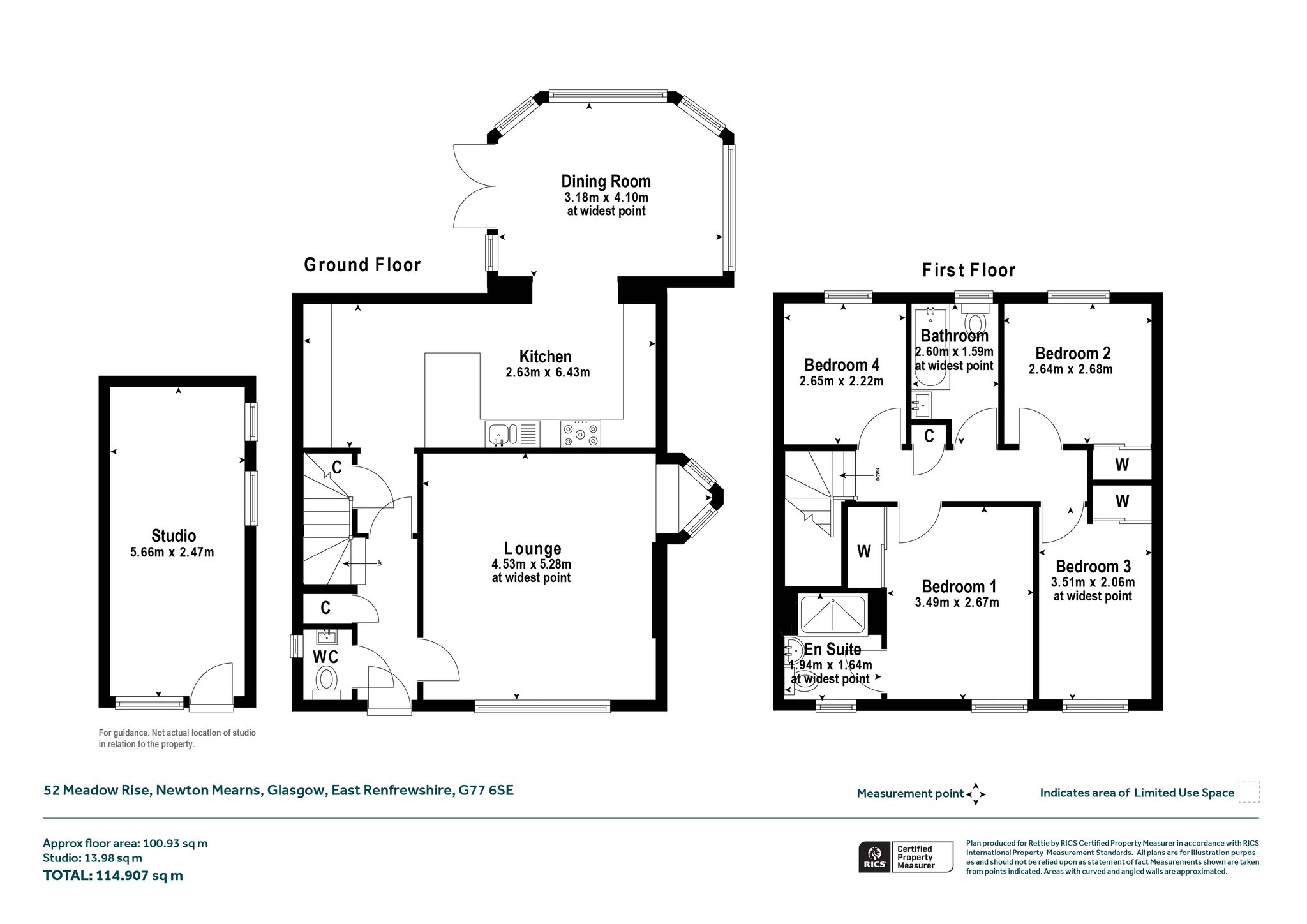
Set Across Two Floors, The Home Features A Spacious And Versatile Layout And Comprises

The ground floor leads to a generous lounge with an attractive bay window, a contemporary dining kitchen complete with a range of wall-mounted and floor-standing units, complementary quartz worktop surfaces and splashback, and a breakfasting bar. This space flows seamlessly into an elegant dining/garden room with views over the rear garden. A convenient downstairs WC completes the lower level.

Upstairs, you'll find four bedrooms, including a principal bedroom with a modern en suite shower room. A stylish family bathroom and ample integrated storage—including built-in wardrobes and cupboards—enhance the functionality of the home.

Additional features include gas central heating, double glazing, and a private driveway, with further resident parking available throughout the development. The rear garden provides a delightful outdoor retreat, featuring a paved terrace and a well-maintained lawn—ideal for both relaxation and entertaining. A separate garden studio offers a versatile space, perfect for use as a home office or gym.

Planning permission has been granted for a further bedroom and bathroom with Velux windows, presenting a fantastic opportunity to extend and add value, or to adapt the property to suit evolving family needs. Planning number: 2024/0092/BW

Freehold 
epc:
council Tax

More Details

Situation: Private Garden
Council Tax Band: F
Tenure: Contact Branch

Contact Us

Alison Anderson

Alison Anderson

Associate Director
Roland Brownlee

Roland Brownlee

Mortgage & Protection Advisor
Mortgage Calculator
Monthly payments
Please set an interest rate.

Your home may be repossessed if you do not keep up repayments on your mortgage. There may be a fee for mortgage advice. The actual amount you pay will depend upon your circumstances.

Tax Calculator
LBTT calculator for properties purchased in Scotland. Stamp Duty calculator for properties purchased in England.
Land & buildings transaction tax (LBTT)
= £0
New build house with stone and timber cladding

Looking To Sell Or Let?

Rettie is one of the most trusted and well-respected names in property. Our unrivalled market knowledge helps people from around the world buy, sell, let and develop property in Scotland and the North East of England - from city apartments and rural cottages to large townhouses and prime country homes, farms and estates. We deal with some of the most prestigious properties on the market, but provide the same exceptional standards of service and value for money to all our clients.