70 Broomfield Avenue, Newton Mearns, Glasgow, East Renfrewshire, G77 5JP

Newton Mearns, Glasgow, East Renfrewshire, G77 5JP
Under Offer
Pin View on map

Offers Over £270,000

House

Detached House

Bed

2 Bedrooms

Bathroom

1 Bathroom

Reception

1 Reception Room

Tree

Private Garden

Garage

Garage

Telephone

Property Description

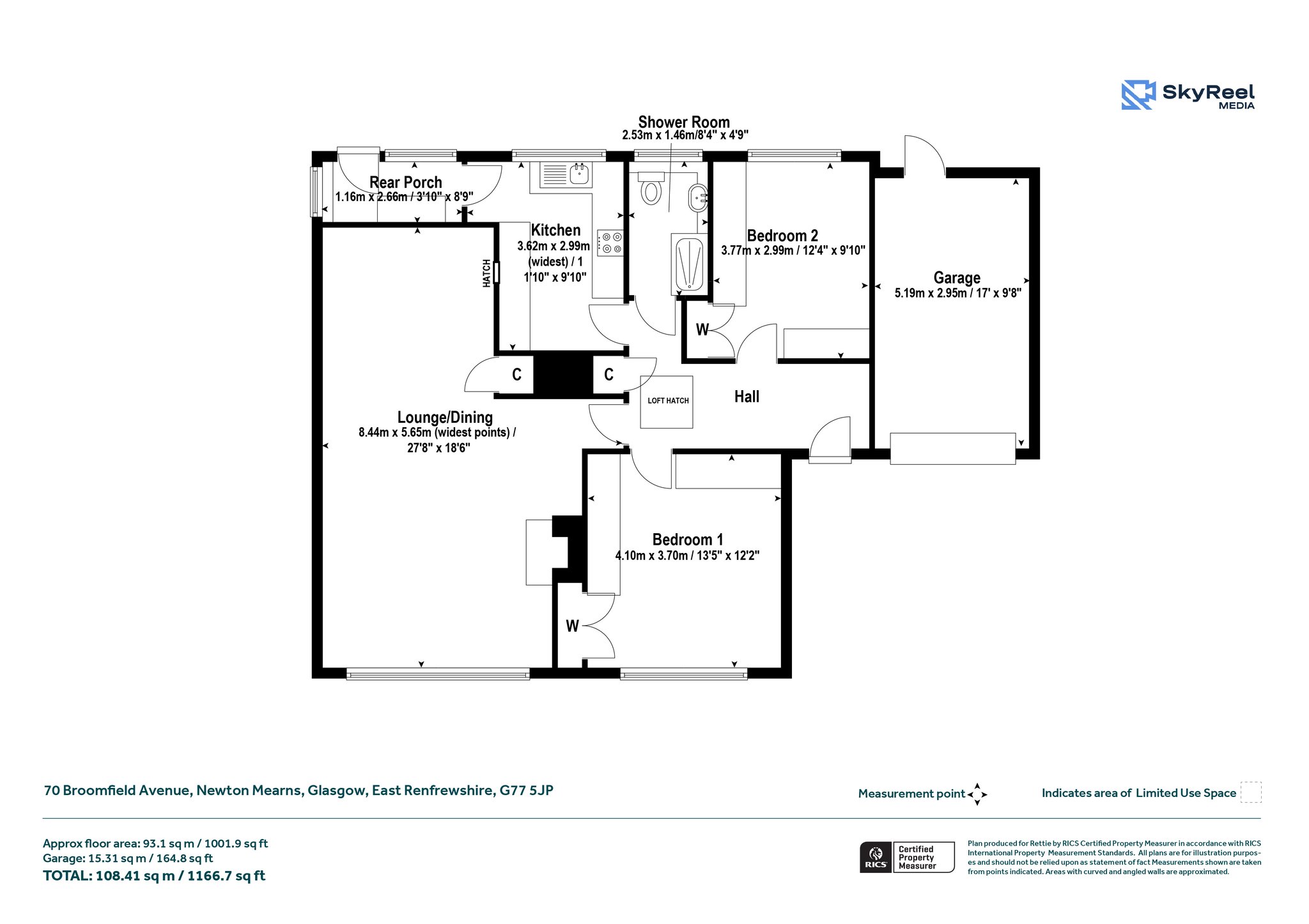
Located in the highly sought-after Newton Mearns area, this rarely available two-bedroom, all-on-the-level property on Broomfield Avenue presents an exciting opportunity for buyers looking to create their dream home. The property is in need of full refurbishment and modernisation throughout, making it the perfect project for developers, investors, or ambitious homeowners.

The accommodation is arranged on one level and currently comprises two bedrooms, a lounge/dining room, kitchen, and bathroom. Externally, the property benefits from generous garden grounds offering ample scope to extend, subject to the necessary consents, further enhancing the development potential.

With its prime location close to excellent local amenities, schools, and transport links, this property represents a rare chance to add significant value in Newton Mearns. This is a true blank canvas, ready for someone with vision to transform it into a fantastic home.

Freehold
EPC D
Council Tax F

More Details

Situation: Private Garden
Council Tax Band: F
Tenure: Contact Branch

Contact Us

Erica McFarlane

Erica McFarlane

Senior Sales Negotiator
Roland Brownlee

Roland Brownlee

Mortgage & Protection Advisor
Mortgage Calculator
Monthly payments
Please set an interest rate.

Your home may be repossessed if you do not keep up repayments on your mortgage. There may be a fee for mortgage advice. The actual amount you pay will depend upon your circumstances.

Tax Calculator
LBTT calculator for properties purchased in Scotland. Stamp Duty calculator for properties purchased in England.
Land & buildings transaction tax (LBTT)
= £0
New build house with stone and timber cladding

Looking To Sell Or Let?

Rettie is one of the most trusted and well-respected names in property. Our unrivalled market knowledge helps people from around the world buy, sell, let and develop property in Scotland and the North East of England - from city apartments and rural cottages to large townhouses and prime country homes, farms and estates. We deal with some of the most prestigious properties on the market, but provide the same exceptional standards of service and value for money to all our clients.