Property Description
An extraordinary detached home situated in this quiet yet convenient pocket of Newlands.
This stunning property has undergone a complete remodelling, extension and refurbishment, with the high level specification making it a must for viewing in order to be appreciated.
The house is approached via spacious driveway leading to the steps and front entrances.
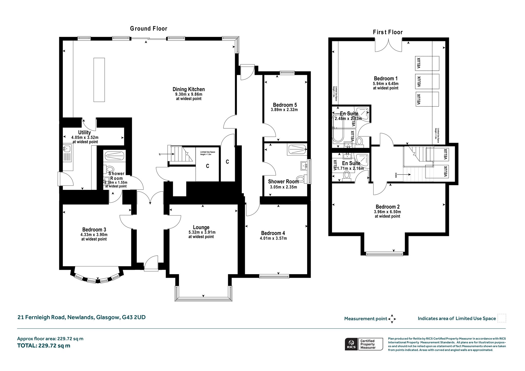
The accommodation of the house itself comprises welcoming reception hallway with square bay windowed lounge, bay windowed bedroom three, tiled shower room with white two piece suite, vanity unit and separate walk-in shower. Double door access through to a spectacular kitchen/dining/living space with kitchen with a range of high quality integrated appliances, stone worktop and island, living/dining space with dual aspect and sliding door access out to the rear garden and utility room with side door access out to the garden.
Accessed from the living area are two more double sized bedrooms, both of which can be utilised very flexibly and a beautiful tiled shower room, white two piece suite, vanity unit and separate walk-in shower.
Access to upstairs is gained via bespoke staircase with large Velux windows allowing light to stream in. There is an expansive master bedroom with French balcony enjoying a private aspect out over the rear garden and fabulous tiled en-suite off with standalone bath, two piece suite, vanity unit, heated towel rail and separate shower enclosure and second double sized bedroom with tiled en-suite shower room off with two piece suite, vanity unit, heated towel rail and shower enclosure.
The property also benefits from double glazing, gas central heating, high quality floor coverings and a modern, contemporary decor throughout. Externally there is the aforementioned driveway to the front and a fantastic landscaped rear garden with separate decked and lawned areas.
Newlands is a beautiful suburb situated in the south of Glasgow. It is one of the most popular suburban areas to be found anywhere in Scotland. This is down to its quiet ambience, popular park, and range of nearby amenities in Giffnock, Shawlands and Pollokshields. There are also excellent transport links nearby via bus road and rail to the centre of Glasgow and elsewhere. Langside, Muirend and Pollokshaws East Train Stations which provides regular services to and from Glasgow Central is a short walk away.
More Details
Situation: Private Garden
Council Tax Band: G
Tenure: Freehold
Your home may be repossessed if you do not keep up repayments on your mortgage. There may be a fee for mortgage advice. The actual amount you pay will depend upon your circumstances.
Similar Properties
Looking To Sell Or Let?
Rettie is one of the most trusted and well-respected names in property. Our unrivalled market knowledge helps people from around the world buy, sell, let and develop property in Scotland and the North East of England - from city apartments and rural cottages to large townhouses and prime country homes, farms and estates. We deal with some of the most prestigious properties on the market, but provide the same exceptional standards of service and value for money to all our clients.
