30 Gordon Road, Netherlee, Glasgow, G44 3TW

Netherlee, Glasgow, G44 3TW
Under Offer
Pin View on map

Offers Over £465,000

House

Detached House

Bed

4 Bedrooms

Bathroom

2 Bathrooms

Reception

2 Reception Rooms

Tree

Private Garden

Parking

Off Street Parking

Telephone

Property Description

CLOSING DATE FRIDAY 29TH 12PM

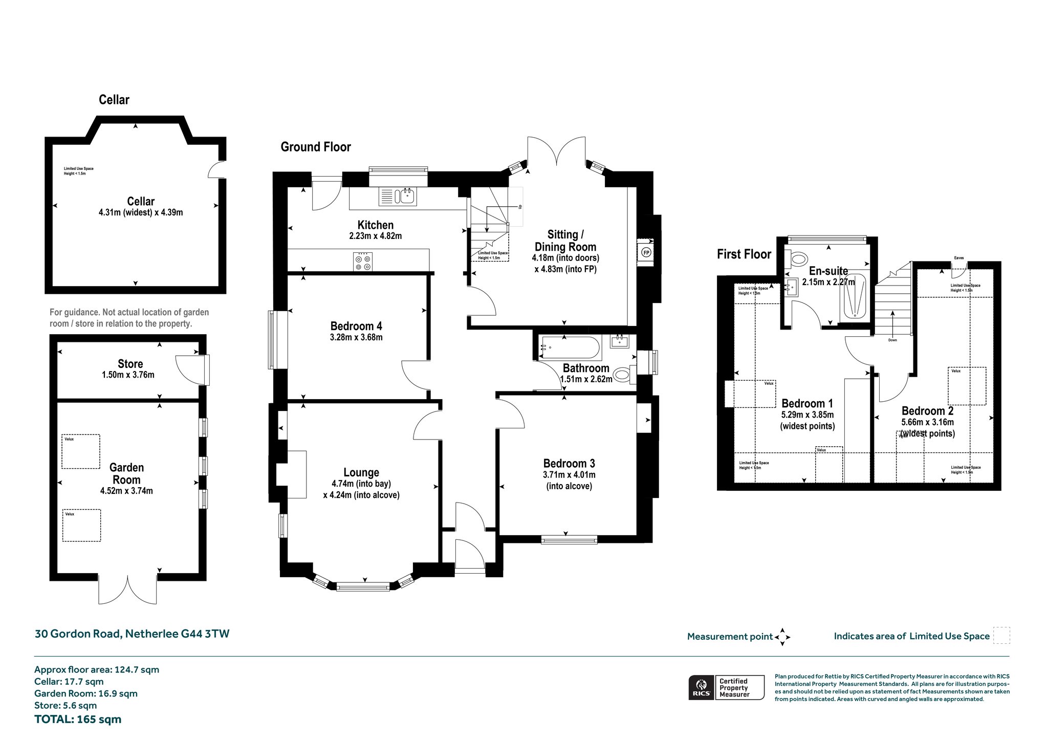
This beautifully presented and thoughtfully upgraded detached family home offers flexible living space ideal for modern family life. Situated in the highly sought-after area of Netherlee, within East Renfrewshire, this home is made even more desirable by its prime location and exceptional surroundings.

Set over two levels and nestled within landscaped garden grounds, the property also benefits from a converted garage, now serving as a versatile studio space.

Upon entering, you are welcomed by a charming vestibule that leads into a spacious and inviting entrance hallway, giving access to all principal rooms. At the front of the property, a bright and elegant bay-windowed lounge offers a warm and welcoming space to relax. To the rear, a stylish family/dining room features bespoke shelving, a characterful fireplace, and French doors that open onto the rear garden. A staircase leads to the upper level from this room, creating a seamless flow through the home. The kitchen is a contemporary white design with a selection of wall-mounted and floor-standing units, ample worktop space, room for a breakfast table, and direct access to the rear garden. Furthermore, on the ground floor, there are two generously sized double bedrooms and a modern family shower room fitted with a sleek three-piece suite.

The first floor comprises two further double bedrooms, one of which benefits from a stylish en-suite shower room complete with a contemporary three-piece suite. 

Additional features of the home include gas central heating and double glazing. A particular highlight of this property is the attractive gardens to both the front and rear. These outdoor spaces feature well-maintained lawn areas, mature planted borders, and a patio area perfect for relaxing or entertaining.

The home also boasts a large driveway providing ample off-street parking. This leads to an impressive garden room/studio, which was previously a double garage and now offers a versatile space suitable for a variety of uses. To the rear of this structure, there is also a convenient store, offering additional storage space. There is also a cellar which houses the boiler and provides expansive storage space. 

More Details

Council Tax: F
EPC: D
Tenure: Freehold

Contact Us

Erica McFarlane

Erica McFarlane

Senior Sales Negotiator
Roland Brownlee

Roland Brownlee

Mortgage & Protection Advisor
Mortgage Calculator
Monthly payments
Please set an interest rate.

Your home may be repossessed if you do not keep up repayments on your mortgage. There may be a fee for mortgage advice. The actual amount you pay will depend upon your circumstances.

Tax Calculator
LBTT calculator for properties purchased in Scotland. Stamp Duty calculator for properties purchased in England.
Land & buildings transaction tax (LBTT)
= £0
New build house with stone and timber cladding

Looking To Sell Or Let?

Rettie is one of the most trusted and well-respected names in property. Our unrivalled market knowledge helps people from around the world buy, sell, let and develop property in Scotland and the North East of England - from city apartments and rural cottages to large townhouses and prime country homes, farms and estates. We deal with some of the most prestigious properties on the market, but provide the same exceptional standards of service and value for money to all our clients.