137 Littleton Park, Barrhead, Glasgow, East Renfrewshire, G78 2FA

Barrhead, Glasgow, East Renfrewshire, G78 2FA
Sold
Pin View on map

Offers Over £335,000

House

Detached House

Bed

4 Bedrooms

Bathroom

3 Bathrooms

Reception

2 Reception Rooms

Tree

Private Garden

Telephone

Property Description

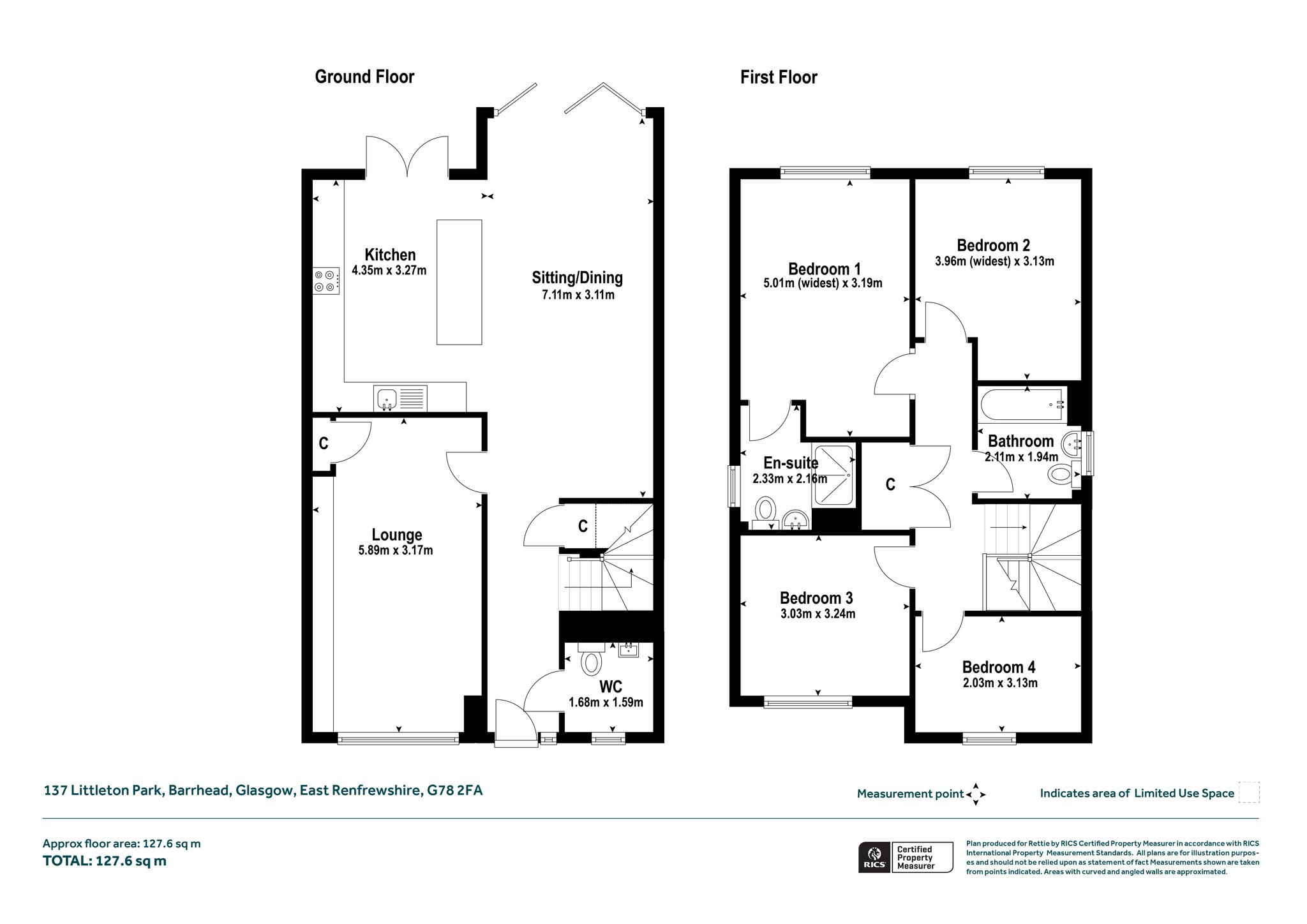
A well-appointed four bedroom detached home, situated within the established and highly regarded Weavers Lea development in Barrhead by Avant Homes. The Narsbrook house style provides modern family home to a high standard of finish throughout, including a converted garage, landscaped garden, and remaining NHBC warranty.

The property opens into a spacious entrance hallway with a cloakroom/WC and access to the ground floor living accommodation. To the front, the former garage has been cleverly converted to create an additional lounge or flexible reception room. To the rear, the property features an open-plan kitchen, dining, and family area, designed for modern living and entertaining. The kitchen is fitted with a range of wall mounted and floor standing units, a central island with breakfast bar seating, and extensive worktop space. An under-stair cupboard provides additional storage. The open-plan space benefits from full-width bi-fold doors leading directly to the rear garden, maximising natural light and creating an effortless connection between indoor and outdoor areas.

On the upper floor, a landing leads to four double bedrooms. The principal bedroom includes a contemporary en-suite shower room and a walk-in shower. The remaining three are all neutrally decorated. A family bathroom with modern sanitaryware and fittings completes the upper level.

Externally, the rear, west facing,  garden has been landscaped for low maintenance, including a lawn area and a raised decked area ideal for outdoor seating. The front of the property includes a private driveway providing off-street parking.

Littleton Park is positioned close to local green spaces such as Barrhead Dams and Cowan Park, offering convenient access to walking routes and recreational areas. The location is well suited for families and commuters alike, with a range of local amenities and transport links nearby in Barrhead.

Freehold
EDC B

More Details

Situation: Private Garden
Council Tax Band: F
Tenure: Contact Branch

Contact Us

Alison Anderson

Alison Anderson

Associate Director
Roland Brownlee

Roland Brownlee

Mortgage & Protection Advisor
Mortgage Calculator
Monthly payments
Please set an interest rate.

Your home may be repossessed if you do not keep up repayments on your mortgage.

There may be a fee for mortgage advice. The actual amount you pay will depend upon your circumstances. The fee is up to 1% but a typical fee is 0.3% of the amount borrowed.

Tax Calculator
LBTT calculator for properties purchased in Scotland. Stamp Duty calculator for properties purchased in England.
Land & buildings transaction tax (LBTT)
= £0
New build house with stone and timber cladding

Looking To Sell Or Let?

Rettie is one of the most trusted and well-respected names in property. Our unrivalled market knowledge helps people from around the world buy, sell, let and develop property in Scotland and the North East of England - from city apartments and rural cottages to large townhouses and prime country homes, farms and estates. We deal with some of the most prestigious properties on the market, but provide the same exceptional standards of service and value for money to all our clients.