329 Glasgow Road, Blantyre, Glasgow, South Lanarkshire, G72 9HN
Property Description
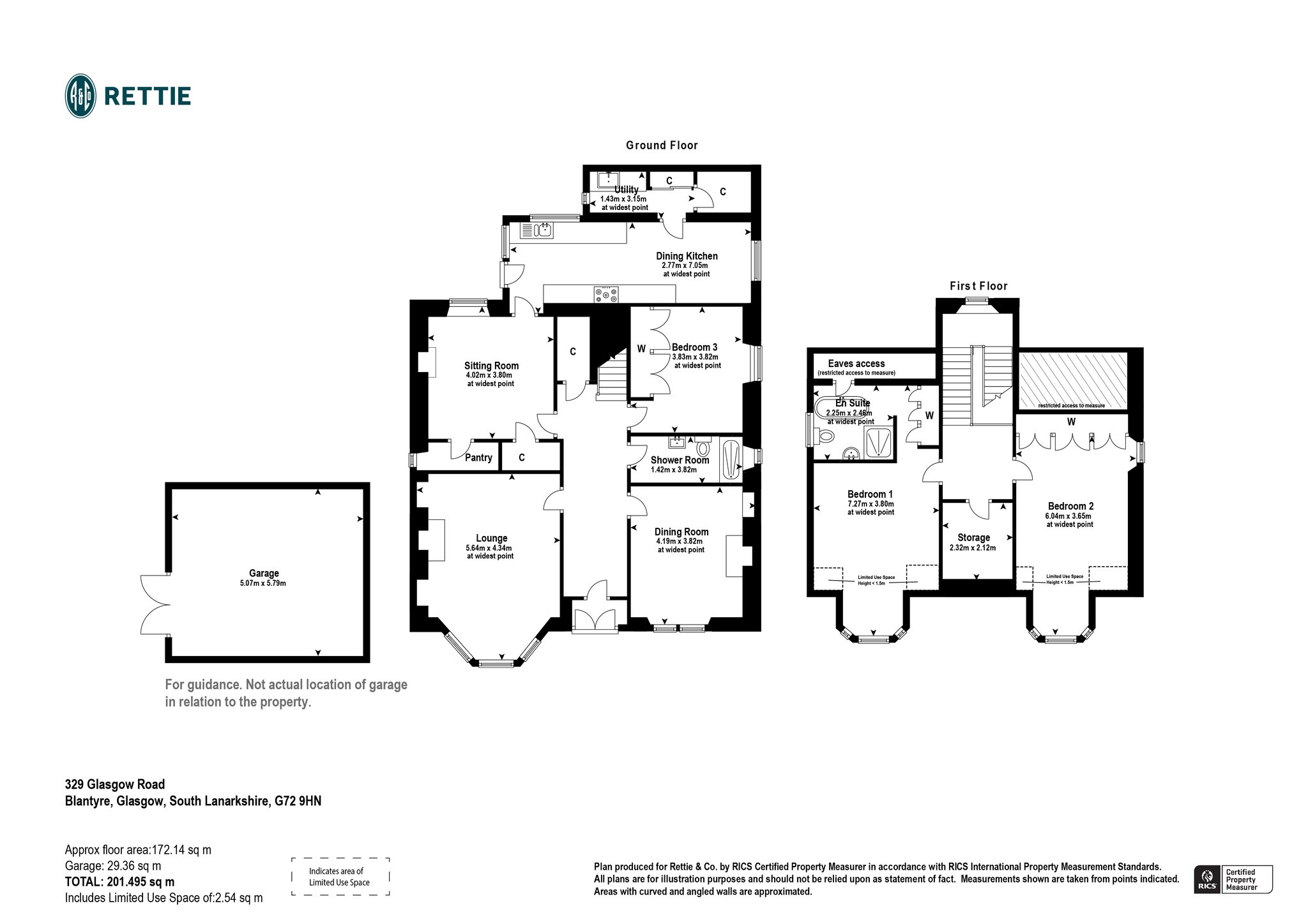
A most impressive, detached property offering a fine selection of extended accommodation yet retaining sizeable garden grounds which include an expansive driveway and large detached garage.
This beautifully presented and traditionally built villa is offered to the market in true walk-in style condition with each apartment generously sized and benefitting from fresh and tasteful decoration. Period details within the property blend successfully with a modern specification including both double glazing and gas central heating.
The property provides highly flexible accommodation arranged over two levels and which comprises as follows: entrance vestibule, broad welcoming reception hall with deep under stair storage cupboard and staircase with decorative carved balustrade leading to the upper level. There are three large public rooms on the entry level which all benefit from gas fires. The front facing lounge has a bay window formation, the formal dining room a display alcove with fitted storage while the family room looks over the rear gardens. The extended dining sized kitchen features an extensive selection of floor mounted units with solid wood worktop surfaces and breakfasting bar. This wonderful triple aspect space provides access to both the utility room and rear garden and features a “Stoves” extractor fan and ornate radiator. This impressive open plan space is finished with feature downlighting. The utility room has complimentary wood worktop surfaces, a Belfast style sink and fabulous storage including a fitted pantry. The ground floor is completed by a downstairs bedroom with fitted furniture. It should be noted that the flexibility on offer allows buyers to use the dining room as a fourth bedroom if required.
There is a window formation on the half landing with the landing area providing study space and access to all upper apartments including a walk-in storage cupboard. There are two sizeable double bedrooms both benefitting from front facing bay window formations. The principal has stylish en-suite facilities with a 4-piece suite including a stand-alone bath and walk-n shower cubicle with the second, additional fitted furniture.
The property has fresh decoration throughout including quality carpets and floorcoverings. The high specification finish includes double glazing and gas central heating.
There are substantial and level garden grounds surrounding the property. Mature hedging provides a good degree of privacy to the front with the chipped path leading to the front door. The front gardens feature well cared for flowerbeds. An expansive tarmac driveway provides ample off-street parking for several vehicles and continues past the gate to both a car port and large detached garage which features double doors for ease of access, power and light. A paved patio provides a further hard standing area with the lawn bordering various flowerbeds and shrubbery.
The sought after town of Blantyre boasts a wide and varied range of shops, supermarkets, restaurants, schools and nurseries and sports and recreational facilities including Blantyre Leisure Centre. Local buses provide easy access to Glasgow City Centre and surrounding local areas, Blantyre Train Station is a short walk-away and the M74, M73, M8 and M77 are all easily accessible allowing access to routes throughout Scotland and beyond.
HR £320k
Council Tax: E
EPC: E
More Details
Situation: Private Garden
Council Tax Band: E
Tenure: Contact Branch
Your home may be repossessed if you do not keep up repayments on your mortgage. There may be a fee for mortgage advice. The actual amount you pay will depend upon your circumstances.
Similar Properties
Looking To Sell Or Let?
Rettie is one of the most trusted and well-respected names in property. Our unrivalled market knowledge helps people from around the world buy, sell, let and develop property in Scotland and the North East of England - from city apartments and rural cottages to large townhouses and prime country homes, farms and estates. We deal with some of the most prestigious properties on the market, but provide the same exceptional standards of service and value for money to all our clients.
