1 Crosslees Park, Thornliebank, Glasgow, East Renfrewshire, G46 7DX

Thornliebank, Glasgow, East Renfrewshire, G46 7DX
Pin View on map

Offers Over £289,000

House

Semi Detached House

Bed

3 Bedrooms

Bathroom

1 Bathroom

Reception

1 Reception Room

Tree

Private Garden

Garage

Garage

Telephone

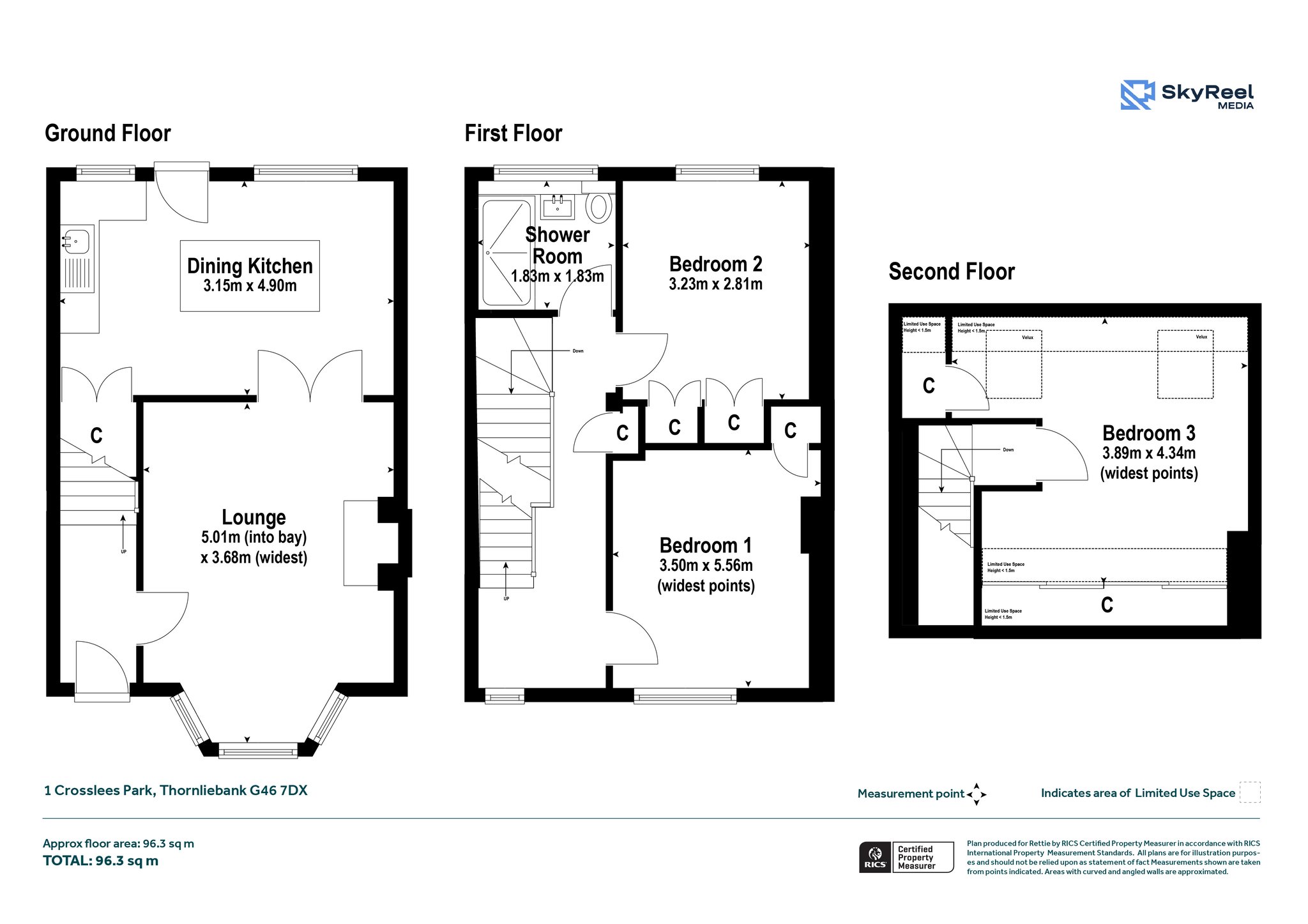
Property Description

A beautifully presented three-bedroom semi-detached villa set within the ever-popular Crosslees Park, Thornliebank. Ideally located close to local amenities in both Thornliebank and Giffnock, the property also falls within the sought-after East Renfrewshire school catchment area, making it an excellent choice for families.

The home has been thoughtfully upgraded by the current owners and offers flexible accommodation arranged over three levels. On the ground floor, the welcoming reception hallway leads to a bright lounge with French doors opening into a contemporary open-plan kitchen and dining area. This fantastic space has been reconfigured into one room and features a large breakfasting island, excellent storage, and direct access to the rear garden. On the first floor, there are two well-proportioned double bedrooms, both offering space for fitted or free-standing storage, along with a stylish family bathroom. The attic floor is home to the principal bedroom, which benefits from eaves storage, space for a desk, and Velux windows enjoying fabulous views across Glasgow.

Externally, the property is further enhanced by a driveway leading to a single garage, as well as private front and rear gardens. The rear garden includes a patio area, ideal for entertaining and outdoor dining. Additional features include gas central heating and double glazing, ensuring comfort throughout.

Crosslees Park offers excellent access to outstanding schools in East Renfrewshire and nearby local amenities. The property is perfectly situated for commuters, with train stations close by and convenient road links to the M77 motorway and beyond.

EPC D
Council Tax D
Freehold

More Details

Situation: Private Garden
Council Tax Band: D
Tenure: Contact Branch

Request More Details

Erica McFarlane

Erica McFarlane

Senior Sales Negotiator
Roland Brownlee

Roland Brownlee

Mortgage & Protection Advisor
Mortgage Calculator
Monthly payments
Please set an interest rate.

Your home may be repossessed if you do not keep up repayments on your mortgage. There may be a fee for mortgage advice. The actual amount you pay will depend upon your circumstances.

Tax Calculator
LBTT calculator for properties purchased in Scotland. Stamp Duty calculator for properties purchased in England.
Land & buildings transaction tax (LBTT)
= £0
New build house with stone and timber cladding

Looking To Sell Or Let?

Rettie is one of the most trusted and well-respected names in property. Our unrivalled market knowledge helps people from around the world buy, sell, let and develop property in Scotland and the North East of England - from city apartments and rural cottages to large townhouses and prime country homes, farms and estates. We deal with some of the most prestigious properties on the market, but provide the same exceptional standards of service and value for money to all our clients.