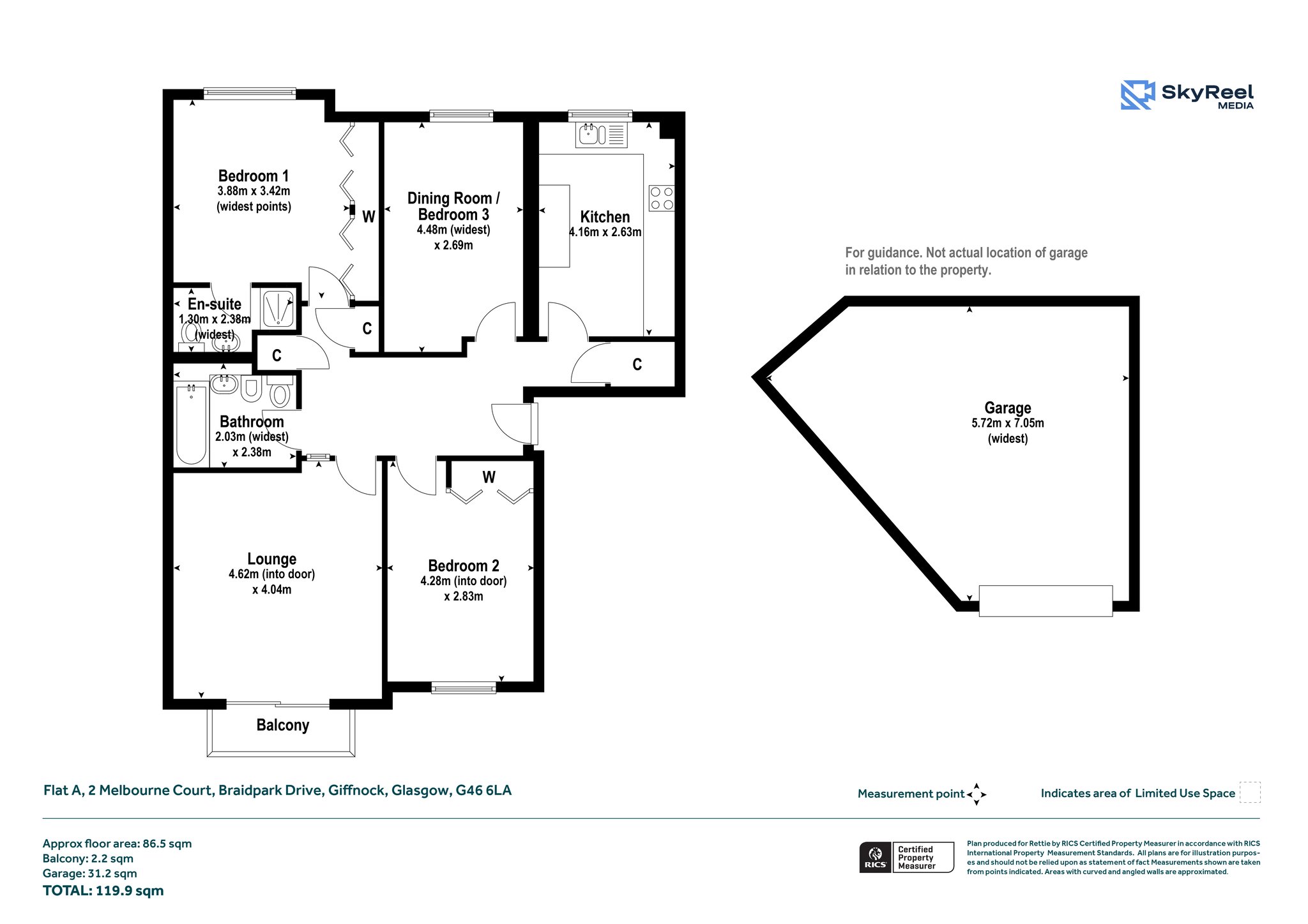
Flat A, 2 Melbourne Court, Braidpark Drive, Giffnock, Glasgow, G46 6LA

Braidpark Drive, Giffnock, Glasgow, G46 6LA
New
Pin View on map

Offers Over £255,000

House

Ground Floor Apartment

Bed

3 Bedrooms

Bathroom

2 Bathrooms

Reception

1 Reception Room

Tree

Communal Garden

Garage

Garage

Telephone

Property Description

This ground floor three-bedroom flat, built by Dickie Homes, is set within a quiet and private enclave close to Giffnock village centre. The property benefits from a private balcony and a lock-up garage, offering both comfort and practicality.

The accommodation comprises a welcoming reception hallway with generous storage, a bright sitting room with sliding doors giving direct access to the private balcony, and two double bedrooms, both with fitted wardrobes. The principal bedroom further enjoys an en-suite shower room. A dining room, which can also serve as a third bedroom, provides flexibility of use, while the breakfasting kitchen is fitted with a range of floor and wall-mounted units. A three-piece bathroom suite completes the accommodation.

Additional features include an electric heating system and double glazing. Externally, the property offers a security-controlled entrance, private residents’ parking, and a generous lock-up garage fitted with power and light. There are also well-maintained lawned residents’ gardens to the rear.

Giffnock continues to be one of the most desirable residential suburbs on Glasgow’s south side, particularly popular with families due to its excellent schools, regarded among the best in the West of Scotland. Transport links are superb, with both Giffnock and Muirend train stations within close proximity, as well as local motorway connections via the M77 and M8, ensuring swift access to Glasgow city centre, Ayrshire, and beyond.

The area is home to a wide variety of independent shops, restaurants, and delicatessens, all within walking distance. Residents also enjoy an abundance of leisure and sporting facilities nearby, including David Lloyd Sports Club, Pure Gym, Nuffield Health, Whitecraigs Golf Club, Giffnock and Whitecraigs Tennis Clubs, and the expansive Rouken Glen Park.

£275,000
Council tax F
EPC F
Freehold

More Details

Situation: Communal Garden
Council Tax Band: F
Tenure: Contact Branch

Request More Details

Alison Anderson

Alison Anderson

Associate Director
Roland Brownlee

Roland Brownlee

Mortgage & Protection Advisor
Mortgage Calculator
Monthly payments
Please set an interest rate.

Your home may be repossessed if you do not keep up repayments on your mortgage. There may be a fee for mortgage advice. The actual amount you pay will depend upon your circumstances.

Tax Calculator
LBTT calculator for properties purchased in Scotland. Stamp Duty calculator for properties purchased in England.
Land & buildings transaction tax (LBTT)
= £0
New build house with stone and timber cladding

Looking To Sell Or Let?

Rettie is one of the most trusted and well-respected names in property. Our unrivalled market knowledge helps people from around the world buy, sell, let and develop property in Scotland and the North East of England - from city apartments and rural cottages to large townhouses and prime country homes, farms and estates. We deal with some of the most prestigious properties on the market, but provide the same exceptional standards of service and value for money to all our clients.