19 Falcon Drive, Newton Mearns, Glasgow, G77 6WL

Newton Mearns, Glasgow, G77 6WL
New
Pin View on map

Offers Over £270,000

House

Terraced House

Bed

3 Bedrooms

Bathroom

2 Bathrooms

Reception

1 Reception Room

Tree

Private Garden

Telephone

Property Description

A beautifully presented three-bedroom end-terraced villa, situated within a highly sought-after development in Newton Mearns.

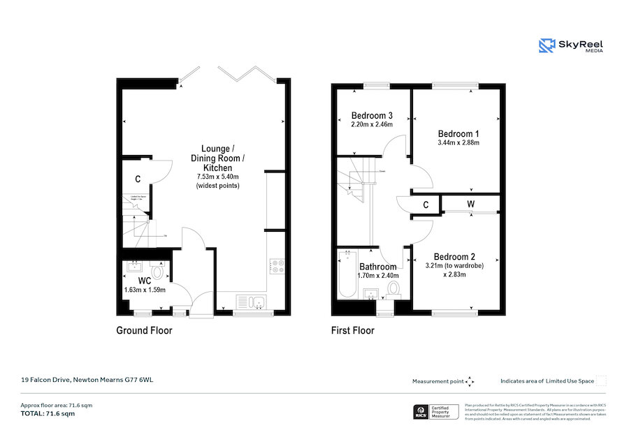
The Property Offers Versatile Accommodation Over Two Levels, Comprising

Ground Floor: Welcoming entrance hallway with a guest WC. The open-plan living area includes a dedicated kitchen fitted with a range of wall-mounted and floor-standing units, integrated appliances, and complementary work surfaces. The sitting and dining areas feature bi-fold doors opening onto the rear garden, which is well-maintained and includes a decked terrace and lawn area. Additionally, there is a generous understairs storage cupboard.

First Floor: The first floor offers three well-proportioned bedrooms, with the principal bedroom featuring fitted wardrobes and the second bedroom providing additional wardrobe space. The family bathroom, complete with a shower over the bath, completes the accommodation.

Further features include gas central heating, double glazing, and two allocated parking spaces.

More Details

EPC: C
Council Tax: E
Tenure: Freehold

Request More Details

Erica McFarlane

Erica McFarlane

Senior Sales Negotiator
Roland Brownlee

Roland Brownlee

Mortgage & Protection Advisor
Mortgage Calculator
Monthly payments
Please set an interest rate.

Your home may be repossessed if you do not keep up repayments on your mortgage. There may be a fee for mortgage advice. The actual amount you pay will depend upon your circumstances.

Tax Calculator
LBTT calculator for properties purchased in Scotland. Stamp Duty calculator for properties purchased in England.
Land & buildings transaction tax (LBTT)
= £0
New build house with stone and timber cladding

Looking To Sell Or Let?

Rettie is one of the most trusted and well-respected names in property. Our unrivalled market knowledge helps people from around the world buy, sell, let and develop property in Scotland and the North East of England - from city apartments and rural cottages to large townhouses and prime country homes, farms and estates. We deal with some of the most prestigious properties on the market, but provide the same exceptional standards of service and value for money to all our clients.