1 Stratton Drive, Giffnock, Glasgow, G46 7AB

Giffnock, Glasgow, G46 7AB
Under Offer
Pin View on map

Offers Over £725,000

House

Detached House

Bed

4 Bedrooms

Bathroom

3 Bathrooms

Reception

3 Reception Rooms

Size

2,863 sq.ft

Tree

Private Garden

Telephone

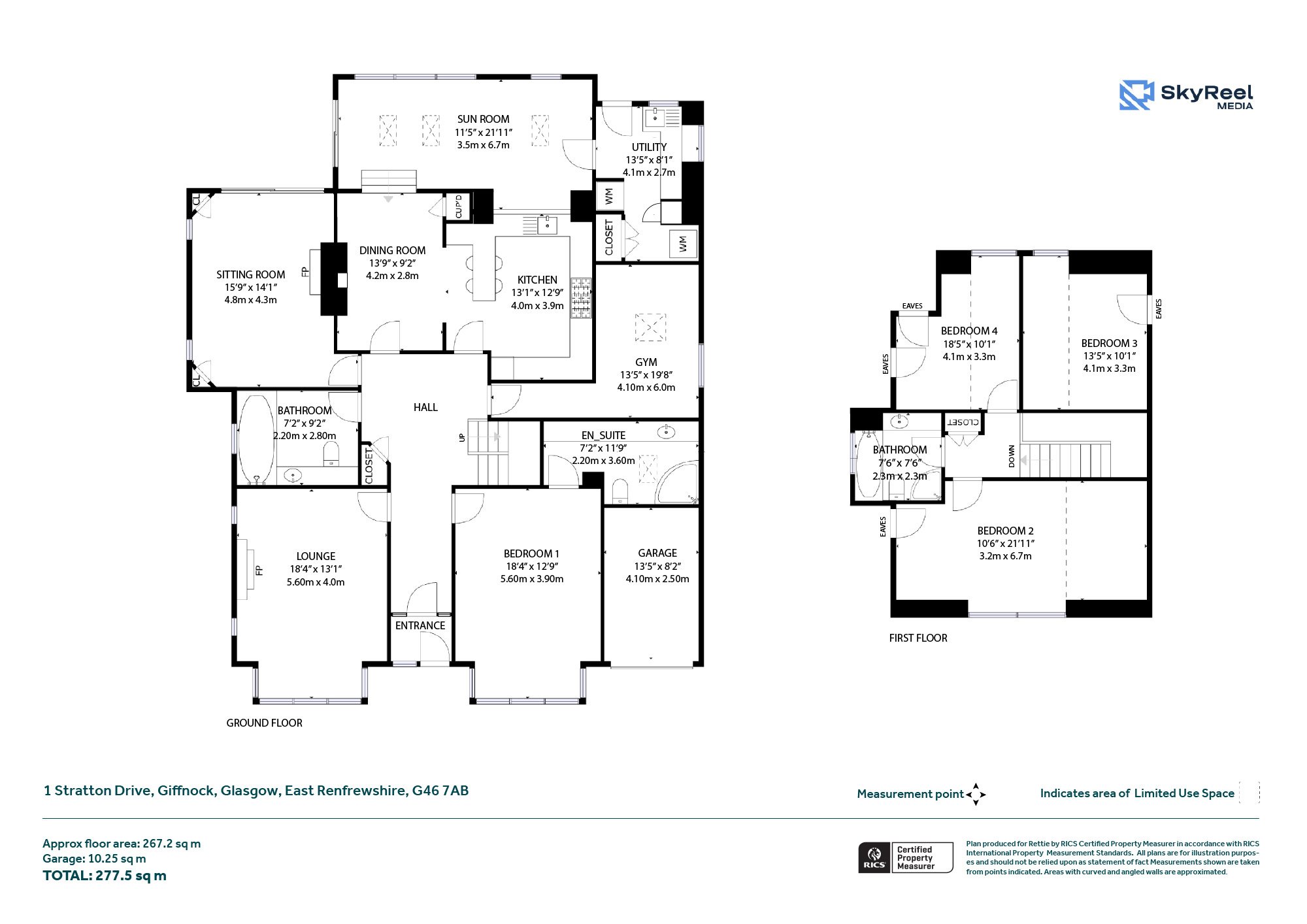
Property Description

CLOSING DATE THURSDAY 5TH FEBRUARY AT 12 NOON

Elegant Red Sandstone Bungalow in the Heart of Giffnock

Enjoying a prime position within one of Giffnock’s most desirable residential pockets, this substantial red sandstone detached bungalow offers exceptional family accommodation thoughtfully arranged over two levels and set within mature, private gardens.

The property combines timeless architectural character with generous, flexible living space, making it ideally suited for modern family life, multi-generational living or home working.

A welcoming reception hallway provides access to the principal ground floor accommodation. There is an impressive formal lounge with feature fireplace and dual aspects, alongside a spacious sitting room offering a more relaxed everyday living environment. The heart of the home is formed by the well-proportioned dining room which connects seamlessly to the kitchen, creating an ideal space for entertaining and family living. From here, access leads into a superb sun room, flooding the interior with natural light and offering direct connection to the garden.

The kitchen is generously sized with excellent storage and preparation space, complemented by a large utility room and additional storage. A dedicated gym room provides valuable lifestyle flexibility and could alternatively serve as a home office, studio or playroom.

The ground floor also hosts a spacious principal bedroom with adjacent en-suite shower room, alongside a family bathroom, making the property particularly appealing for those seeking accessible, lateral living options.

On the upper level, there are three further well-proportioned bedrooms and a family bathroom, ideal for growing families or guest accommodation.

Externally, the home benefits from private garden grounds, ideal for outdoor entertaining and family use, together with an integral garage (for storage only) and ample driveway parking.

Positioned within walking distance of Giffnock village, excellent schooling, local amenities and transport links, this outstanding home offers a rare opportunity to acquire a substantial red sandstone bungalow in a highly sought-after location.

Early viewing is strongly recommended.

Freehold

More Details

Situation: Private Garden
Council Tax Band: G
Tenure: Freehold

Contact Us

Alison Anderson

Alison Anderson

Associate Director
Daniel Cohen

Daniel Cohen

Associate Director
Roland Brownlee

Roland Brownlee

Mortgage & Protection Advisor
Mortgage Calculator
Monthly payments
Please set an interest rate.

Your home may be repossessed if you do not keep up repayments on your mortgage. There may be a fee for mortgage advice. The actual amount you pay will depend upon your circumstances.

Tax Calculator
LBTT calculator for properties purchased in Scotland. Stamp Duty calculator for properties purchased in England.
Land & buildings transaction tax (LBTT)
= £0
New build house with stone and timber cladding

Looking To Sell Or Let?

Rettie is one of the most trusted and well-respected names in property. Our unrivalled market knowledge helps people from around the world buy, sell, let and develop property in Scotland and the North East of England - from city apartments and rural cottages to large townhouses and prime country homes, farms and estates. We deal with some of the most prestigious properties on the market, but provide the same exceptional standards of service and value for money to all our clients.