Arduaine, 296 Glasgow Road, Eaglesham, Glasgow, East Renfrewshire, G76 0EW
Offers Over £465,000
Detached House
4 Bedrooms
3 Bathrooms
2 Reception Rooms
Private Garden
Garage
Property Description
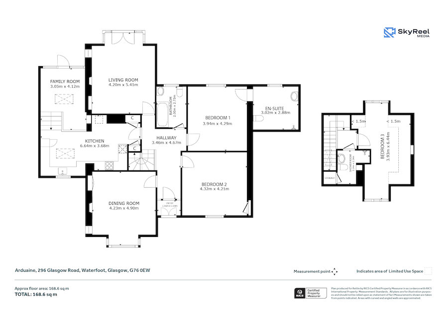
This beautiful three/four-bedroom detached home is set within the ever-popular area of Waterfoot, enjoying a tranquil position with outstanding open views. Located within highly sought-after East Renfrewshire, the property is only moments from the neighbouring areas of Eaglesham, Newton Mearns, Busby, and Clarkston, offering the perfect balance of peaceful surroundings and excellent accessibility.
Immaculately maintained throughout, this charming home offers predominantly all-on-one-level accommodation that combines style, comfort, and versatility.
Entered via double storm doors into a welcoming vestibule, the property opens into a lovely reception hallway with a staircase to the upper floor and doors leading to all principal rooms. The beautiful rear lounge enjoys French doors opening onto a decked terrace with breathtaking open countryside views, while the bay-windowed dining room to the front overlooks the garden and can also be used as a further bedroom if desired. The stunning open-plan dining kitchen is fitted with a range of wall-mounted and floor-standing units, complementary work surfaces, and striking exposed brickwork. From here, stairs lead down to a comfortable family room that provides direct access to the rear garden - a perfect space for relaxing or entertaining. The principal bedroom benefits from fitted wardrobe space and a lovely ensuite shower room, while the second bedroom is also of double proportion and enjoys a bright, airy aspect. Completing the ground floor is a family bathroom fitted with a three-piece white suite.
Upstairs, there is a further bedroom with dormer windows to both the front and rear, a shower room, and ample eaves storage. The property further benefits from gas central heating, double glazing, a large driveway providing ample off-street parking, and a single garage.
A particular feature of this home is the gorgeous landscaped gardens to the front and rear, featuring terraces, lawn areas, mature planting, and a secluded shrubbery area that leads down to a peaceful burn. This exceptional outdoor space perfectly complements the home’s serene setting and makes it a truly special property in one of East Renfrewshire’s most desirable locations.
Waterfoot is a charming and highly desirable village nestled within East Renfrewshire, offering a peaceful, semi-rural lifestyle while remaining close to all modern conveniences. Surrounded by rolling countryside, it provides beautiful walking routes and a real sense of community, yet is only a short drive from the amenities of Eaglesham, Newton Mearns, Busby, and Clarkston. Renowned for its excellent local schools, easy commuter links to Glasgow, and picturesque setting, Waterfoot combines village charm with the benefits of contemporary suburban living.
More Details
EPC: D
Council Tax: G 
Tenure: Freehold
Your home may be repossessed if you do not keep up repayments on your mortgage. There may be a fee for mortgage advice. The actual amount you pay will depend upon your circumstances.
Similar Properties
Looking To Sell Or Let?
Rettie is one of the most trusted and well-respected names in property. Our unrivalled market knowledge helps people from around the world buy, sell, let and develop property in Scotland and the North East of England - from city apartments and rural cottages to large townhouses and prime country homes, farms and estates. We deal with some of the most prestigious properties on the market, but provide the same exceptional standards of service and value for money to all our clients.

