9 Kirkdene Crescent, Newton Mearns, Glasgow, East Renfrewshire, G77 5RP
Offers Over £360,000
Semi Detached House
4 Bedrooms
2 Bathrooms
3 Reception Rooms
Private Garden
Property Description
Kirkdene Crescent is a fabulous, extended, four-bedroom semi-detached bungalow in the heart of Newton Mearns; rarely available to the open market, early viewing is highly recommended.
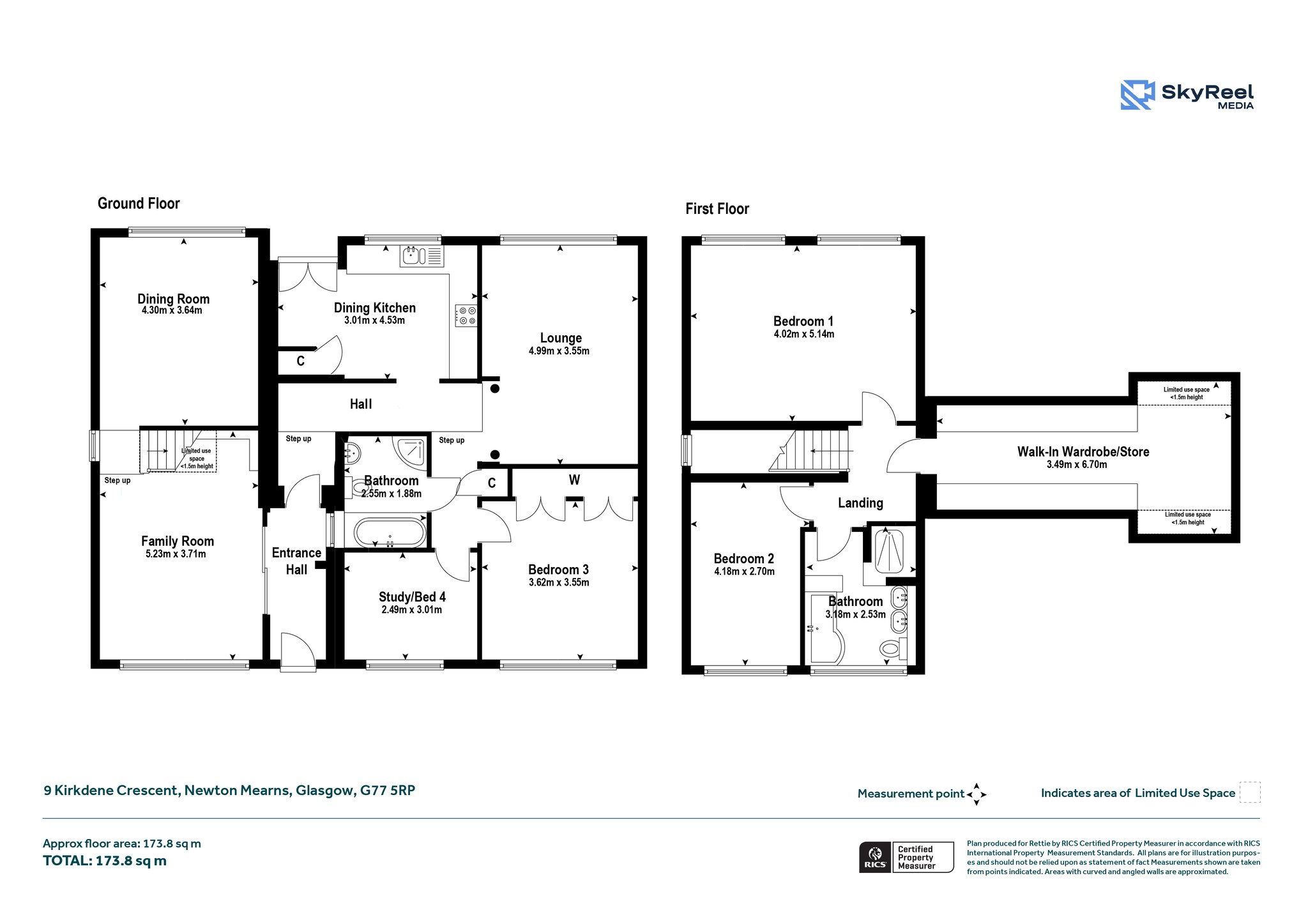
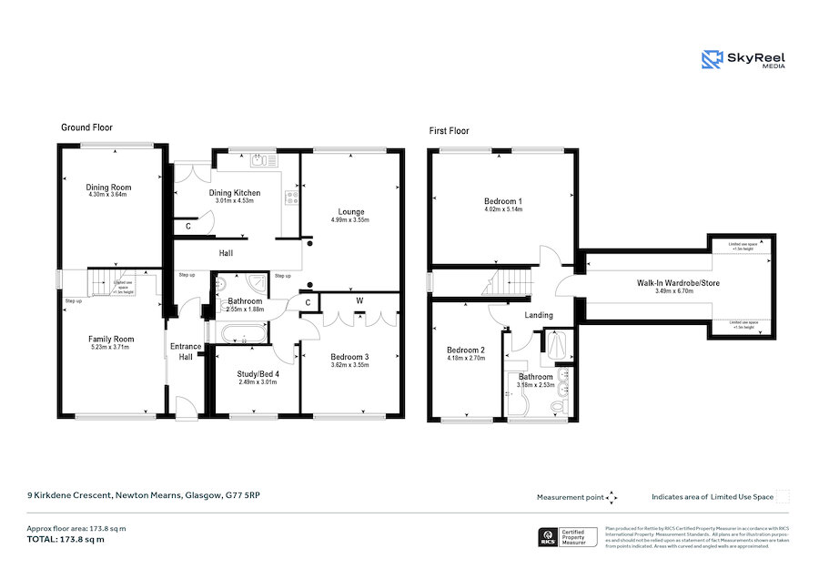
This stunning four-bedroom semi-detached bungalow, occupying a generous plot within a desirable cul-de-sac Newton Mearns address. The home is presented in immaculate condition and is a perfect blend of flexible living space for families and downsizers alike.
A bright and spacious reception hallway welcomes you which flows on to the main living areas. The formal lounge is located to the rear, with splendid views over an open, peaceful grassed area. The dining kitchen is located at the end of the hall and is complete with floor and wall mounted cabinets, cupboard off and convenient direct access on to level garden. The first double bedroom is located off hall and benefits from built in storage. A second bedroom/study is also located off hall with a family bathroom (featuring shower and separate bath), is conveniently located off.
A second open-plan lounge and separate dining area features an oak staircase providing access to upper level (and further bedrooms).
The first floor features a generously sized principal bedroom, fourth bedroom a large walk-in wardrobe (off upper landing) and to complete the overall accommodation, a large family bathroom, again with separate shower and bath and twin sinks.
Externally, the property has monoblock rear access with generous parking space, beautifully landscaped gardens with a slab patio (a real sun trap), and side entrance to front garden. The front garden is very private and looks on to a communal grassed area which provides a delightful open outlook.
The property sits within the catchment area for some of Scotland’s highest attaining primary and secondary schools. The area also has a host of local amenities including banks, healthcare centres, libraries, supermarkets and is close to The Avenue shopping centre. Local sports and recreational facilities include Parklands Country Club, Cathcart, Williamwood and Whitecraigs Golf Clubs and several of private bowling, tennis, and rugby clubs along with East Renfrewshire Council's own excellent sports and leisure facilities at Eastwood Toll. The Avenue Shopping Centre, local restaurants, cafés, and highly regarded schools, with easy access to the M77 and rail links for fast travel to Glasgow and beyond.
More Details
EPC: C
Council tax: E
Tenure: Freehold
Your home may be repossessed if you do not keep up repayments on your mortgage. There may be a fee for mortgage advice. The actual amount you pay will depend upon your circumstances.
Similar Properties
Looking To Sell Or Let?
Rettie is one of the most trusted and well-respected names in property. Our unrivalled market knowledge helps people from around the world buy, sell, let and develop property in Scotland and the North East of England - from city apartments and rural cottages to large townhouses and prime country homes, farms and estates. We deal with some of the most prestigious properties on the market, but provide the same exceptional standards of service and value for money to all our clients.
