14 Springfauld Way, Barrhead, Glasgow, East Renfrewshire, G78 2BW
Offers Over £439,000
Detached House
5 Bedrooms
4 Bathrooms
3 Reception Rooms
Private Garden
Double Garage
Property Description
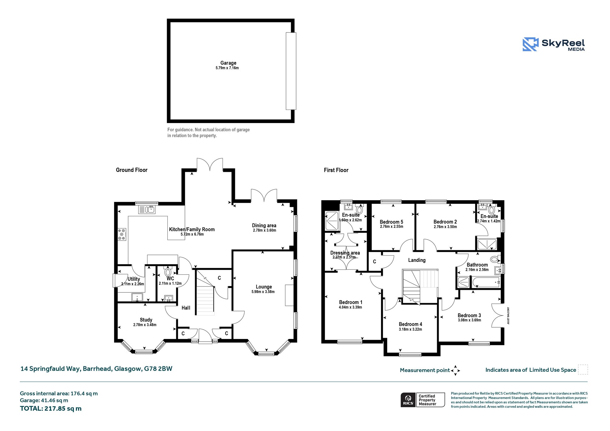
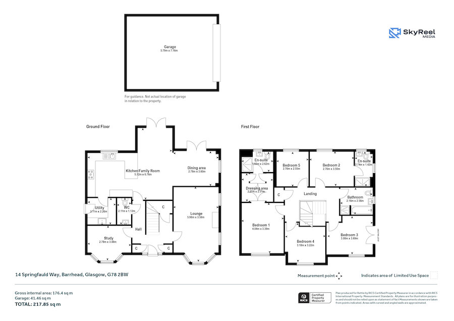
Set within a prestigious modern development, this outstanding five bedroom detached villa offers luxurious family living with an impressive blend of style, space, and comfort. The ground floor features a beautiful formal lounge with bay window and a superb re-configured open plan kitchen/family/dining room with two sets of French doors leading to the garden. A study, utility room, and cloakroom complete the lower level.
Upstairs, the home offers exceptional bedroom accommodation, including a stunning principal suite with en suite, a second en suite bedroom, and three further generous bedrooms served by a modern family bathroom.
Externally, the property boasts private gardens, mainly laid to lawn with patio areas for al-fresco dinning. There is a double detached garage, and ample driveway parking—creating a perfect family haven in one of Barrhead’s most sought after addresses.
Barrhead is fast becoming a highly popular residential area within East Renfrewshire, with excellent local schooling, including the well regarded St. Luke’s High School nearby. There is an array of facilities including the new retail park just off Glasgow Road and Silverburn shopping centre is easily reachable. Ideally located for travel to Glasgow and beyond via the M77 and M8 motorways only a short drive from the property, there is also a range of rail and bus transport available. The neighbouring countryside caters for a wide variety of outdoor sports and leisure pursuits including new cycle and walking routes at the nearby Dams to Darnley country park.
More Details
Council Tax: G
EPC: B
Tenure: Freehold
Your home may be repossessed if you do not keep up repayments on your mortgage.
There may be a fee for mortgage advice. The actual amount you pay will depend upon your circumstances. The fee is up to 1% but a typical fee is 0.3% of the amount borrowed.
Similar Properties
Looking To Sell Or Let?
Rettie is one of the most trusted and well-respected names in property. Our unrivalled market knowledge helps people from around the world buy, sell, let and develop property in Scotland and the North East of England - from city apartments and rural cottages to large townhouses and prime country homes, farms and estates. We deal with some of the most prestigious properties on the market, but provide the same exceptional standards of service and value for money to all our clients.
