Property Description
Ralston Drive is a charming 3 bedroom, semi-detached villa situated within a much sought after and convenient residential location.
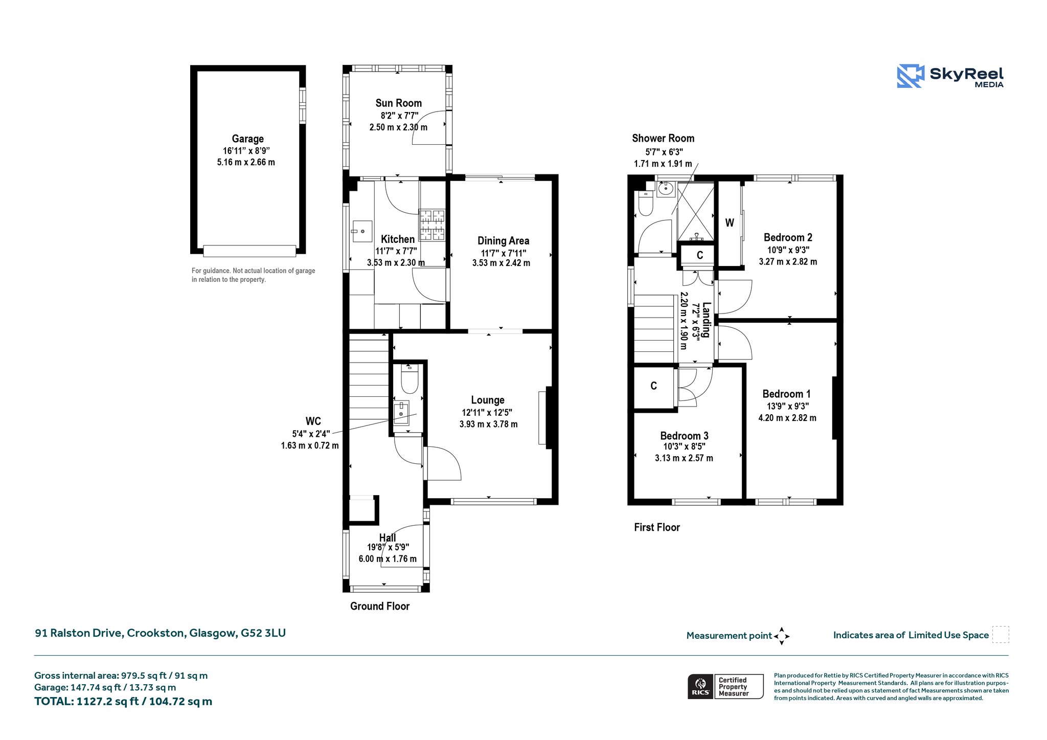
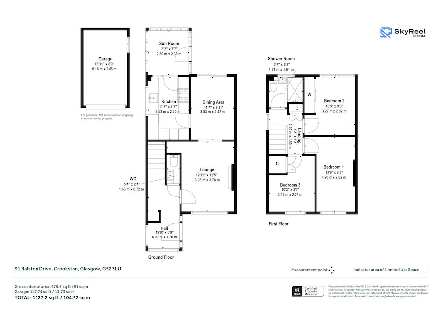
The property offers well laid out accommodation over two levels which in full comprises, entrance vestibule opening on to welcoming reception hallway, well presented generous sitting room, opening on to the open plan dining room complete with patio doors on to garden. The kitchen, located off dining room has floor and wall mounted units which leads on to the conservatory to the rear of the home. A ground level WC completes the ground floor accommodation.
On the upper level there are three bedrooms (two double and one single) and modern 3 piece shower room.
The property is further complemented by double glazing, gas central heating and lovely front and rear garden grounds, driveway, garage and garden shed (to the rear).
Ralston Drive itself is ideally placed for a range of local amenities. Further High Street Shopping can be found at both Braehead and Silverburn Shopping Complexes. Also close at hand are excellent public transport and motorway links allowing easy access to Glasgow City Centre and destinations further afield. Viewing at the earliest is highly recommended to appreciate the quality of accommodation on offer and to avoid disappointment.
More Details
Situation: Private Garden
Council Tax Band: E
Tenure: Contact Branch
Your home may be repossessed if you do not keep up repayments on your mortgage.
There may be a fee for mortgage advice. The actual amount you pay will depend upon your circumstances. The fee is up to 1% but a typical fee is 0.3% of the amount borrowed.
Similar Properties
Looking To Sell Or Let?
Rettie is one of the most trusted and well-respected names in property. Our unrivalled market knowledge helps people from around the world buy, sell, let and develop property in Scotland and the North East of England - from city apartments and rural cottages to large townhouses and prime country homes, farms and estates. We deal with some of the most prestigious properties on the market, but provide the same exceptional standards of service and value for money to all our clients.
