6 Woodend Crescent, Ettrickbridge, Selkirk, Scottish Borders, TD7 5JQ

Ettrickbridge, Selkirk, Scottish Borders, TD7 5JQ
Under Offer
Pin View on map

Offers Over £455,000

House

Detached House

Bed

4 Bedrooms

Bathroom

3 Bathrooms

Reception

2 Reception Rooms

Size

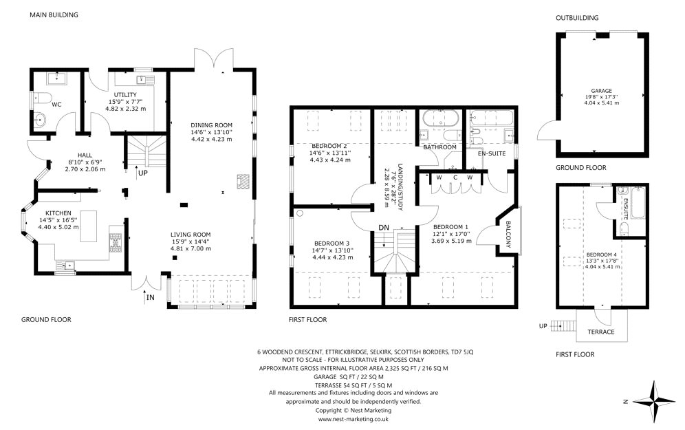
2,325 sq.ft

Tree

Private Garden

Garage

Double Garage

Telephone

Property Description

6 Woodend Crescent is a stunning four-bedroom detached home sitting within a peaceful cul-de-sac in the much sought after village of Ettrickbridge. Nestled in a generous corner plot, this beautiful property is presented to the market in immaculate condition having been renovated and upgraded throughout by the current owners presenting a stunning contemporary home with high specification bathrooms, light and airy interiors and wonderful leafy views.

Key Features

  • Generous corner plot with wraparound gardens planted with various shrubs and herbaceous borders.
  • High specification bathrooms by Bathroom Planet, Galashiels.
  • 8kw woodburning stove.
  • Modern fitted kitchen with integrated appliances.
  • Three spacious bedrooms spaces all with open airy views.
  • Double garage with power, electric doors, great for use as a workshop and external storage.
  • Self-contained one bedroom apartment housed above the garage making excellent guest accommodation.
  • Private section of riverside with fishing rights on the Ettrick Water.

Ettrickbridge is a much sought after semi-rural village, located in the heart of the picturesque Ettrick Valley. The village has a strong sense of local community and benefits from a well-regarded pub (The Cross Keys,) local Church, active Village Hall and the sought after Kirkhope Primary School.

More Details

EPC: B
Council Tax Band: F
Tenure: Freehold

Viewing by appointment via Rettie Borders.

Contact Us

Fraser Wardhaugh

Fraser Wardhaugh

Senior Sales Negotiator
Hugh Rettie

Hugh Rettie

Associate Director
Paul Banyard Cert CII (MP)

Paul Banyard Cert CII (MP)

Mortgage & Protection Advisor
Mortgage Calculator
Monthly payments
Please set an interest rate.

Your home may be repossessed if you do not keep up repayments on your mortgage. There may be a fee for mortgage advice. The actual amount you pay will depend upon your circumstances.

Tax Calculator
LBTT calculator for properties purchased in Scotland. Stamp Duty calculator for properties purchased in England.
Land & buildings transaction tax (LBTT)
= £0
New build house with stone and timber cladding

Looking To Sell Or Let?

Rettie is one of the most trusted and well-respected names in property. Our unrivalled market knowledge helps people from around the world buy, sell, let and develop property in Scotland and the North East of England - from city apartments and rural cottages to large townhouses and prime country homes, farms and estates. We deal with some of the most prestigious properties on the market, but provide the same exceptional standards of service and value for money to all our clients.