Ettrick View, 2 Newburgh Farm Steading, Selkirk, Scottish Borders, TD7 5HS
Offers Over £495,000
House
6 Bedrooms
4 Bathrooms
3 Reception Rooms
3,801 sq.ft
Private Garden
Garage
Off Street Parking
Property Description
Ettrick View is a charming and generously proportioned steading conversion forming part of a small community of properties situated in the picturesque Ettrick Valley. Set over two principal floors the property offers spacious and flexible living with seven-bedrooms, four bathrooms (two of which are en-suite) and three good sized reception rooms.
Highlights Include
- Spacious living extending to 3801 square feet.
- Six flexible bedrooms spaces, two of which boast en-suite bathrooms.
- Generous receptions rooms ideal for entertaining.
- Neutral decor throughout allowing purchasers a chance to put their own stamp on the property.
- Generous low maintenance gardens.
- Views of rolling countryside.
- Double garage for storage, parking or an external office/gym/workshop.
The property boasts wraparound views of the surrounding countryside. Ettrick View offers incoming purchasers peaceful rural living with easy connections into the central Scottish Borders with the bustling town of Selkirk only 13 miles away offering a wealth of local amenities.
Externally the property benefits from a large, enclosed lawn, central gravel courtyard and double garage with two up & over doors and two parking spaces.
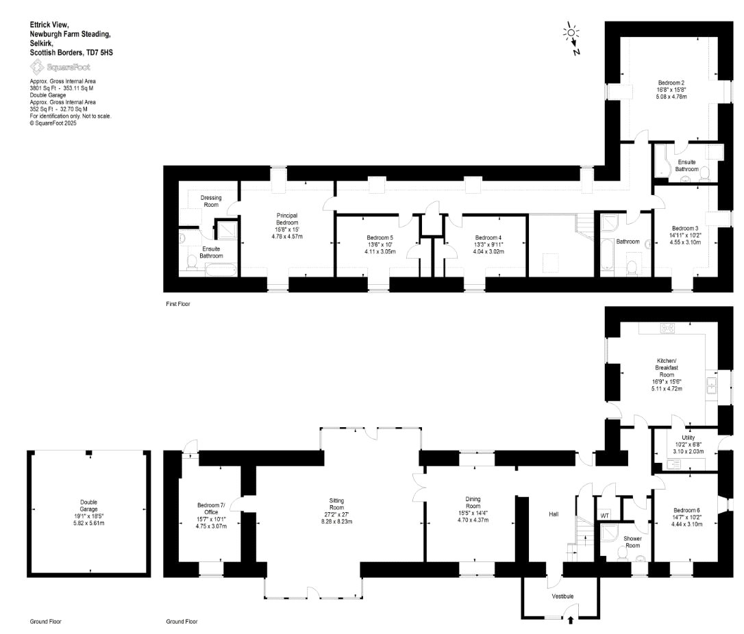
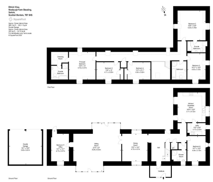
Ground Floor:
Vestibule, Hall, Sitting Room, Office/Study/Bedroom 7, Dining Room, Breakfasting Kitchen, Utility Room, Shower Room, Bedroom 6.
First Floor:
Principal bedroom with dressing room & ensuite, bedroom two with ensuite, three further double bedrooms, bathroom.
Externally the property boasts a large lawned garden and a generous double garage.
More Details
EPC: C
Council Tax Band: G
Tenure: Freehold
Viewing by appointment via Rettie & Co
Your home may be repossessed if you do not keep up repayments on your mortgage. There may be a fee for mortgage advice. The actual amount you pay will depend upon your circumstances.
Similar Properties
Looking To Sell Or Let?
Rettie is one of the most trusted and well-respected names in property. Our unrivalled market knowledge helps people from around the world buy, sell, let and develop property in Scotland and the North East of England - from city apartments and rural cottages to large townhouses and prime country homes, farms and estates. We deal with some of the most prestigious properties on the market, but provide the same exceptional standards of service and value for money to all our clients.
