Morven, Ormiston Terrace, Melrose, Scottish Borders, TD6 9SW
Property Description
Morven is an utterly charming and rarely available detached family home sitting within a generous south-facing plot in the sought after Borders town of Melrose. Built in circa 1930 for a wealthy local doctor, Morven is ideally laid out to suit family life with a wealth of bedrooms and flexible reception spaces for entertaining. Sitting within mature wraparound gardens the property is a true gem with excellent proportions.
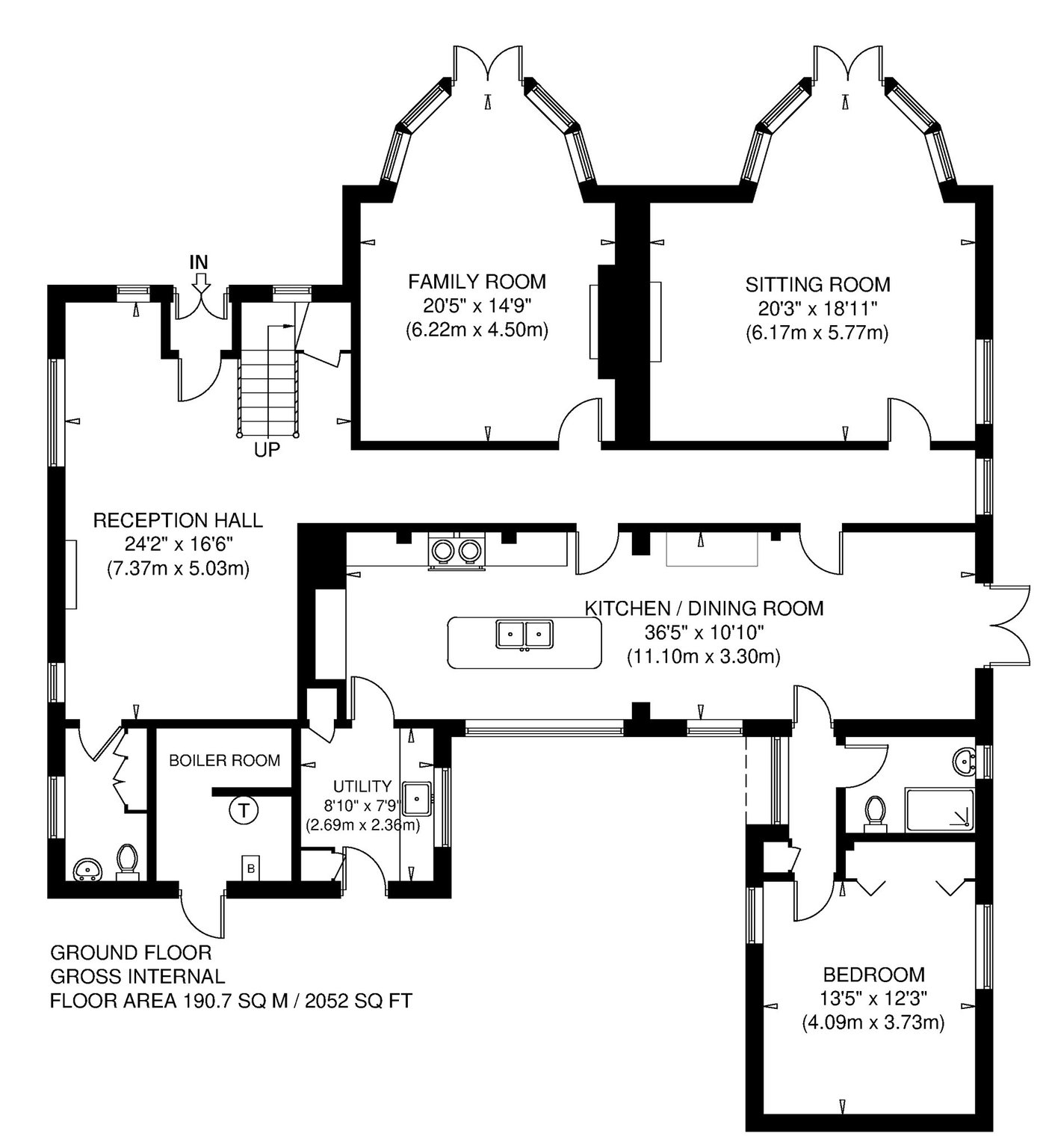
The ground floor opens into a stunning double-height reception hall, currently set up as an informal sitting room this space is ideal for entertaining guests or could easily double as a dining space. The main corridor leads to the heart of the home with a generous dining kitchen complete with shaker style wooden units and AGA stove. To the front of the property is the formal sitting room and snug - both rooms boast deep bay-windows and french doors leading onto the front patio. The rear of the ground floor offers a large utility room, downstairs bathroom and a fifth bedroom suite, ideal for guest accommodation or those requiring one-level living.
A turned wooden staircase leads to the first floor where there are four generous double bedrooms each with ample space for bedroom furniture and views over the gardens. A large linen cupboard provided capacious storage and hatch to the loft which has been cleverly converted into a games-room – subject to consent this could be excavated further to provide additional bedroom accommodation.
The gardens at Morven wraparound the property providing privacy and an abundance of sunlight with it’s truly south-facing aspect, mostly laid to lawn there are a wealth of specimen trees and outbuildings for storage. This wonderful property is ideally located within walking distance of Melrose centre where there are a wealth of local amenities and two local schools making it a wonderful prospect for those looking to take full advantage of town life with easy connections to the Border General Hospital and Edinburgh.
Accommodation Comprises
Ground Floor
Reception Hall, Sitting Room, Dining Kitchen, Family Room, Bedroom 5, Bathroom, Utility Room, WC.
First Floor
Principal bedroom, Three further double bedrooms, two generous bathrooms, linen cupboard with loft access to games-room.
Externally the property boasts a large double garage, several outbuildings and a charming chalet hut with firepit.
More Details
EPC:D
CT Band: G
Tenure: Freehold
Viewings by appointment only via Rettie Borders.
Your home may be repossessed if you do not keep up repayments on your mortgage. There may be a fee for mortgage advice. The actual amount you pay will depend upon your circumstances.
Similar Properties
Looking To Sell Or Let?
Rettie is one of the most trusted and well-respected names in property. Our unrivalled market knowledge helps people from around the world buy, sell, let and develop property in Scotland and the North East of England - from city apartments and rural cottages to large townhouses and prime country homes, farms and estates. We deal with some of the most prestigious properties on the market, but provide the same exceptional standards of service and value for money to all our clients.
