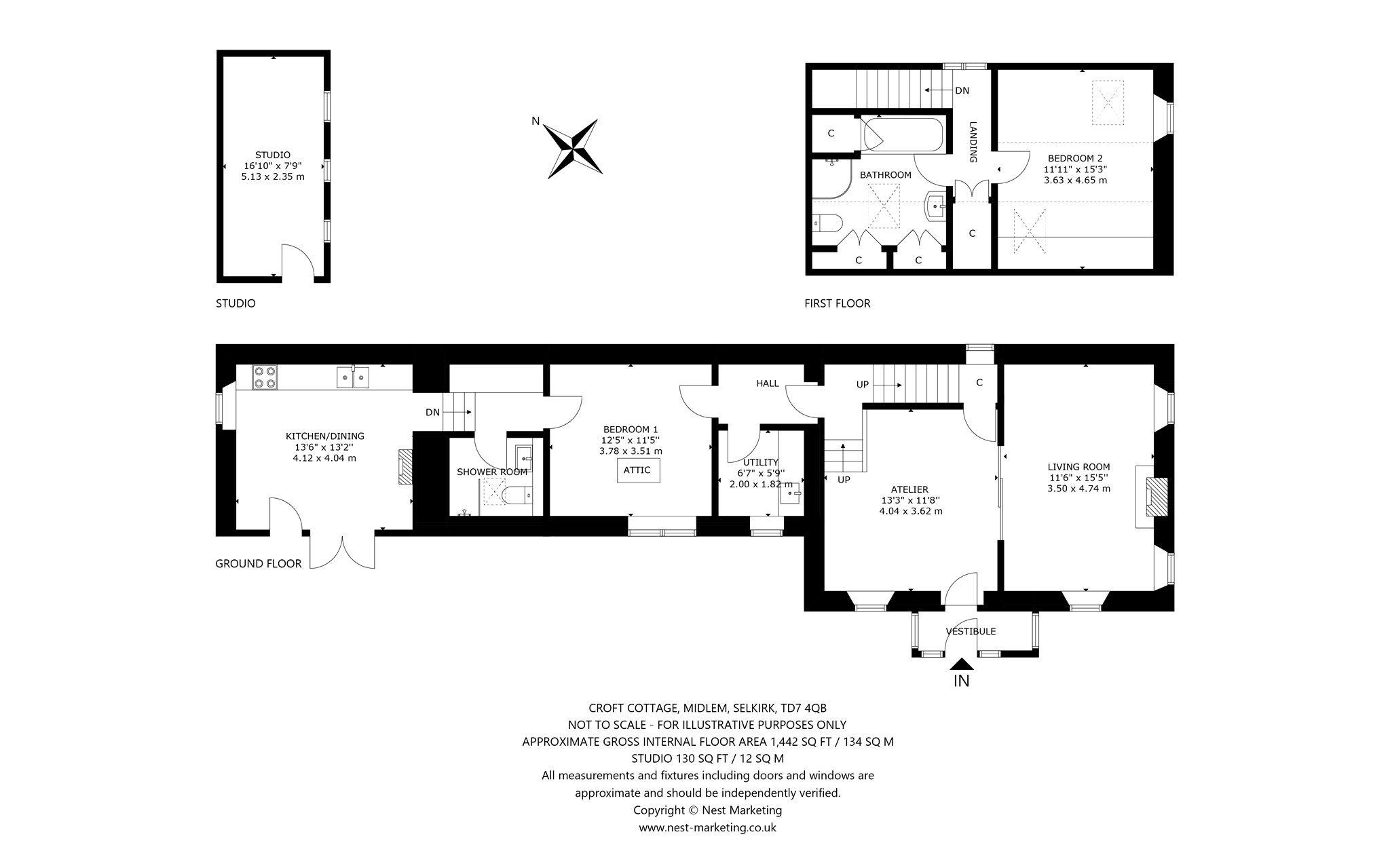
Property Description
A charming and immaculately presented two-bedroom period cottage sitting within a generous plot on the village green in the quaint village of Midlem. Carefully and thoughtfully restored by the current owners the property presents flexible living and reception spaces spanning circa 1442 square feet. Croft Cottage boasts outstanding views to the Cheviot Hills and is bathed in sunlight due its south facing position. The extensive rear gardens are filled with an array of specimen trees, rich fruit trees and deep herbaceous borders providing ample opportunity for the green fingered purchaser.
Highlights Include
- Generous sitting room with wood-burning stove, triple aspect windows and south-facing views.
- Large dining kitchen with wood-burning stove and patio doors to a paved terrace.
- Two large bathrooms with high specification fixtures and fittings.
- Modern dining-kitchen with patio doors, Belfast sink and sleek modern cabinetry.
- Three flexible and generous reception rooms with ample potential to be extra bedroom accommodation.
- Large external studio with power, insulation and stunning views of the Cheviot Hills.
- Facility for electric car charging.
- Extensive private gardens with laid lawn, specimen trees, fruit trees and herbaceous borders.
Offering incoming purchasers a wonderful opportunity, Croft Cottage is ideally situated to enjoy the advantages of village life whilst being within a short drive of an array of local amenities in nearby Selkirk, Melrose and St Boswells.
Accommodation Comprises
Ground Floor
Vestibule, Sitting Room, Atelier/Dining Room, Study/Bedroom, Breakfasting Kitchen, Shower Room, Utility Room.
First Floor
Bedroom, Bathroom, Hallway Storage Cupboard.
Externally the property boasts from a sunny enclosed front garden and extensive rear gardens with terrace, laid lawn, herbaceous borders and garden studio.
More Details
EPC: D
Council Tax Band: D
Tenure: Freehold
Viewing by appointment via Rettie Borders.
Your home may be repossessed if you do not keep up repayments on your mortgage. There may be a fee for mortgage advice. The actual amount you pay will depend upon your circumstances.
Similar Properties
Looking To Sell Or Let?
Rettie is one of the most trusted and well-respected names in property. Our unrivalled market knowledge helps people from around the world buy, sell, let and develop property in Scotland and the North East of England - from city apartments and rural cottages to large townhouses and prime country homes, farms and estates. We deal with some of the most prestigious properties on the market, but provide the same exceptional standards of service and value for money to all our clients.
