34A Belgrave Villas, Belgrave Road, Edinburgh, EH12 6NQ
Offers Over £799,950
Semi Detached House
4 Bedrooms
4 Bathrooms
2 Reception Rooms
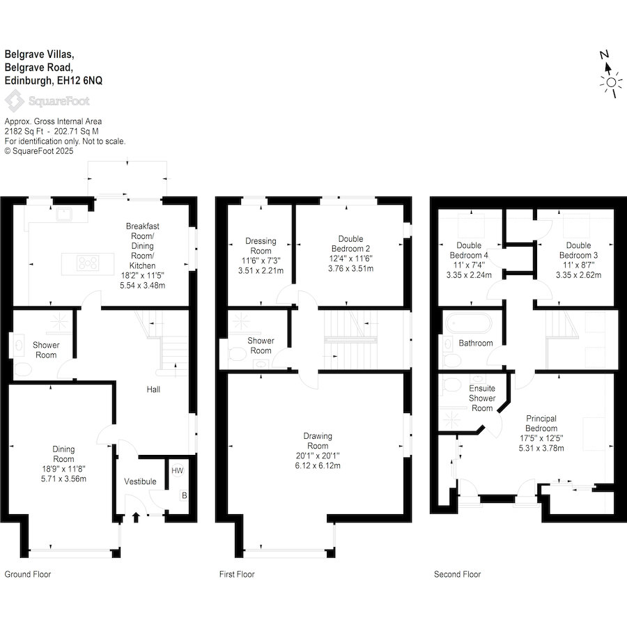
2,150 sq.ft
Private Garden
On Street/Permit
Property Description
Belgrave Villas are a prestigious collection of four brand new contemporary townhouses situated on a peaceful road in the highly sought-after area of Corstorphine. Arranged over three levels, the 4-5 bedroom properties offer well-proportioned family accommodation and versatile entertaining and living spaces. This magazine-worthy development is clad in traditional sandstone with rooms to the front offering panoramic views of the Pentland Hills via the floor-to-ceiling windows. These ultra-modern family residences benefit from high specification fixtures and fittings including kitchens from Kitchens International and Porcelanosa bathrooms with wet rooms and underfloor heating. The property boasts a sophisticated one-stop home solution system to control heating, lighting and security that can be operated from a mobile phone app.
Situated in beautifully landscaped grounds, the property enjoys allocated off-road private parking as well as an enclosed private garden to the rear of the property. It lies within easy access to all the wide range of excellent local amenities in the charming village of Corstorphine and the walking trails of the Corstorphine Hill Nature Reserve. The cosmopolitan delights of the city centre are less than three miles away whilst Edinburgh Airport and the Edinburgh Bypass are within easy reach.
More Details
EPC: B
Council Tax Band: G
Tenure: Freehold
Viewing strictly by appointment.
Your home may be repossessed if you do not keep up repayments on your mortgage. There may be a fee for mortgage advice. The actual amount you pay will depend upon your circumstances.
Similar Properties
Looking To Sell Or Let?
Rettie is one of the most trusted and well-respected names in property. Our unrivalled market knowledge helps people from around the world buy, sell, let and develop property in Scotland and the North East of England - from city apartments and rural cottages to large townhouses and prime country homes, farms and estates. We deal with some of the most prestigious properties on the market, but provide the same exceptional standards of service and value for money to all our clients.
