Property Description
An immaculate lower ground, main door apartment in the heart of Edinburgh’s New Town, a UNESCO World Heritage Site. The flat has been beautifully designed by the current owner, providing a fabulous space. Entered via a stylish vestibule, the flat comprises a sitting room with stone wall features, a very bright Neptune kitchen with space for dining, a separate dining room, as well as a principle double bedroom, further double bedroom, large bathroom and ample cupboards. The property also benefits from a lined cellar.
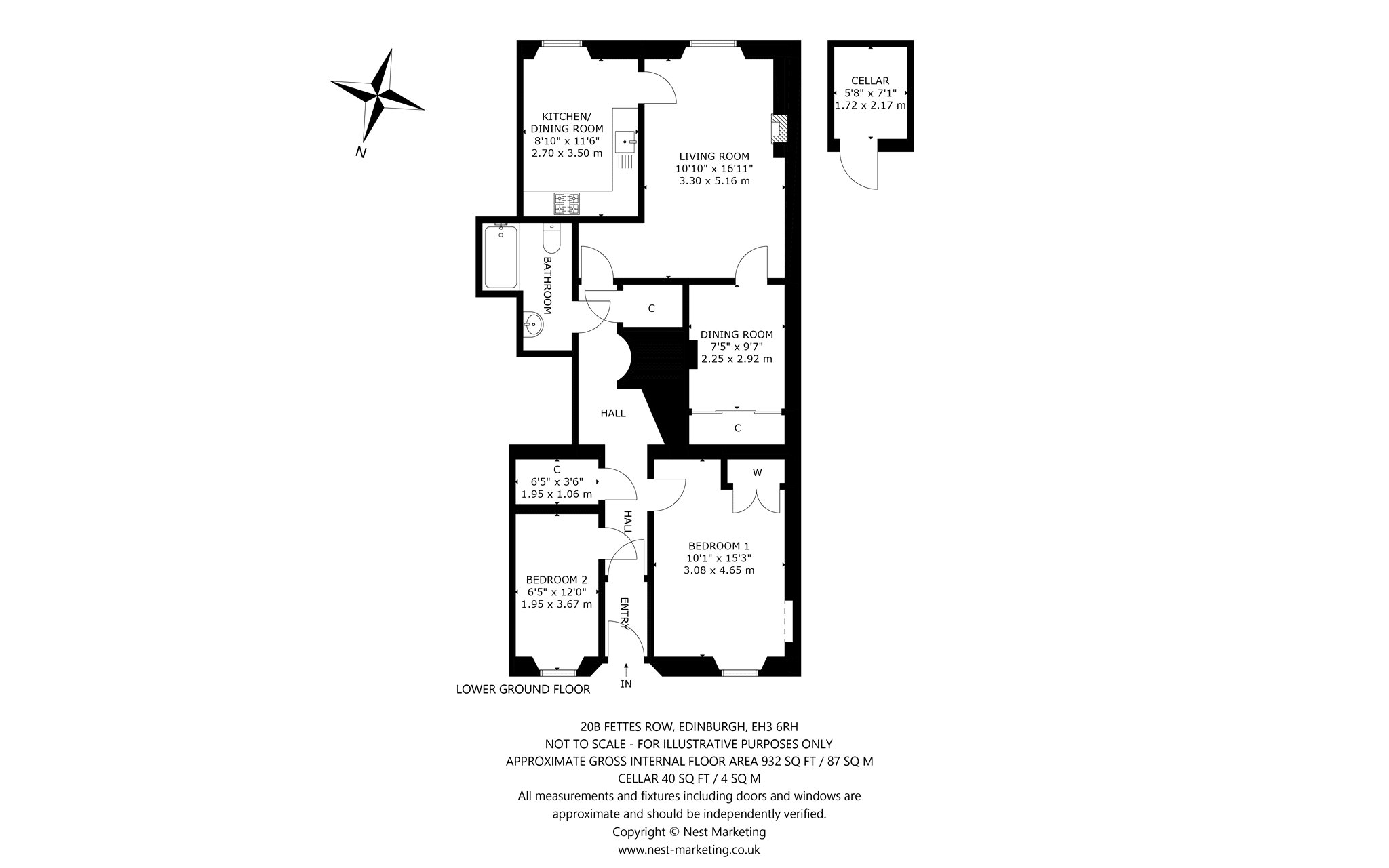
Summary Of Accommodation
Hallway, kitchen/dining room, sitting room, dining room, principle bedroom, bathroom, further double bedroom, cupboards and cellar.
Fettes Row is ideally situated between Dundas Street and Howe Street, in an elegant central location with close proximity to the city’s bustling centre. George Street and Princes Street, along with several historic and cultural attractions of Edinburgh’s city centre are only a few minutes’ walk away. There are many independent shops, cafes and restaurants in the immediate vicinity, as well as a Sainsbury’s Local and Tesco Metro.
Neighbouring Stockbridge has a thriving village atmosphere, with excellent amenities such as galleries, bars, restaurants, coffee shops and a weekly artisan street market. Ample green space surrounds the area with lovely parks, cycle paths and the Edinburgh Botanics. There is excellent local schooling in the area and private school options including The Edinburgh Academy and Fettes College. There is easy access to Edinburgh’s public transport network, Waverley rail station, the city bypass and Edinburgh International Airport.
More Details
EPC: C
Council Tax Band: E
Tenure: Freehold
Your home may be repossessed if you do not keep up repayments on your mortgage. There may be a fee for mortgage advice. The actual amount you pay will depend upon your circumstances.
Similar Properties
Looking To Sell Or Let?
Rettie is one of the most trusted and well-respected names in property. Our unrivalled market knowledge helps people from around the world buy, sell, let and develop property in Scotland and the North East of England - from city apartments and rural cottages to large townhouses and prime country homes, farms and estates. We deal with some of the most prestigious properties on the market, but provide the same exceptional standards of service and value for money to all our clients.
