Offers Over £975,000
Lower Ground Apartment
4 Bedrooms
3 Bathrooms
1 Reception Room
1,990 sq.ft
Private Garden
On Street/Permit
Property Description
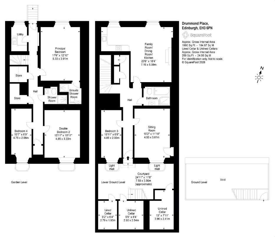
An exceptional main door lower ground and garden level flat extending to approximately 1,990 sq ft, offering beautifully presented four-bedroom accommodation in the heart of Edinburgh’s New Town. Recently modernised to a high standard, the property combines elegant period proportions with contemporary open plan living, private outdoor space, excellent storage, and convenient city centre amenities, creating a superb family home in one of the city’s most sought-after addresses.
Summary of Accommodation:
Recently and comprehensively upgraded by the current owner, the property blends classic proportions with contemporary design. The standout feature is the impressive open plan kitchen, living, and dining space to the rear, which overlooks the private garden and forms the true heart of the home. The kitchen is beautifully appointed with integrated appliances, while the living area features an attractive gas fire as a focal point.
To the front of the lower ground floor is a well-proportioned sitting room with a south-facing window towards Drummond Place, providing an elegant and tranquil retreat. Across the hallway, under the traditional stone platt, lies a double bedroom, while a stylish modern family bathroom with separate shower completes the accommodation on this level.
At garden level, the principal bedroom is particularly impressive in scale and benefits from its own contemporary en-suite shower room. Two further bedrooms are located to the front, with light wells ensuring excellent natural light. An additional shower room is accessed from the hallway. This level also provides excellent storage throughout, together with a practical utility room at the rear housing the washing machine, tumble dryer, and boiler.
A rear door opens onto steps descending to the private garden, which is predominantly hard landscaped for ease of maintenance and complemented by mature planted beds. There is direct access to a rear lane, allowing for convenient removal of garden waste.
To the front, the property further benefits from a private area and access to three under-pavement cellars, offering valuable additional storage.
More Details
Tenure - Freehold
EPC - B
Council Tax Band - G
Viewing by appointment only.
Your home may be repossessed if you do not keep up repayments on your mortgage.
There may be a fee for mortgage advice. The actual amount you pay will depend upon your circumstances. The fee is up to 1% but a typical fee is 0.3% of the amount borrowed.
Similar Properties
Looking To Sell Or Let?
Rettie is one of the most trusted and well-respected names in property. Our unrivalled market knowledge helps people from around the world buy, sell, let and develop property in Scotland and the North East of England - from city apartments and rural cottages to large townhouses and prime country homes, farms and estates. We deal with some of the most prestigious properties on the market, but provide the same exceptional standards of service and value for money to all our clients.
