Property Description
A beautiful and substantial detached family home which occupies a wonderfully elevated position close to the Mortonhall Golf Course. The property is ideally situated in the affluent and sought after Braids area of Edinburgh, which boasts a wonderful rural feel just minutes from the City Centre’s superb amenities.
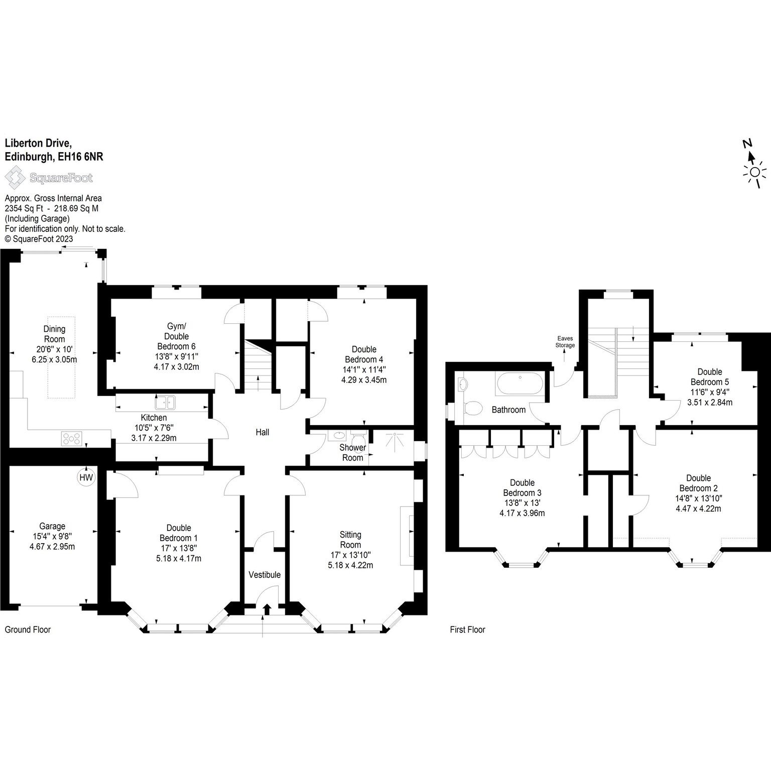
Presented to the market in turnkey condition, having been recently fully renovated by the current owners, this wonderful family home offers versatile accommodation, driveway, garage and spacious gardens to the front and rear.
The property is in the catchment area for Liberton Primary School which gets an excellent reputation.
More Details
EPC: C
Council Tax Band: G
Tenure: Freehold
Viewing strictly by appointment.
Your home may be repossessed if you do not keep up repayments on your mortgage. There may be a fee for mortgage advice. The actual amount you pay will depend upon your circumstances.
Similar Properties
Looking To Sell Or Let?
Rettie is one of the most trusted and well-respected names in property. Our unrivalled market knowledge helps people from around the world buy, sell, let and develop property in Scotland and the North East of England - from city apartments and rural cottages to large townhouses and prime country homes, farms and estates. We deal with some of the most prestigious properties on the market, but provide the same exceptional standards of service and value for money to all our clients.
